Mirag Logo MIRAG CONSULTING D.O.O.

Дома у моря доступные для покупки в Словении

Строим ваше будущее в центре Европы

← Назад к каталогу

Двухэтажный дом Долина Драгонье

  • Город: Копер
  • Район: Южная Приморская
  • Площадь дома: 262 м2
  • Площадь участка: 1650 м2
  • Комнат: 5
  • Ванных: 2
  • Год постройки: 1955
  • Этаж: 2
  • Стоимость: € 600 000

В живописной долине Драгонье продаётся двухэтажный дом, построенный в 1955 году и обновлённый в 2006 году. Площадь дома составляет 262,35 м², а территория землевладения — 1.650 м², окружённая естественной зеленью и средиземноморской растительностью . Этот дом идеально подойдёт для семей или пожилых людей, ищущих уединение и связь с природой.

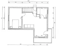
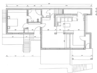
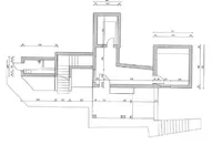
На подвале расположены просторная кладовая, туалет и крытая летняя кухня с дровяной печью . На первом этаже большого двухкомнатного жилого помещения находятся: вход с прихожей, большая столовая, кухня, гостиная с камином, кладовая, дневной туалет, спальня, ванная комната и крытая терраса с каменным столом. Второй этаж занят меньшей двухкомнатной квартирой с гостиной, спальней, ванной комнатой и балконом .

Дом подключен к центральному отоплению на жидком топливе. В большой квартире также предусмотрено тёплое напольное отопление в кухне, ванной и гостиной. Обновления включают фасад с 8 см изоляции и крышей с 5 см. Дом полностью оборудован и подключён к городской водопроводной сети.

На придомовой территории, кроме основного строения, расположено хозяйственное здание, а земля засажена оливковыми деревьями и средиземноморскими растениями. Возможна покупка большего участка земли в 11.000 м².

Технические характеристики:

  • Площадь: 262,35 м²
  • Этажность: подвал + первый этаж + второй этаж
  • Количество ванных комнат: 2
  • Кладовая
  • Отдельный туалет
  • Земельный участок: 1.650 м²
  • Балкон
  • Парковочное место
  • Терраса
  • Сад
  • Тёплое напольное отопление
  • Кондиционер
  • Энергетический класс: C (35 - 60 кВтч/м²a)
  • Отопление: жидкотопливное
  • Полностью оборудован
  • Близость к местам для отдыха
  • Близость к природе

Цена: 600.000,00 евро

О компании

MIRAG CONSULTING D.O.O. — это команда профессионалов с более чем 20-летним опытом. Мы предоставляем полный спектр услуг в области финансового консалтинга, инжиниринга и недвижимости в Словении. Наша команда из более чем 10 экспертов имеет все лицензии и сертификации.
Главные ценности: эффективность, прозрачность, индивидуальный подход.

Mirag Consulting

Контакты

Slovenia, Ljubljana, Likozarjeva ulica 3