Mirag Logo MIRAG CONSULTING D.O.O.

Квартиры доступные для покупки на Мальте

Строим ваше будущее в центре Европы

← Назад к каталогу

Xewkija Haven

  • Город: Gozo - Xewkija
  • Район: Gozo
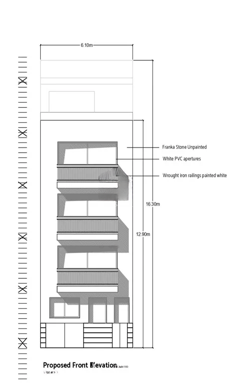
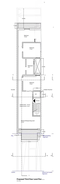
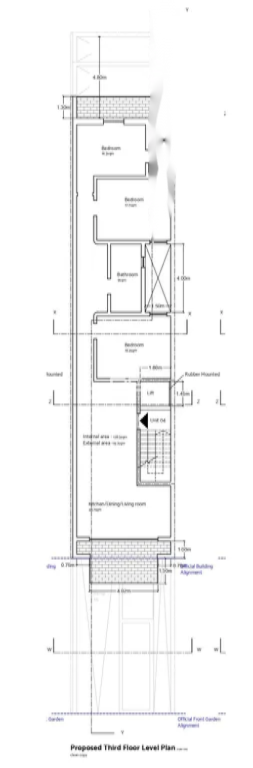
  • Площадь дома: 147 м2
  • Стоимость: € 220 000

Inside Area: 128 sqm, Outside Area: 19 sqm

  • ✓ В наличии: Доступен сейчас
  • ✓ Тип: Квартира

Новый на рынке, этот апартамент на третьем этаже в Xewkija Gozo располагается в одном из самых спокойных деревень региона. Здание включает всего 5 единиц, что гарантирует уединение и спокойствие. Продается в черновой отделке.

В квартире просторная открытая планировка кухни, гостиной и столовой, ведущая на переднюю террасу, где можно провести время с семьей и друзьями. Главная ванная комната, три спальни, включая одну с собственной ванной, прачечная и задний балкон также входят в состав помещения. Отличный выбор как для отдыха, так и для первых покупателей жилья.

Общие части включены в стоимость. Не упустите шанс лично оценить! Доступны также опциональные подземные гаражи и пакеты отделки.

О компании

MIRAG CONSULTING D.O.O. — это команда профессионалов с более чем 20-летним опытом. Мы предоставляем полный спектр услуг в области финансового консалтинга, инжиниринга и недвижимости в Словении. Наша команда из более чем 10 экспертов имеет все лицензии и сертификации.
Главные ценности: эффективность, прозрачность, индивидуальный подход.

Mirag Consulting

Контакты

Slovenia, Ljubljana, Likozarjeva ulica 3