Mirag Logo MIRAG CONSULTING D.O.O.

Квартиры доступные для покупки на Мальте

Строим ваше будущее в центре Европы

← Назад к каталогу

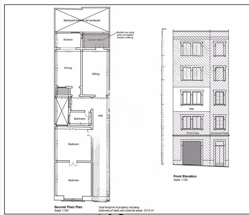
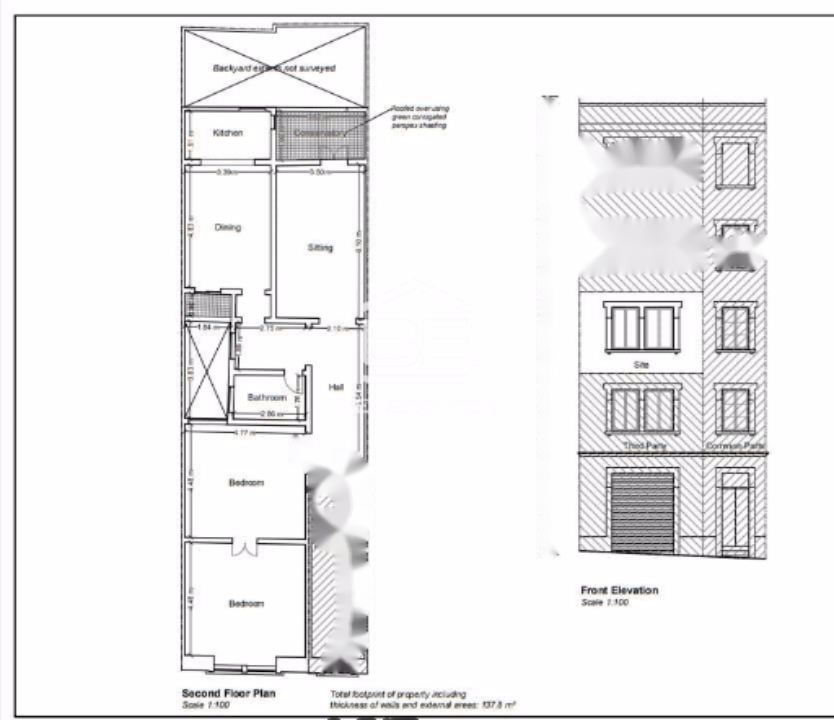
Valletta Central Haven

  • Город: Valletta
  • Район: Central
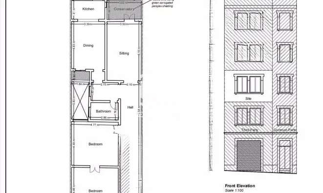
  • Площадь дома: 142 м2
  • Спален: 2
  • Ванных: 1
  • Стоимость: € 510 000

Bedrooms: 2, Bathrooms: 1, Inside Area: 137 sqm, Outside Area: 5 sqm

  • ✓ Доступно сейчас
  • ✓ Тип: Apartment

Добро пожаловать в этот очаровательный исторический апартамент в самом сердце Валлетты, столицы Мальты. Расположенный рядом с мануэльским театром и красивой приходской церковью, этот апартамент предлагает уникальное сочетание традиционной мальтийской архитектуры и современного комфорта. Вы сможете легко познакомиться с богатым культурным наследием города и насладиться живой уличной жизнью Валлетты прямо у вашего порога.

Это идеальное сочетание истории, культуры и современного комфорта. Его отличное расположение рядом с театром Manuel и прекрасной приходской церковью обеспечит незабываемые впечатления для тех, кто хочет погрузиться в уникальную атмосферу столицы Мальты. Независимо от того, являетесь ли вы знатоком истории, любителем культуры или просто ищете живописное и комфортное место для отдыха, этот апартамент станет отличным выбором. ️

Апартамент находится в красиво восстановленном историческом здании, демонстрируя традиционные архитектурные элементы Мальты. При входе в блок вы найдете апартамент на втором этаже. Большие окна наполняют пространство естественным светом и предлагают захватывающие виды. Интерьер объединяет современные мебели и традиционные элементы, создавая комфортную и стильную атмосферу.

Войдя во вторую часть апартамента, вас сразу окружает теплая и гостеприимная атмосфера объединенной кухни и столовой зоны. Уникальной особенностью является старинная книжная полка, которая добавляет загадочности и древности этому пространству.

Гостиная предлагает уютный уголок с мягкими диванами и креслами, делая его идеальным местом для отдыха и расслабления.

Апартамент располагает двумя спальнями, каждая из которых меблирована. В главной спальне находится удобная кровать queen-size, а во второй спальне — две односпальные кровати, что делает их подходящими для семей или друзей. Каждая комната спроектирована для спокойного сна и включает в себя достаточно места для хранения ваших вещей.

Объект включает всего одну ванную комнату, спроектированную для удовлетворения нужд резидентов.

Одним из самых замечательных аспектов этого апартамента являются его потрясающие виды. Из гостиной и обеих спален вы сможете насладиться панорамными видами.

О компании

MIRAG CONSULTING D.O.O. — это команда профессионалов с более чем 20-летним опытом. Мы предоставляем полный спектр услуг в области финансового консалтинга, инжиниринга и недвижимости в Словении. Наша команда из более чем 10 экспертов имеет все лицензии и сертификации.
Главные ценности: эффективность, прозрачность, индивидуальный подход.

Mirag Consulting

Контакты

Slovenia, Ljubljana, Likozarjeva ulica 3