Mirag Logo MIRAG CONSULTING D.O.O.

Квартиры доступные для покупки на Мальте

Строим ваше будущее в центре Европы

← Назад к каталогу

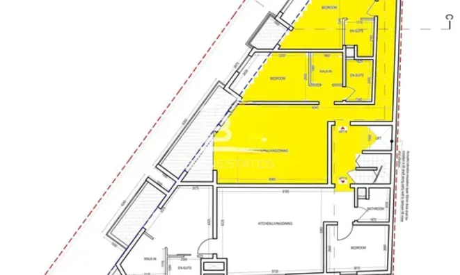
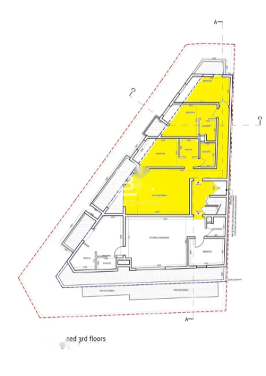
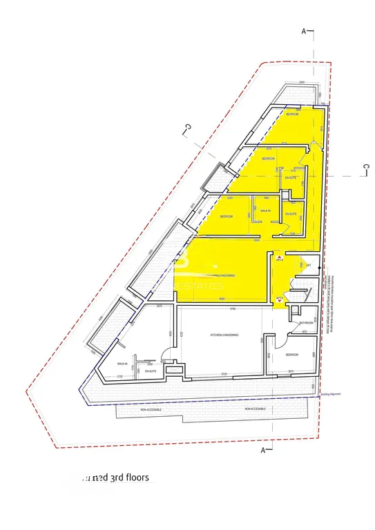
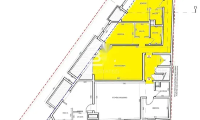
Dingli North Apartment

  • Город: Dingli
  • Район: North
  • Площадь дома: 110 м2
  • Спален: 3
  • Ванных: 2
  • Стоимость: € 340 000

Bedrooms: 3, Bathrooms: 2, Inside Area: 101 sqm, Outside Area: 28 sqm, Total Area: 110 sqm;

  • ✓ Доступность: Available now
  • ✓ Тип: Apartment

Просторная квартира с боковыми видами, включающая открытую кухню, совмещённую с гостиной и обеденной зонами. Три спальни, две из которых имеют собственные ванные комнаты, а главная оборудована гардеробной. Основная ванная, два балкона и терраса с видом на окрестности.

Недвижимость продается с готовой отделкой, исключая ванные комнаты и внутренние двери, завершение запланировано к концу 2025 года. Собственность на правах фрихолд.

О компании

MIRAG CONSULTING D.O.O. — это команда профессионалов с более чем 20-летним опытом. Мы предоставляем полный спектр услуг в области финансового консалтинга, инжиниринга и недвижимости в Словении. Наша команда из более чем 10 экспертов имеет все лицензии и сертификации.
Главные ценности: эффективность, прозрачность, индивидуальный подход.

Mirag Consulting

Контакты

Slovenia, Ljubljana, Likozarjeva ulica 3