Mirag Logo MIRAG CONSULTING D.O.O.

Квартиры доступные для покупки на Мальте

Строим ваше будущее в центре Европы

← Назад к каталогу

Zabbar South Apartment

  • Город: Zabbar
  • Район: South
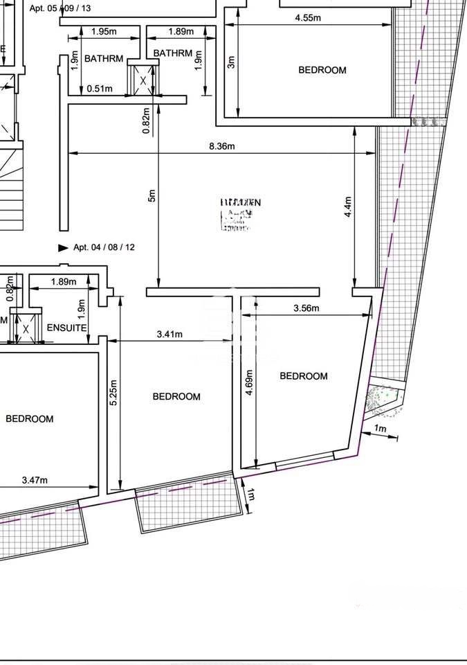
  • Площадь дома: 110 м2
  • Спален: 2
  • Ванных: 2
  • Стоимость: € 315 000

Инфраструктура: лифт

Bedrooms: 2, Bathrooms: 2, Inside Area: 100 sqm, Outside Area: 10 sqm, Total Area: 110 sqm

  • ✓ Доступно сейчас
  • ✓ Тип: Apartment
  • ✓ Завершённое состояние: Да
  • ✓ Лифт: Да
  • ✓ Открытая планировка (Кухня/Гостиная/Столовая): Да
  • ✓ Терраса: Да

Угловая квартира на втором этаже с квадратной планировкой, расположенная в жилом районе Заббар.

Планировка включает просторную открытую зону, ведущую на переднюю террасу, две спальни с двуспальными кроватями, главная из которых с собственной ванной комнатой и балконом, а также основную ванную комнату.

Объект будет предлагаться в завершённом виде, включая санузлы и двери. Опционально доступен гараж.

О компании

MIRAG CONSULTING D.O.O. — это команда профессионалов с более чем 20-летним опытом. Мы предоставляем полный спектр услуг в области финансового консалтинга, инжиниринга и недвижимости в Словении. Наша команда из более чем 10 экспертов имеет все лицензии и сертификации.
Главные ценности: эффективность, прозрачность, индивидуальный подход.

Mirag Consulting

Контакты

Slovenia, Ljubljana, Likozarjeva ulica 3