Mirag Logo MIRAG CONSULTING D.O.O.
RU | EN

Дома и квартиры доступные для покупки в Каннах Франция

Строим ваше будущее в центре Европы

← Назад к каталогу

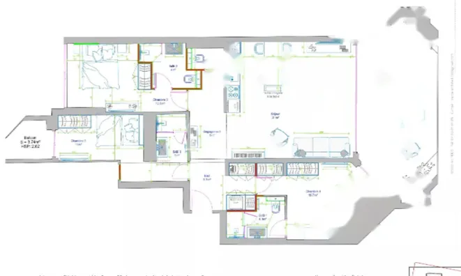
Apartment Cannes Californie

  • Город: Cannes
  • Район: Californie (06400)
  • Площадь дома: 96 m2
  • Комнат: 2
  • Спален: 3
  • Год постройки: 1974
  • Этаж: 6
  • Стоимость: € 2 508 000

Дополнительные свойства: Бассейн, Вид на море
Инфраструктура: бассейн, охраняемая территория, лифт

Seaside location, on the 6th floor, south-west exposure, 2 rooms, built in 1974, completely refurbished, living room 31 sq.m, 3 bedrooms, 1 shower room, dining room, 3 toilets, 2 bathrooms, entrance, furnished.

  • ✓ Терраса
  • ✓ Лифт
  • ✓ Прекрасный вид
  • ✓ Консьерж
  • ✓ Парковка

Диагностика энергетической эффективности (DPE): C; Индекс выбросов парниковых газов (GES): D

️ Расположенный на 6-м этаже роскошной резиденции с бассейном, зелеными насаждениями и усиленной безопасностью, этот великолепный 95 м² апартамент очарует вас своим изяществом и высококлассными удобствами.

️ Полностью обновленный с современным дизайном, он включает в себя просторную светлую гостиную с открытой кухней, продолжающуюся в уютную столовую, идеальную для приема гостей. Большая терраса предлагает потрясающий вид на море и острова Лерин — редкий и желанный панорама.

Ночная зона включает три красивые спальни, каждая с собственной ванной комнатой, сочетая комфорт и уединение. Также в наличии гостевые апартаменты на первом этаже, площадью 40 м², состоящие из 2 комнат.

Расположенный в сердце престижного района Калифорния, апартамент обладает спокойной атмосферой, находясь при этом в непосредственной близости от центра Канн и всех его удобств. Подземная парковка дополняет это исключительное предложение.

О компании

MIRAG CONSULTING D.O.O. — это команда профессионалов с более чем 20-летним опытом. Мы предоставляем полный спектр услуг в области финансового консалтинга, инжиниринга и недвижимости в Словении. Наша команда из более чем 10 экспертов имеет все лицензии и сертификации.
Главные ценности: эффективность, прозрачность, индивидуальный подход.

Mirag Consulting

Контакты

Slovenia, Ljubljana, Likozarjeva ulica 3