Mirag Logo MIRAG CONSULTING D.O.O.
RU | EN

Квартиры у моря доступные для покупки в Словении

Строим ваше будущее в центре Европы

← Назад к каталогу

Четырёхкомнатная квартира Пиран

  • Город: Пиран
  • Район: Южная Приморская
  • Площадь дома: 114 m2
  • Площадь участка: 43 m2
  • Комнат: 4
  • Спален: 3
  • Ванных: 2
  • Год постройки: 1800
  • Этаж: 6
  • Стоимость: € 700 000

Дополнительные свойства: Вид на море
Инфраструктура: ресторан

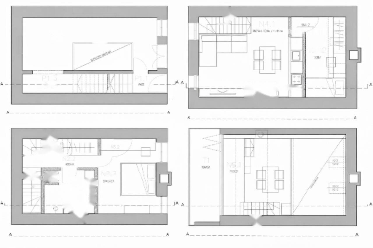
Потрясающее предложение полностью обновлённой квартиры в историческом центре Пирана. Исключительное трёхкомнатное жильё с частной студией и уникальным 360° панорамным видом на Адриатическое море, знаменитую Пиранскую стену и церковь святого Юрия. Квартира и студия продаются только вместе.

Общая площадь составляет 114 м², распределённых на 6 уровней: подвал, первый этаж, два верхних этажа и мансарда. Главная квартира, обновлённая в 2022 году, включает 75 м² с кухней, гостиной, двумя спальнями и душевой. Студия площадью 20 м², обновлённая в 2024 году, также предлагает возможности перепланировки. В 2025 году была обновлена фасадная часть здания.

Реконструкция привнесла в недвижимость качества и комфорта: полная замена межэтажных перекрытий и полов, высокоэффективная теплоизоляция крыши, тройные мансардные окна, элегантные стеклянные ограждения и частная внутренняя лестница. Все инженерные сети обновлены, включая электропроводку и водоснабжение. Недвижимость оснащена современными системами отопления и кондиционирования воздуха.

Объект включает балкон, атриум и террасу площадью 13 м² с потрясающим видом на море. Также есть место для хранения велосипедов и два санузла. Доступны удобства для пар, семей и пожилых людей, возможны домашние животные.

Непосредственная близость ко всей необходимой инфраструктуре: детские сады, школы, спортивные площадки, природные зоны, автобусная остановка, выезд на автомагистраль, центр города, рестораны. Все это делает недвижимость идеальным выбором для постоянного проживания, отпуска или как выгодное вложение.

  • Площадь: 114 м²
  • Этажность: подвал + первый этаж + два верхних этажа + мансарда
  • Спальни: 3
  • Санузлы: 2
  • Площадь участка: 43 м²
  • Отопление: электрическое, с использованием теплового насоса
  • Кондиционирование воздуха: современная система
  • Дополнительно: видеодомофон, сигнализация

Цена: 700,000 евро

О компании

MIRAG CONSULTING D.O.O. — это команда профессионалов с более чем 20-летним опытом. Мы предоставляем полный спектр услуг в области финансового консалтинга, инжиниринга и недвижимости в Словении. Наша команда из более чем 10 экспертов имеет все лицензии и сертификации.
Главные ценности: эффективность, прозрачность, индивидуальный подход.

Mirag Consulting

Контакты

Slovenia, Ljubljana, Likozarjeva ulica 3