Mirag Logo MIRAG CONSULTING D.O.O.

Дома и квартиры доступные для покупки в Андорре

Строим ваше будущее в центре Европы

← Назад к каталогу

Townhouse for sale in Encamp, 4 bedrooms

  • Город: Andorra
  • Район: Encamp
  • Площадь дома: 219 м2
  • Спален: 4
  • Ванных: 2
  • Стоимость: € 1 350 000

Инфраструктура: лифт

219 m 2, 4 Habitacions, 2 Banys, No Inclòs

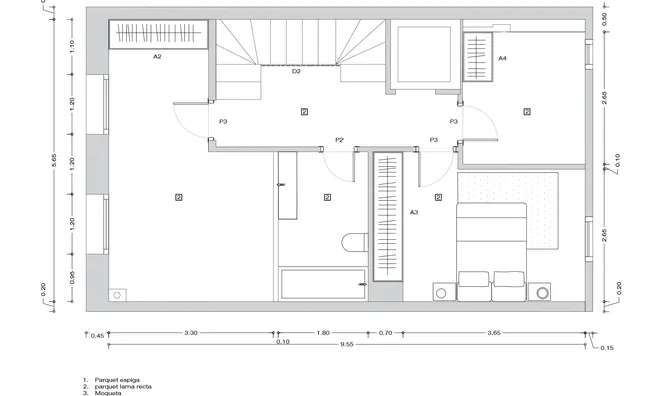
Откройте для себя этот очаровательный таунхаус в Engolasters, идеальный для тех, кто ищет сочетание комфорта и функциональности. Общая площадь составляет 219,58 м², распределенная на трех этажах, плюс уровень с гаражом. Просторные и хорошо сообщающиеся помещения прекрасно подойдут для всей семьи.

Недавно отремонтированный дом находится в безупречном и обновленном состоянии. Все жилые этажи соединены лифтом, а также лестницей.

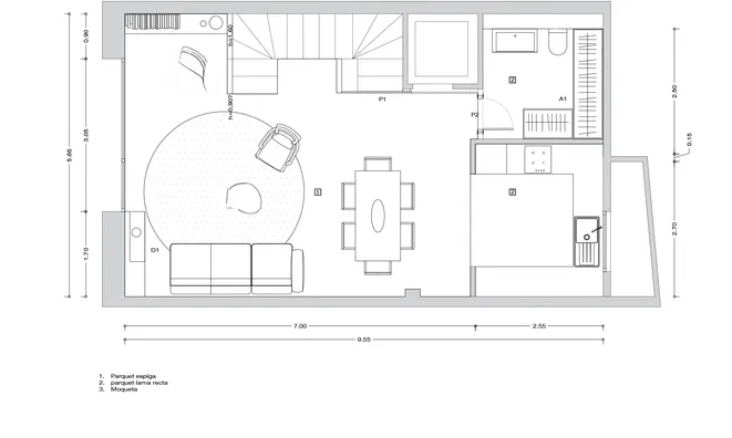
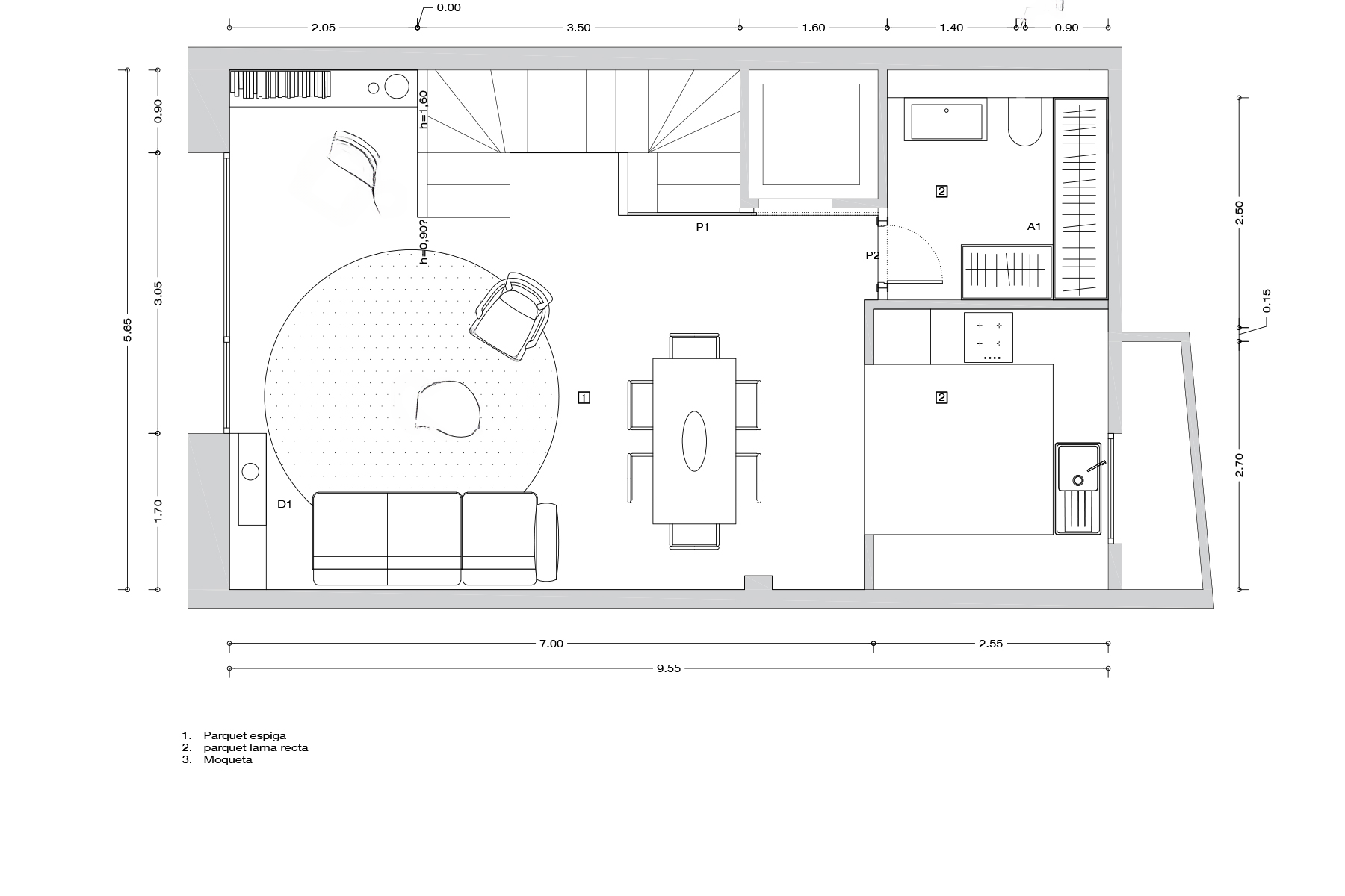
На первом этаже находится уютная гостиная и столовая с выходом в сад, откуда открываются впечатляющие виды на Escaldes и Андорру. Этот уголок, освещаемый полуденным солнцем, идеально подходит для приятного отдыха на свежем воздухе. Здесь же расположены оборудованная кухня и гостевой туалет.

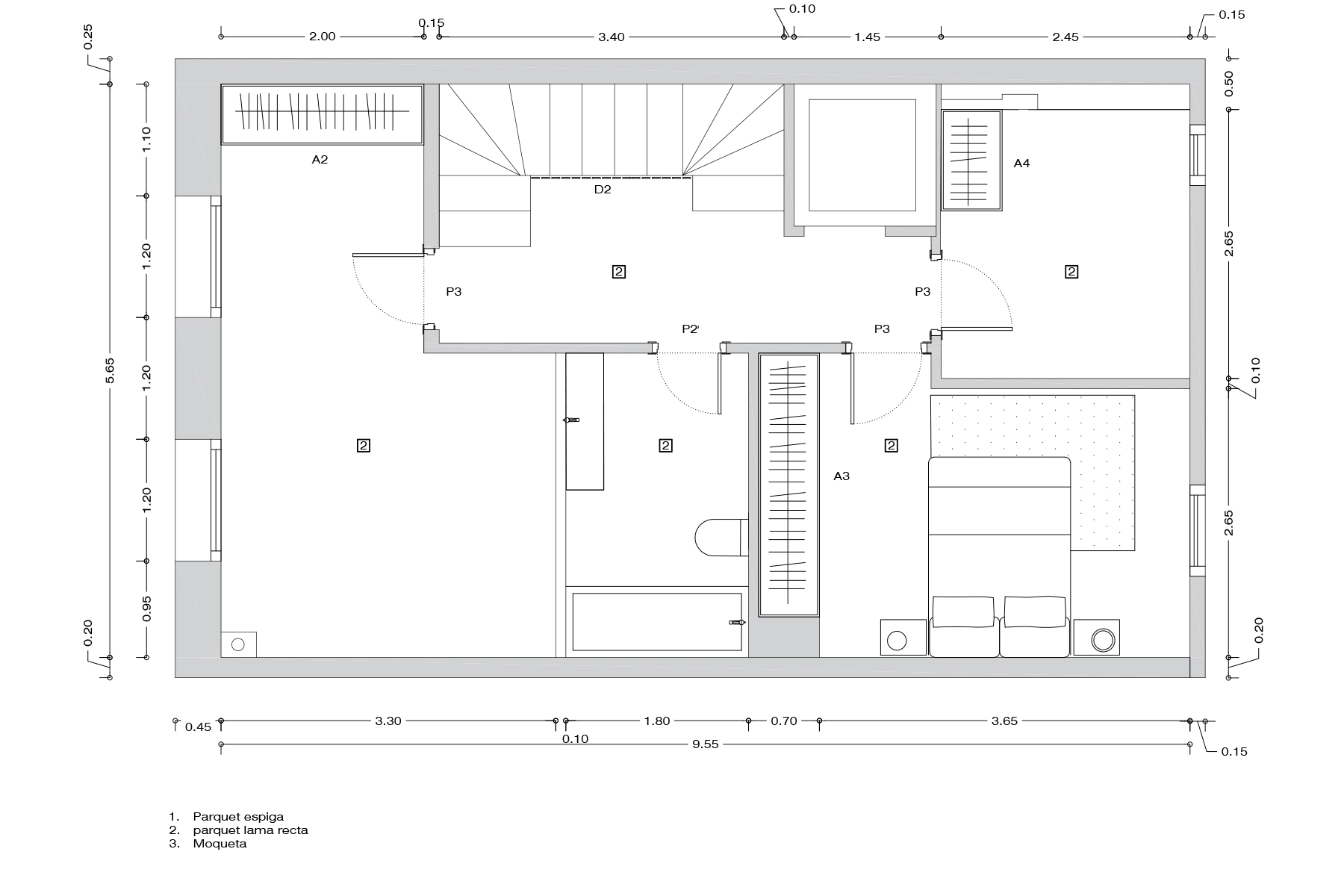
На втором этаже вы найдете три просторные спальни с видом на улицу и полноценную ванную комнату с ванной, которые спроектированы для ежедневного удобства.

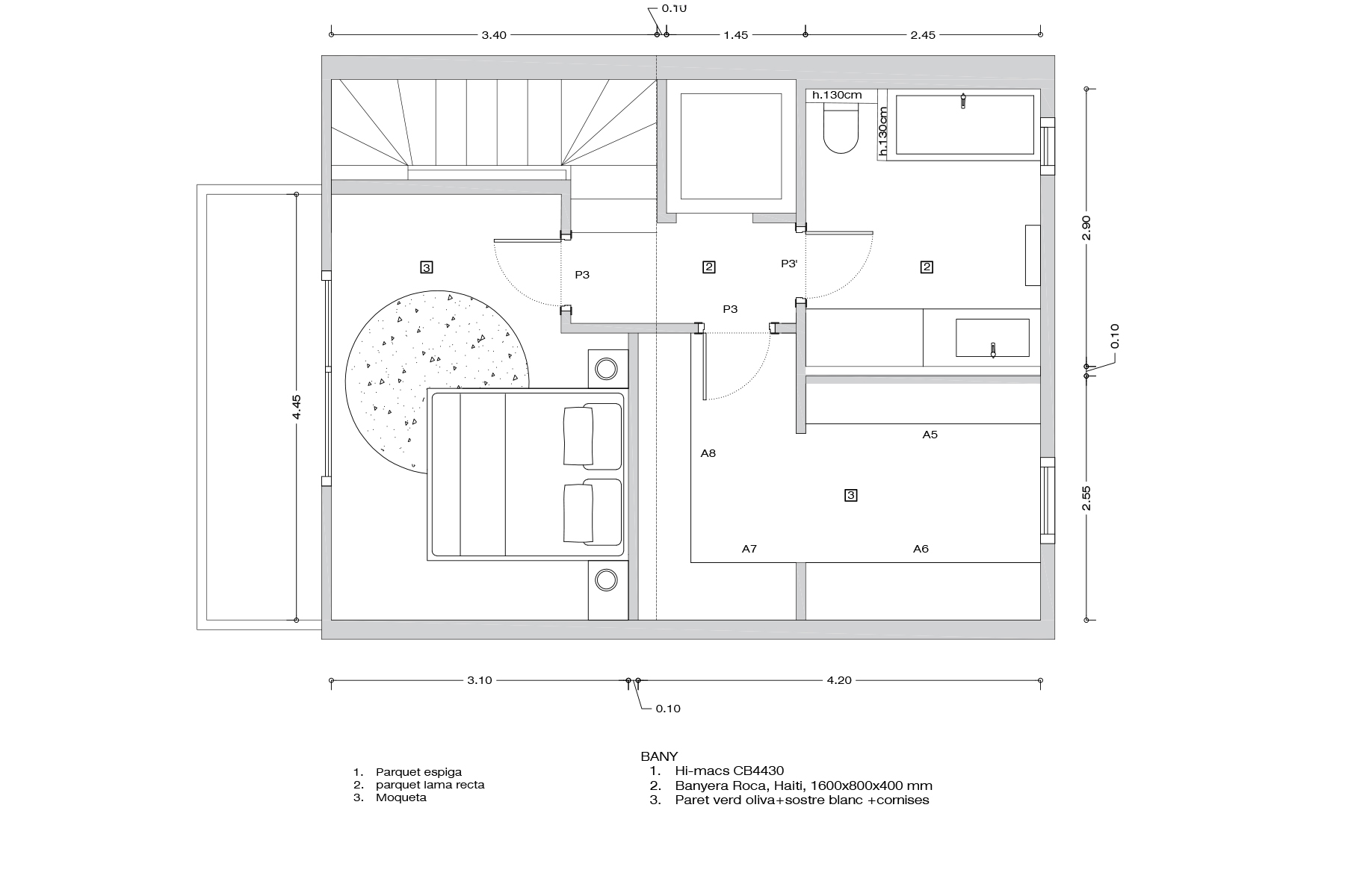
Этаж под крышей включает главную спальню, полностью оборудованную ванную комнату и удобную гардеробную. Из комнаты открывается выход на террасу с западной ориентацией, идеальную для наслаждения солнечными лучами вечером и приятного пребывания на открытом воздухе.

Подземный гараж вмещает два автомобиля и оборудован складскими помещениями, технической комнатой и прачечной. Из гаража имеется прямой доступ в дом.

Экстерьер, ориентированный на запад, обеспечивает отличное естественное освещение на протяжении всего вечера и ночи. Привилегированные виды из сада и с террасы — одно из главных достоинств этой собственности. Великолепный выбор для тех, кто ищет комфорт, функциональность и захватывающие виды в спокойном и приятном окружении.

О компании

MIRAG CONSULTING D.O.O. — это команда профессионалов с более чем 20-летним опытом. Мы предоставляем полный спектр услуг в области финансового консалтинга, инжиниринга и недвижимости в Словении. Наша команда из более чем 10 экспертов имеет все лицензии и сертификации.
Главные ценности: эффективность, прозрачность, индивидуальный подход.

Mirag Consulting

Контакты

Slovenia, Ljubljana, Likozarjeva ulica 3