Mirag Logo MIRAG CONSULTING D.O.O.

Квартиры доступные для покупки в центре Лондона район Челси

Строим ваше будущее в центре Европы

← Назад к каталогу

Smith Street

  • Город: London
  • Район: SW3
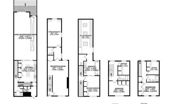
  • Площадь дома: 287 м2
  • Комнат: 10
  • Спален: 5
  • Ванных: 3
  • Стоимость: € 5 175 000

5 beds, 3 baths, 2 receptions, EPC Rating: C

  • ✓ Дом в георгианском стиле!
  • ✓ Без цепочки!
  • ✓ Расположен рядом с известной Kings Road
  • ✓ 5 этажей красоты
  • ✓ Рядом с Sloane Square District и Circle Line Undergrounds
  • ✓ 5 спален плюс кабинет
  • ✓ Редкая жемчужина с садом!
  • ✓ Исторический - построен около 1800 года

Представляем вам престижный дом в позднем георгианском стиле в сердце Челси. Этот красиво отремонтированный дом на свободном участии с пятью спальнями предлагает более 3,088 кв. футов изысканной жилой площади. Сильно реконструированный между 2010 и 2011 годами, он прекрасно сочетает в себе элегантность эпохи и современный дизайн.

Дом расположен на пяти этажах и включает в себя грандиозное пространство для приемов с высокими потолками, сообщающиеся комнаты и скрытую лестницу на нижний этаж. Уникальная кухня с впечатляющим синим островом из бразильского мрамора открывается в просторную семейную/столовую, идеально подходящую для развлечений.

Весь первый этаж посвящен роскошному основному люксу с собственной ванной, гардеробной и встроенным шкафом. Четыре дополнительных спальни и две ванные комнаты занимают верхние уровни, что идеально подходит для жизни с семьей или приемов гостей.

Дополнительные достоинства включают в себя подогрев пола, сдвоенные створчатые окна, централизованную систему освещения и спокойный приподнятый патио-сад с белой фарфоровой плиткой — идеально подходит для обедов на свежем воздухе.

Улица Смит-Стрит - тихий, уединенный уголок в охранной зоне Royal Hospital, всего в нескольких минутах от оживленной Kings Road и спокойствия реки Темзы. Область богата архитектурным наследием и является домом для множества зеленых зон, включая Бертон-Корт и Бэттерси Парк.

Известные культурные достопримечательности, такие как Сад Челси Физик, Галерея Саатчи и легендарное цветочное шоу Челси, находятся совсем рядом. Также в шаговой доступности вы найдете множество элитных бутиков, дизайнерских магазинов, ресторанов и кафе.

Транспортные связи отличные, неподалеку находится Sloane Square (линии District и Circle), что обеспечивает быстрое соединение с вокзалом Виктория и Южным Кенсингтоном, с доступом к линии Piccadilly. Автомобильные трассы M3 и M4 также находятся в удобной доступности.

О компании

MIRAG CONSULTING D.O.O. — это команда профессионалов с более чем 20-летним опытом. Мы предоставляем полный спектр услуг в области финансового консалтинга, инжиниринга и недвижимости в Словении. Наша команда из более чем 10 экспертов имеет все лицензии и сертификации.
Главные ценности: эффективность, прозрачность, индивидуальный подход.

Mirag Consulting

Контакты

Slovenia, Ljubljana, Likozarjeva ulica 3