Mirag Logo MIRAG CONSULTING D.O.O.

Дома и земельные участки в Словении

Строим ваше будущее в центре Европы

← Назад к каталогу

Detached house 3 bedrooms for sale in Canach

  • Город: Luxembourg
  • Район: Canach
  • Площадь дома: 130 м2
  • Спален: 3
  • Ванных: 2
  • Стоимость: € 976 000

surface: 130 m², rooms: 3, bathrooms: 2, garages: 1

  • ✓ Внутри | Отдельные туалеты: 1
  • ✓ Снаружи | Терраса: 16 м²
  • ✓ Снаружи | Сад: Да
  • ✓ Энергия/отопление | Класс энергосбережения: A
  • ✓ Энергия/отопление | Класс тепловой изоляции: B
  • ✓ Энергия/отопление | Тепловой насос: Да
  • ✓ Прочее | Подвал: Да
  • ✓ Прочее | Прачечная: Да

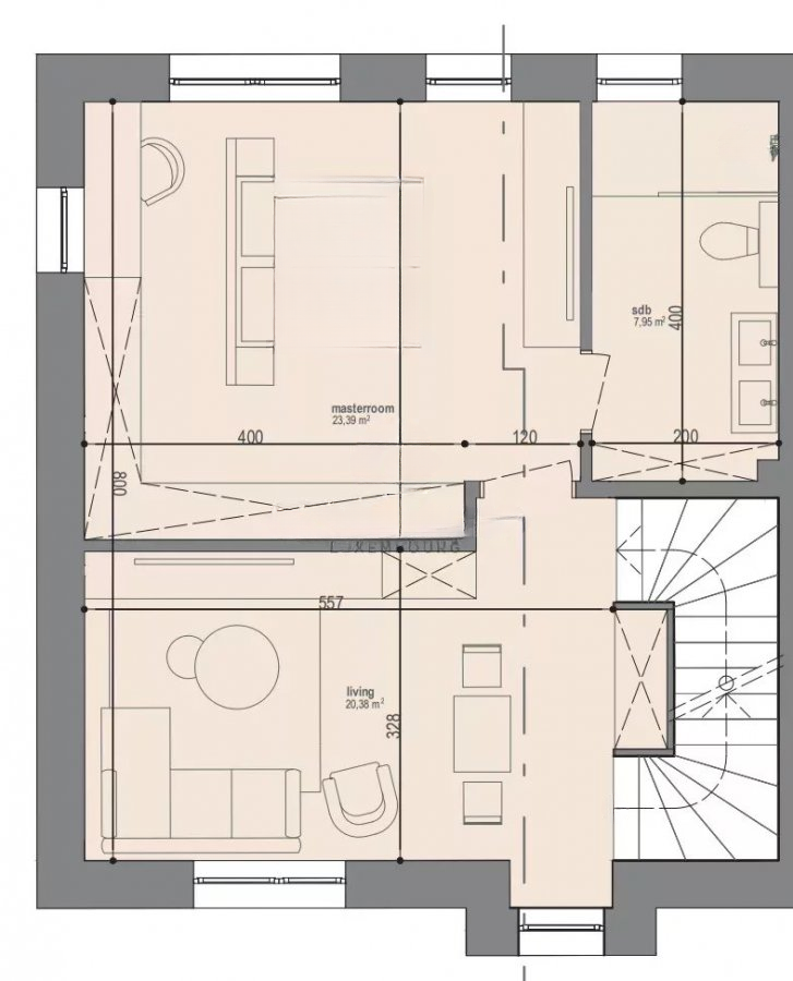
Откройте для себя этот замечательный дом с аккуратной и высококачественной отделкой, расположенный в центре Canach, всего в 20 минутах от Кирхберга. Дом площадью 130 м² включает в себя:

В подвале: большая кладовая около 24 м², техническое помещение около 15,70 м² и прачечная около 4 м². На первом этаже: холл, гардероб и отдельный WC. Открытая кухня совмещена со столовой/гостиной площадью около 25 м². Большие окна ведут на террасу около 16 м² и сад, ориентированные на запад.

На этаже: просторная главная спальня со смежной ванной комнатой с WC общая площадь составляет около 31 м², а также гостиная около 20 м².

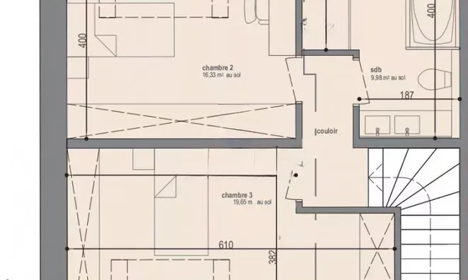
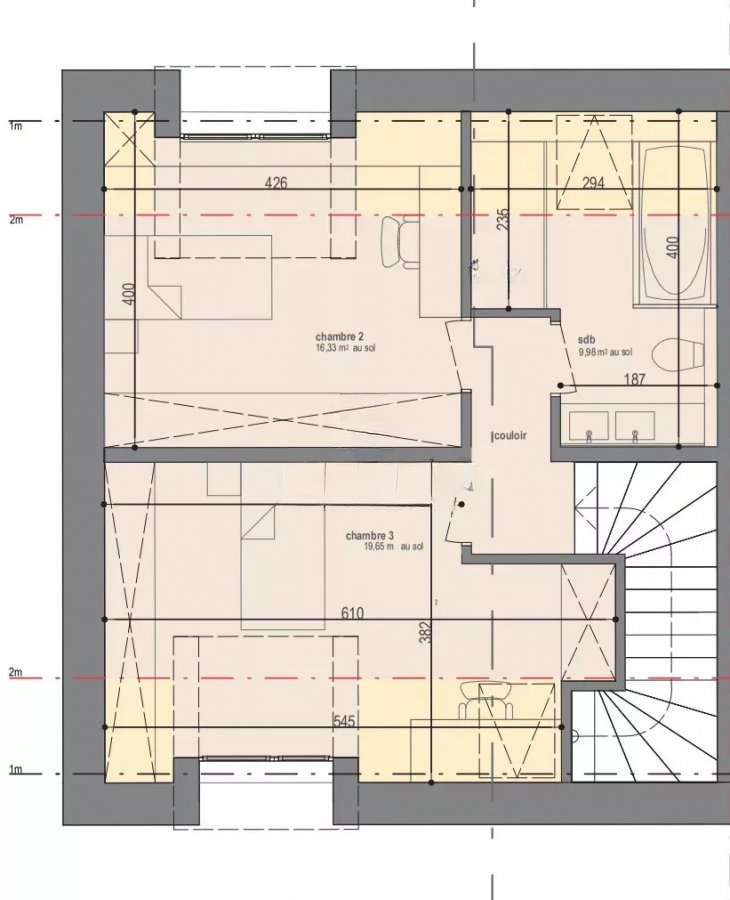
На верхнем уровне расположены: ванная комната с WC около 10 м², спальня около 16 м² и третья спальня более 19 м².

Этот дом оборудован для комфортной жизни: тройное остекление, отопление от теплового насоса, напольное отопление с индивидуальной регулировкой для каждой комнаты, система рекуперации тепла, электрические жалюзи и гаражные ворота. Отделка и оборудование еще можно адаптировать под ваши пожелания!

Образование: начальная школа "Commune De Lenningen" и "Maison Relais Mueresgässel Caritas Jeunes Et Familles Asbl" в 5 минутах ходьбы.

Магазины поблизости: Smatch и Naturata в Munsbach, Cactus Roodt-Sur-Syre.

Транспорт: в 11 минутах езды от аэропорта Luxembourg-Findel. Близость к железнодорожной станции Munsbach и основным автострадам: A1 Luxembourg Ville - Wasserbillig - Германия и A7 Luxembourg Ville - Ettelbruck.

Общественный транспорт: автобусная линия RGTR (D04 - H05 и 323) с остановкой в 1 минуте ходьбы.

О компании

MIRAG CONSULTING D.O.O. — это команда профессионалов с более чем 20-летним опытом. Мы предоставляем полный спектр услуг в области финансового консалтинга, инжиниринга и недвижимости в Словении. Наша команда из более чем 10 экспертов имеет все лицензии и сертификации.
Главные ценности: эффективность, прозрачность, индивидуальный подход.

Mirag Consulting

Контакты

Slovenia, Ljubljana, Likozarjeva ulica 3