Mirag Logo MIRAG CONSULTING D.O.O.

Дома и земельные участки в Словении

Строим ваше будущее в центре Европы

← Назад к каталогу

House 2 bedrooms for sale in Eischen

  • Город: Luxembourg
  • Район: Eischen
  • Площадь дома: 68 м2
  • Спален: 2
  • Стоимость: € 450 000

surface: 68 m², rooms: 2, garages: 5

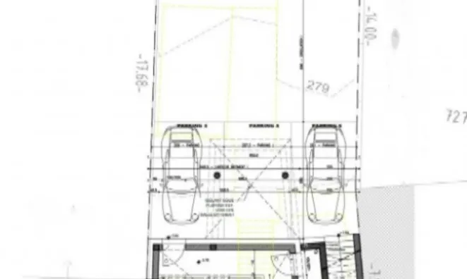
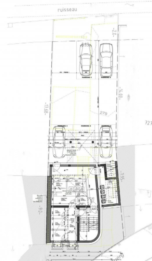
  • ✓ Участок: 2,87 аров
  • ✓ Парковочное место на улице: 5
  • ✓ Балкон: Да
  • ✓ Терраса: Да
  • ✓ Энергетический класс: Пустой
  • ✓ Класс теплоизоляции: Пустой
  • ✓ Подвал: Да
  • ✓ Прачечная: Да

Предлагается к продаже: таунхаус с одной общей стеной, расположенный на земельном участке площадью 2,87 ар, с высоким потенциалом преобразования. Недвижимость требует полной реновации или может быть снесена. Разрешение на снос и строительство уже одобрено, что позволяет немедленно приступить к работам.

Утвержденный проект предусматривает строительство трех однокомнатных квартир с общей жилой площадью 166 м², каждая из которых будет иметь свое собственное частное подвальное помещение, а также как минимум одно парковочное место.

Это идеальная возможность для инвесторов или девелоперов, желающих быстро начать проект без административных задержек.

О компании

MIRAG CONSULTING D.O.O. — это команда профессионалов с более чем 20-летним опытом. Мы предоставляем полный спектр услуг в области финансового консалтинга, инжиниринга и недвижимости в Словении. Наша команда из более чем 10 экспертов имеет все лицензии и сертификации.
Главные ценности: эффективность, прозрачность, индивидуальный подход.

Mirag Consulting

Контакты

Slovenia, Ljubljana, Likozarjeva ulica 3