Mirag Logo MIRAG CONSULTING D.O.O.
RU | EN

Дома и квартиры доступные для покупки в Люксенбурге

Строим ваше будущее в центре Европы

← Назад к каталогу

Detached house 4 bedrooms for sale in Bettange-Sur-Mess

  • Город: Luxembourg
  • Район: Bettange-Sur-Mess
  • Площадь дома: 194 m2
  • Спален: 4
  • Ванных: 2
  • Стоимость: € 1 357 220

surface: 194 m², rooms: 4, bathrooms: 2, garages: 1;

  • ✓ Отдельные туалеты: 1
  • ✓ Энергетический класс: Blank
  • ✓ Класс термоизоляции: Blank

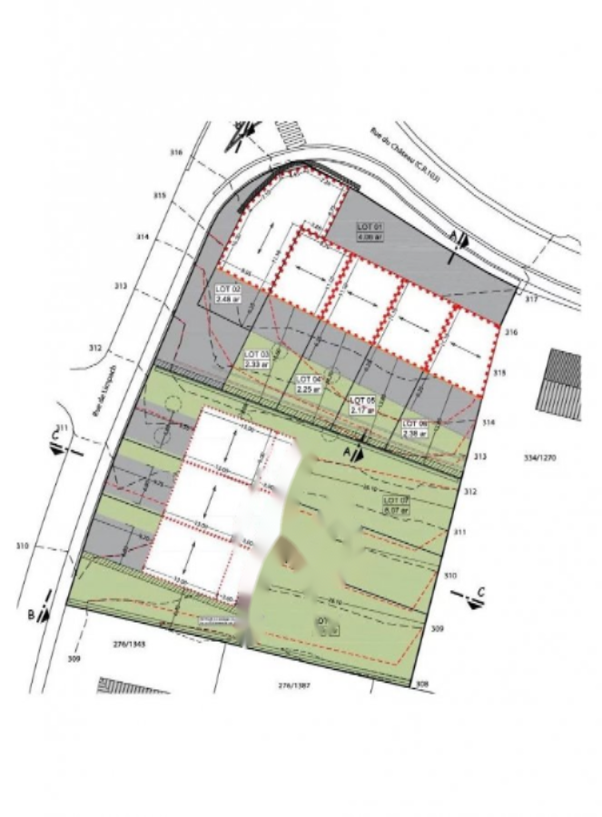
На участке площадью 2,17 ар, этот новый дом предлагает чистую жилую площадь 134 м² (общая площадь 194,00 м²):

Первый этаж:

  • Светлая гостиная и столовая
  • Кухня
  • Отдельный туалет
  • Подвал
  • Терраса
  • Встроенный гараж

Второй этаж:

  • 4 спальни
  • Холл
  • 2 ванные комнаты

Чердачные помещения, которые можно адаптировать для создания дополнительного пространства в соответствии с вашими потребностями.

Преимущества объекта:

  • Прекрасный участок с открытым видом
  • Спокойное окружение
  • Легкий доступ к общественному транспорту
  • Встроенный гараж

Расположенное в престижном жилом районе в центре Bettange-sur-Mess, это семейное жилище предлагает все удобства и характеристики, идеально спроектированные для семей. Вы будете наслаждаться зеленой обстановкой, которая сочетает близость к сельской местности и непосредственной близости к столице.

Этот дом объединяет современный комфорт и функциональность, что делает его идеальным для семей.

О компании

MIRAG CONSULTING D.O.O. — это команда профессионалов с более чем 20-летним опытом. Мы предоставляем полный спектр услуг в области финансового консалтинга, инжиниринга и недвижимости в Словении. Наша команда из более чем 10 экспертов имеет все лицензии и сертификации.
Главные ценности: эффективность, прозрачность, индивидуальный подход.

Mirag Consulting

Контакты

Slovenia, Ljubljana, Likozarjeva ulica 3