Mirag Logo MIRAG CONSULTING D.O.O.
RU | EN

Дома и квартиры доступные для покупки в Люксенбурге

Строим ваше будущее в центре Европы

← Назад к каталогу

Apartment 1 bedroom for sale in Remich

  • Город: Luxembourg
  • Район: Remich
  • Площадь дома: 71 m2
  • Спален: 1
  • Ванных: 1
  • Этаж: 2
  • Стоимость: € 539 000

Инфраструктура: лифт

surface: 71 m², rooms: 1, bathrooms: 1, garages: 2

  • ✓ Этаж недвижимости: 2
  • ✓ Лифт: Да
  • ✓ Внешняя парковка: 1
  • ✓ Балкон: Да
  • ✓ Класс энергоэффективности: E
  • ✓ Класс тепловой изоляции: E
  • ✓ Разрешены домашние животные: Да

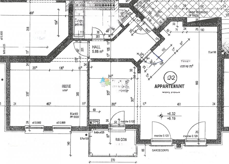
Продается светлая квартира в Ремихе, на улице de Mondorf. Эта очаровательная квартира с одной спальней удобно расположена на 2-м этаже здания, построенного в 2004 году.

Площадь: 71 м². Включает просторную гостиную/столовую, кухню с балконом площадью 4 м², 1 спальню, ванную комнату и кладовую.

Дополнительно: погреб, закрытый гараж с электрозарядной станцией и внешнее парковочное место.

Квартира отличается хорошей освещенностью и комфортом — идеально подходит для пары или одного человека. Прекрасная возможность комфортно жить в Ремихе, рядом со всеми удобствами.

О компании

MIRAG CONSULTING D.O.O. — это команда профессионалов с более чем 20-летним опытом. Мы предоставляем полный спектр услуг в области финансового консалтинга, инжиниринга и недвижимости в Словении. Наша команда из более чем 10 экспертов имеет все лицензии и сертификации.
Главные ценности: эффективность, прозрачность, индивидуальный подход.

Mirag Consulting

Контакты

Slovenia, Ljubljana, Likozarjeva ulica 3