Mirag Logo MIRAG CONSULTING D.O.O.
RU | EN

Земельные участки на продажу в Словении

Строим ваше будущее в центре Европы

← Назад к каталогу

Участок, застройка ЛЮБЛЯНА МОСТЕ, ПОД ГОЛОВЦЕМ.

  • Город: Любляна
  • Район: Любляна Мосте
  • Площадь участка: 362 m2
  • Стоимость: € 680 000

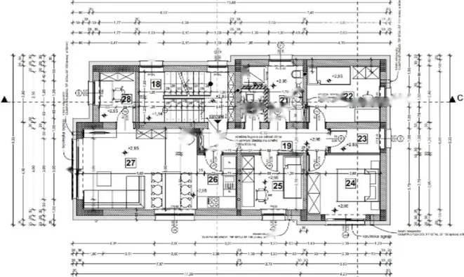
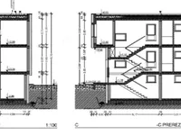
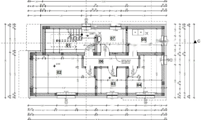
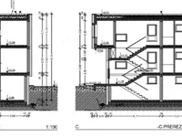
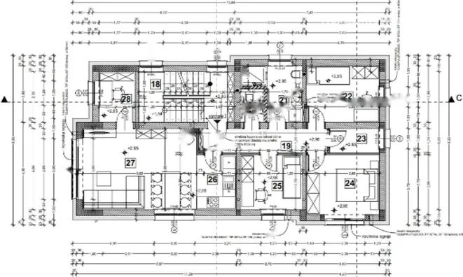
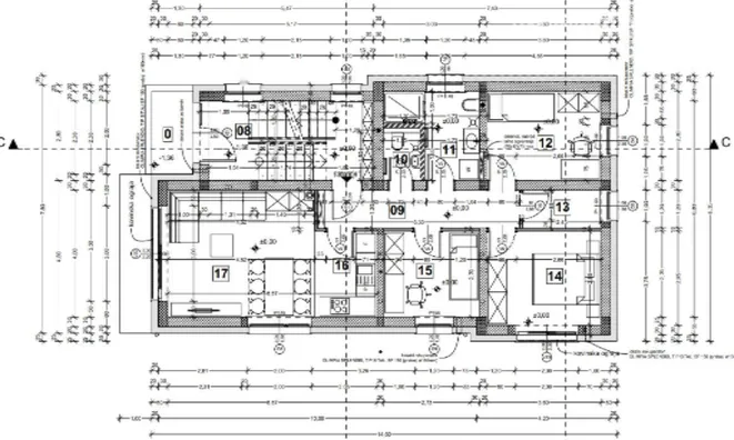
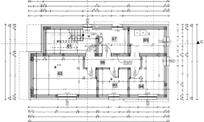
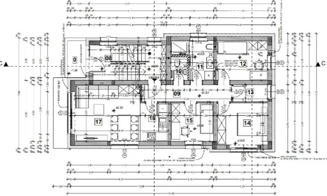
Продажа земельного участка в районе Любляна-Мосте, под Голоувцем. Площадь участка составляет 362 м², предназначен для застройки. Имеется действующее разрешение на строительство двухквартирного дома. Объект спроектирован с этажностью: подвал, первый этаж и второй этаж.

Архитектурное решение предусматривает в подвале размещение сервисных помещений, велосипедной комнаты и кладовых. На первом этаже расположено четырехкомнатное жилье, на втором этаже — четырехкомнатное и полуторное жилье. Внешние территории включают в себя четыре парковочных места. Проект разработан с предоставлением планов этажей, разрезами, внешним оформлением и визуальными моделями. Строительное разрешение действительно до первой половины 2027 года. Проектная документация для реализации (ПЗИ) готова.

Юридическое состояние участка оформлено и без обременений. Участок находится в благоустроенном районе с хорошо развитой инфраструктурой: поблизости расположены образовательные учреждения, магазины, общественный транспорт и зоны отдыха.

  • Площадь земельного участка: 362 м²
  • Тип недвижимости: Двухквартирный дом
  • Этажность: Подвал + 1-й этаж + 2-й этаж
  • Парковка: 4 места
  • Действие разрешения на строительство до: 2027 г.
  • Юридическое состояние: Без обременений
  • Проектная документация: Готова

Инвестиционная привлекательность оценивается в 8 из 10. Объект расположен в динамично развивающемся районе, что делает его отличным выбором для долгосрочных инвестиций. Участок имеет стратегическое расположение с хорошей доступностью к основным инфраструктурным объектам города.

Итоговая стоимость: 680 000 EUR

О компании

MIRAG CONSULTING D.O.O. — это команда профессионалов с более чем 20-летним опытом. Мы предоставляем полный спектр услуг в области финансового консалтинга, инжиниринга и недвижимости в Словении. Наша команда из более чем 10 экспертов имеет все лицензии и сертификации.
Главные ценности: эффективность, прозрачность, индивидуальный подход.

Mirag Consulting

Контакты

Slovenia, Ljubljana, Likozarjeva ulica 3