Mirag Logo MIRAG CONSULTING D.O.O.

Земельные участки на продажу в Словении

Строим ваше будущее в центре Европы

← Назад к каталогу

Участок, Пригодный для Строительства, Новая Любляна, Мосте.

  • Город: Любляна
  • Район: Мосте
  • Площадь участка: 497 м2
  • Стоимость: € 375 000

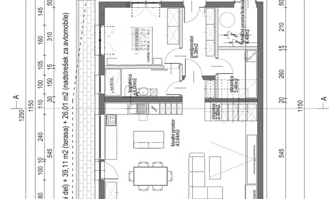
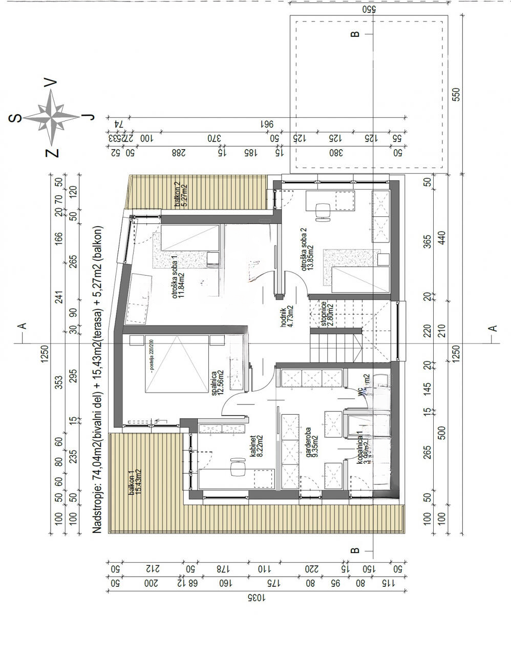
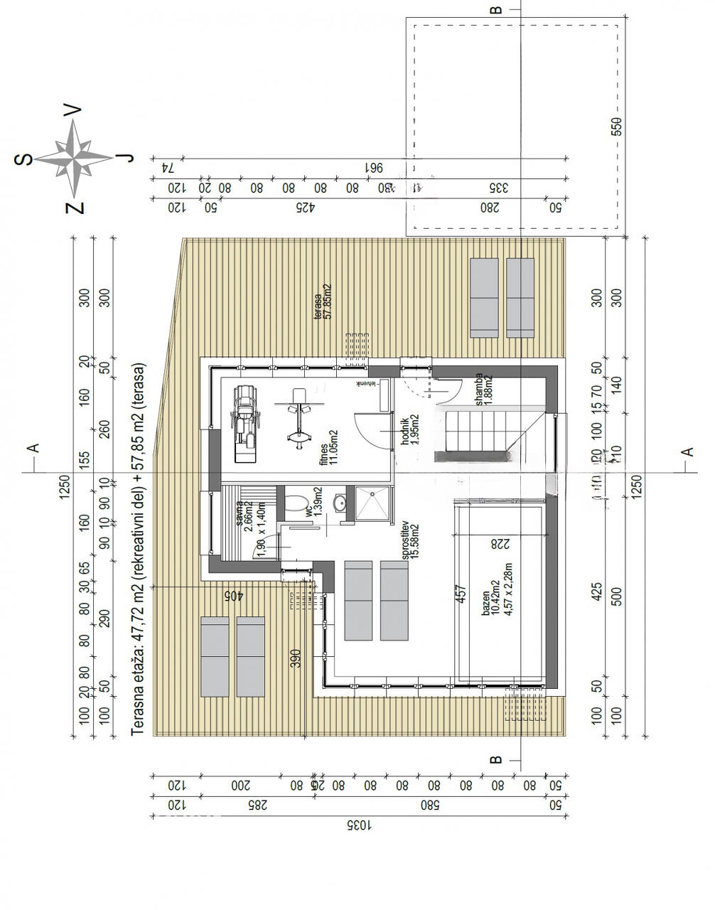
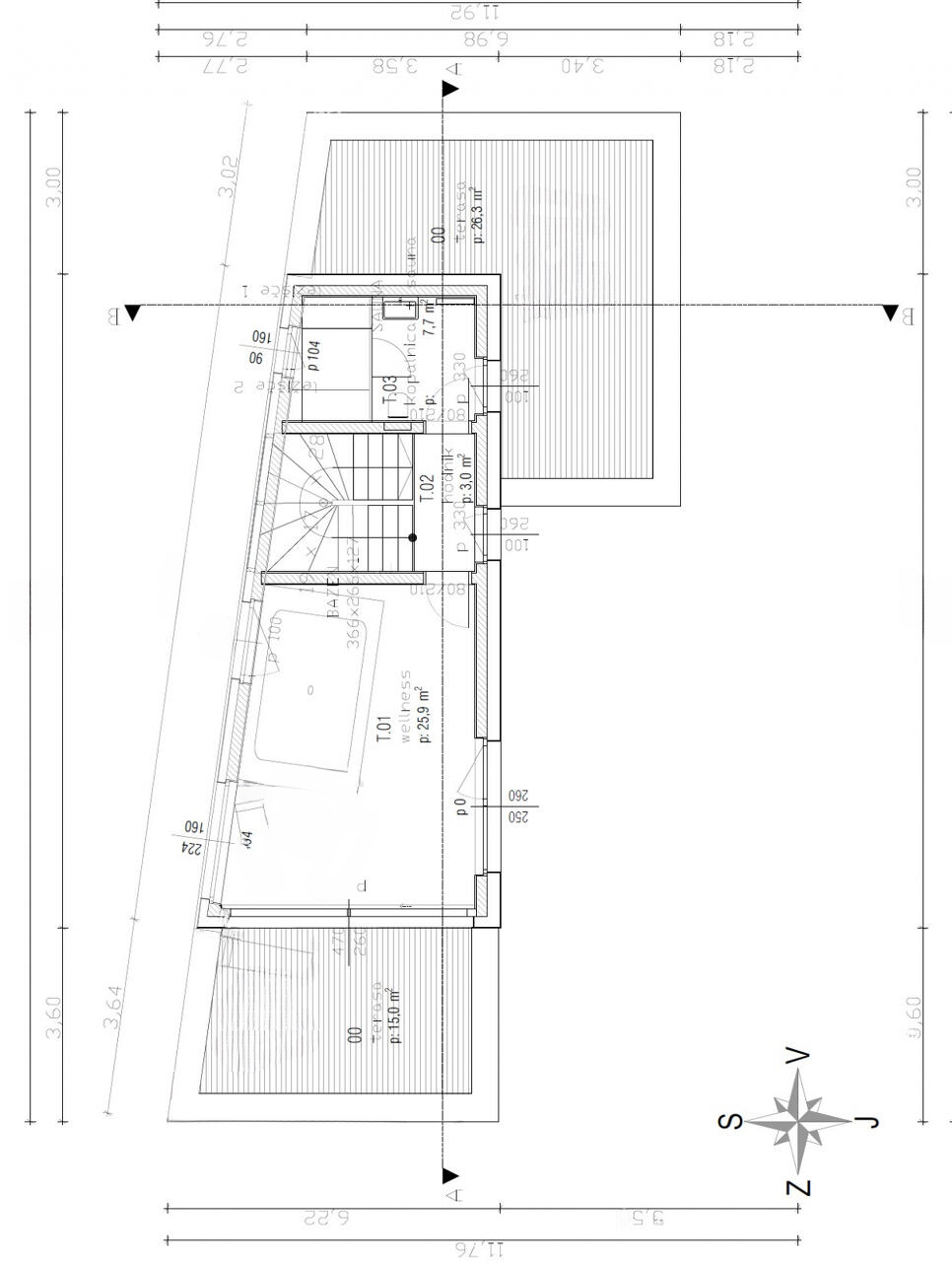
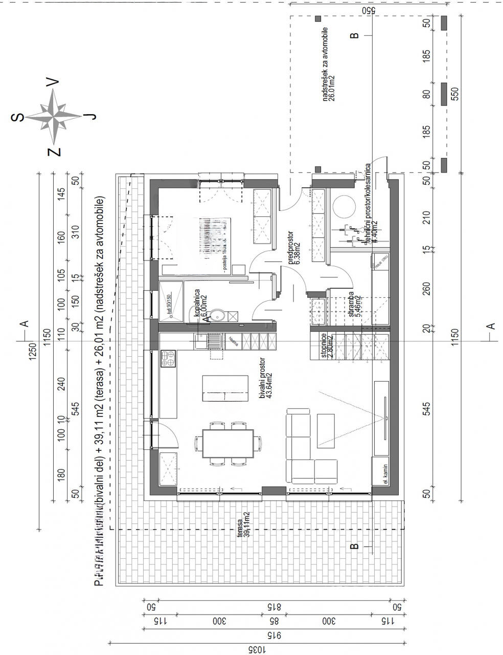
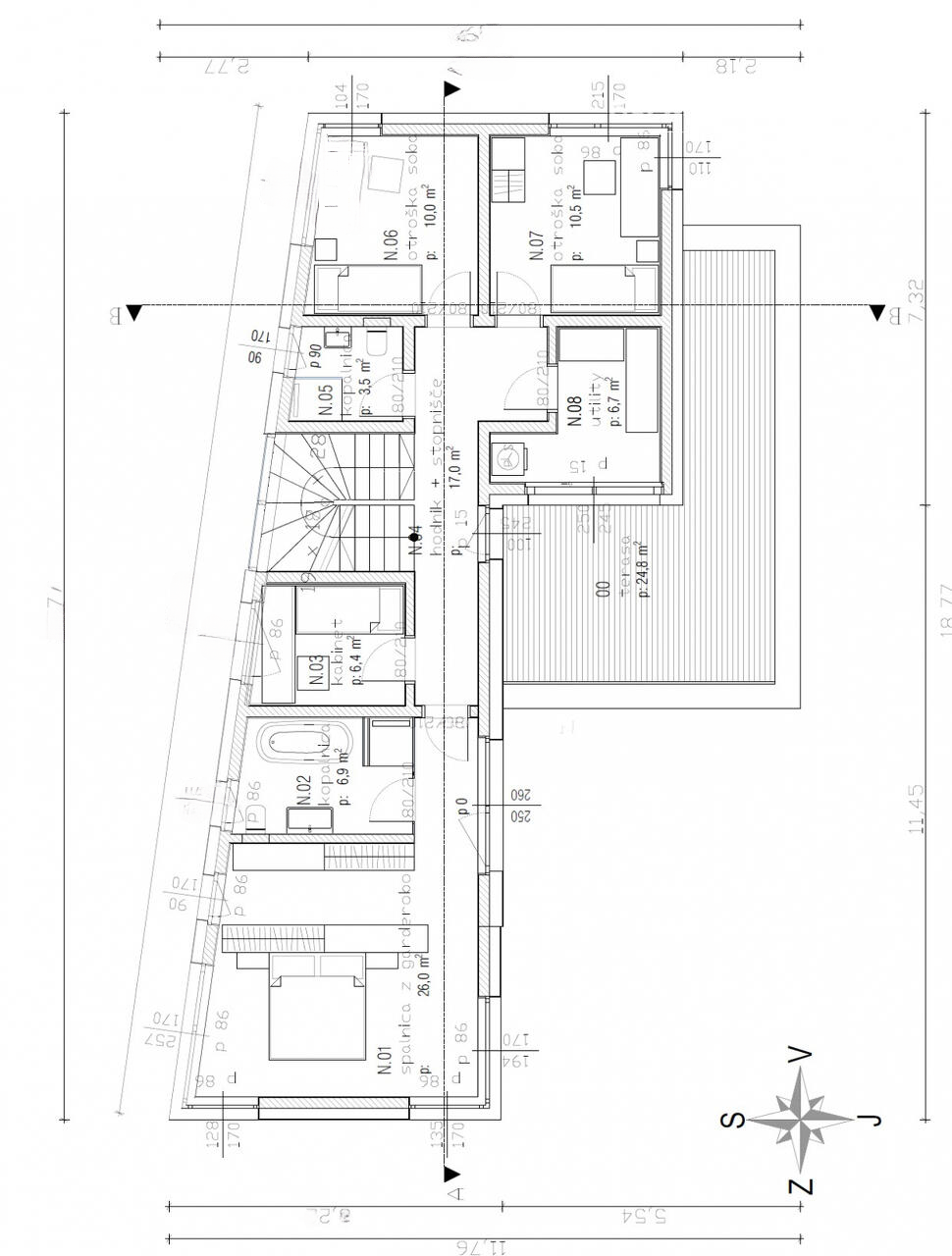
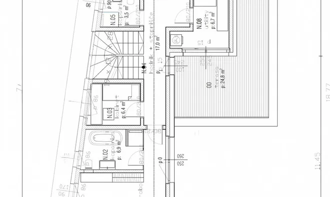
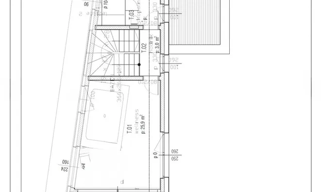
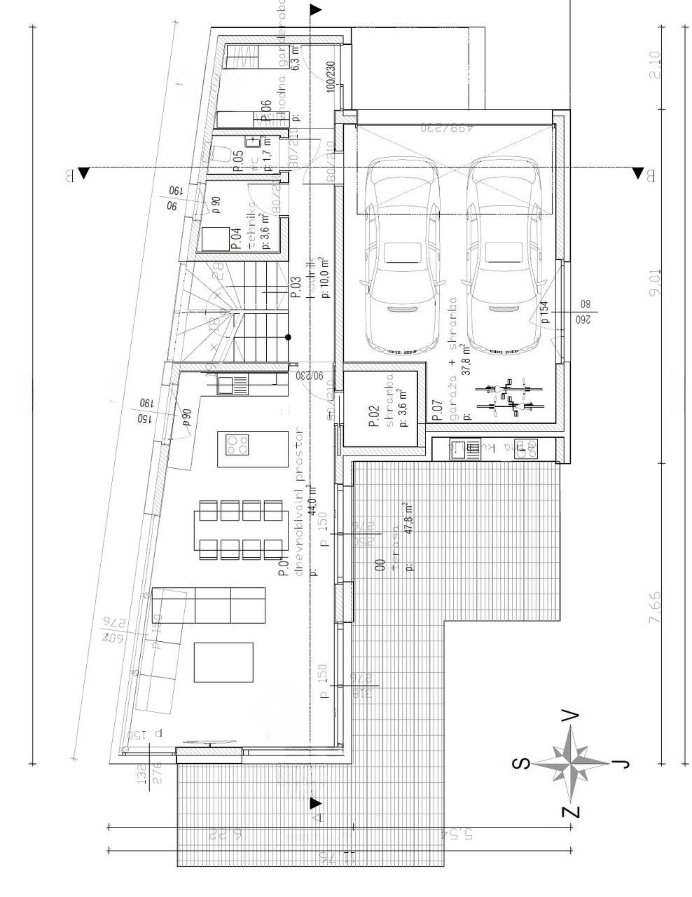
Объект представляет собой земельный участок площадью 497 м² в районе Любляны под названием Ново Поле, предназначенный для жилой и коммерческой застройки. Имеется действующее разрешение на строительство роскошного трехэтажного дома, включая функциональные элементы, такие как плавательный бассейн, фитнес, сауна и две террасы. Все необходимые согласования и проекты получены, предоставляется возможность немедленного начала строительства.

Архитектурный проект предлагает два варианта: дом в форме буквы L с полезной площадью 308 м² (200 м² без учета балконов и террас) и прямоугольный дом с полезной площадью 296 м² (192 м² без учета террас и гаража). В обоих случаях предусмотрены помещения для отдыха на втором этаже, состоящие из бассейна, террасы и сауны.

Инфраструктурная готовность: земельный участок оснащен всеми новыми подключениями. Выполнены канализационные и водопроводные сети, электрическое подключение и телекоммуникационные соединения, как оптоволоконные, так и кабельные. Участок огорожен современной бетонной конструкцией. Подключение к системе газоснабжения возможно. Проектные работы, в том числе инженерные подключения и план размещения, находятся в заключительной стадии.

Юридически, участок полностью зарегистрирован и готов к сделкам, не имеет обременений и находится в собственности продавца. Доступ обеспечен по новой асфальтированной муниципальной дороге с развитой системой водоотведения и уличным освещением, завершение которых планируется в 2024 году.

  • Площадь земельного участка: 497 м²
  • Возможность жилой и коммерческой застройки
  • Действующее разрешение на строительство
  • Все основные коммуникации установлены
  • Огорожен по периметру бетонной конструкцией
  • Закончена проектная документация

Объект расположен в спокойном районе неподалеку от центра Любляны и развитой инфраструктуры. В радиусе доступности находятся детские сады, школы, торговые и медицинские учреждения, транспортные узлы. Удобная транспортная доступность всего за 3 минуты до объездной дороги. Зона отсутствия паводков, обеспечена надежная система отводки воды.

Инвестиционная привлекательность объекта оценивается в 8 из 10 благодаря его стратегическому расположению, готовности к застройке и современным строительным решениям.

Итоговая цена объекта составляет 375 000 €.

О компании

MIRAG CONSULTING D.O.O. — это команда профессионалов с более чем 20-летним опытом. Мы предоставляем полный спектр услуг в области финансового консалтинга, инжиниринга и недвижимости в Словении. Наша команда из более чем 10 экспертов имеет все лицензии и сертификации.
Главные ценности: эффективность, прозрачность, индивидуальный подход.

Mirag Consulting

Контакты

Slovenia, Ljubljana, Likozarjeva ulica 3