Mirag Logo MIRAG CONSULTING D.O.O.

Дома доступные для покупки в Любляне

Строим ваше будущее в центре Европы

← Назад к каталогу

Дом с террасой Рудник

  • Город: Любляна
  • Район: Рудник
  • Площадь дома: 145 м2
  • Площадь участка: 144 м2
  • Комнат: 5
  • Спален: 4
  • Ванных: 3
  • Год постройки: 2025
  • Этаж: 3
  • Стоимость: € 449 990

Инфраструктура: ресторан, магазины

Вашему вниманию предлагается современный дом с террасой в новостройке в престижном районе Любляны Трновское предместье, на тихой улице с ограниченным движением. Это замечательное место сочетает в себе близость к центру города и быстрый доступ к необходимой инфраструктуре: детскому саду, магазинам, банкам, почте , ресторанам и прогулочным маршрутам вдоль реки Любляницы. Также здесь удобный подъезд к кольцевой дороге и торговому центру Рудник.

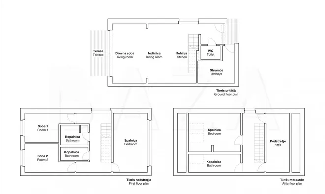
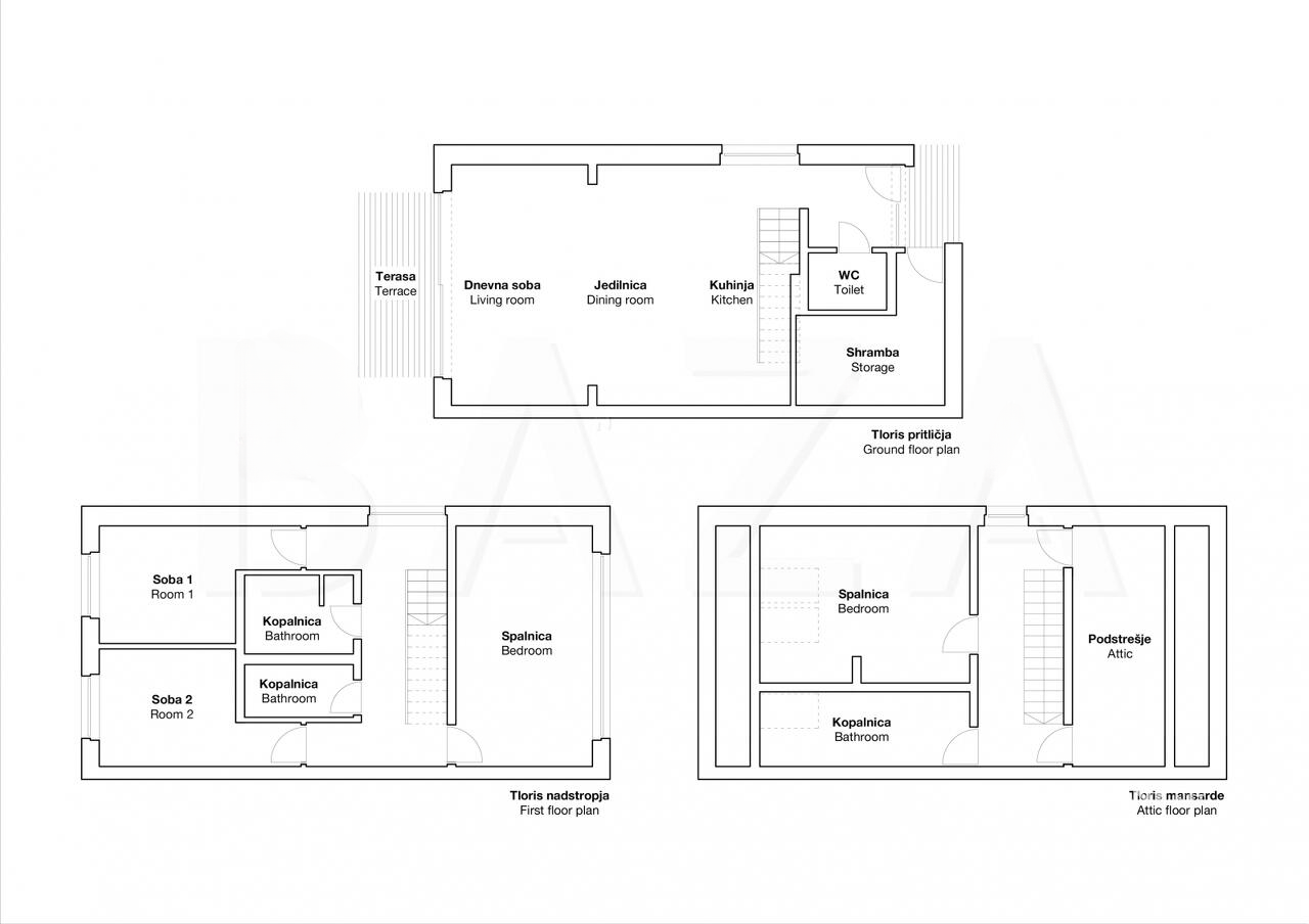
Дом имеет три этажа: первый этаж, второй этаж и мансарду. Общая площадь дома составляет 213,00 м², из которой 145,20 м² — жилая площадь. Рядом имеется участок размером 144,40 м², включающий две собственные парковочные места и 8,00 м² террасы.

На первом этаже расположены: прихожая, кладовая/техническая комната, отдельный туалет, а также просторная гостиная с кухней и столовой, соединенная с террасой и садом через большие стеклянные двери. Второй этаж включает три спальни, коридор и две ванные комнаты с туалетом. На мансарде находится дополнительная спальня, коридор и ещё одна ванная комната с туалетом.

Строительство дома будет завершено до 3-й удлиненной стадии, включающей в себя фундамент, несущую конструкцию, крышу с изоляцией и фасад, а также установку окон и дверей из ПВХ/АЛЮ и подготовку основных коммуникаций. Предусмотрено современное отопление с помощью теплового насоса, соединенного с системой напольного отопления. Подключены все коммунальные услуги, обеспечен доступ к дому. Возможна дополнительно полная отделка дома по Вашему вкусу.

Недвижимость идеально подходит для семей, взыскательных покупателей или инвесторов, ищущих новостройку в одном из самых желанных районов Любляны, с возможностью последующей продажи или сдачи в аренду. В продаже также имеется конечный дом с большей площадью и более крупным участком.

  • Площадь: 145,20 м²
  • Этажи: первый + второй + мансарда
  • Количество спален: 4
  • Количество ванных: 3
  • Площадь земельного участка: 144,40 м²
  • Терраса: 8,00 м²
  • Парковочные места: 2 собственных
  • Сад, атриум
  • Теплый пол, тепловой насос
  • Оптоволоконный интернет
  • Близость к школе, природным и рекреационным зонам
  • Удобно для семей и пожилых людей

Цена: 449,990 евро

О компании

MIRAG CONSULTING D.O.O. — это команда профессионалов с более чем 20-летним опытом. Мы предоставляем полный спектр услуг в области финансового консалтинга, инжиниринга и недвижимости в Словении. Наша команда из более чем 10 экспертов имеет все лицензии и сертификации.
Главные ценности: эффективность, прозрачность, индивидуальный подход.

Mirag Consulting

Контакты

Slovenia, Ljubljana, Likozarjeva ulica 3