Mirag Logo MIRAG CONSULTING D.O.O.
RU | EN

Офисы на продажу в Любляне

Строим ваше будущее в центре Европы

← Назад к каталогу

Коммерческое помещение Бежиград

  • Город: Любляна
  • Район: Бежиград
  • Площадь дома: 170 m2
  • Год постройки: 1975
  • Этаж: 1
  • Стоимость: € 429 915

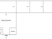
Предлагается к продаже многофункциональное складское помещение площадью 170 м², расположенное на улице Братовшева Плошчад в районе Бежиград в Любляне. Объект представляет собой складское помещение с возможностью использования под небольшие бизнес-или производственные нужды. Построенное в 1975 году и находящееся на уровне первого этажа, здание состоит из пяти отдельных пространств, включая приемную или небольшую офисную зону, склад и санитарные помещения, что позволяет начать использование сразу.

Общая площадь складской части составляет 167,8 м², с дополнительной площадью 2,2 м², которая может быть использована по усмотрению собственника. Разделение пространства позволяет удобно организовать работу, разделять деятельность или этапы хранения, а также улучшить управляемость.

Коммуникационная инфраструктура полностью готова к эксплуатации:

  • подключение к электрической сети ⚡
  • подключение к водопроводной сети
  • подключение к канализационной сети
  • подключение к газовой сети

Юридическое состояние объекта безупречно: недвижимость зарегистрирована в земельной книге и свободна от обременений, готова к немедленному приобретению и использованию.

Объект расположен на превосходной и легко доступной локации в Любляне, что делает его привлекательным для предпринимателей, ремесленников и инвесторов, ищущих обустроенное и немедленно доступное рабочее пространство.

Технические характеристики:

  • Общая площадь: 170,00 м²
  • Надстройка: кладовая
  • Отдельный санузел
  • Готовность к заселению: немедленно

Инвестиционная привлекательность: 7 из 10. Расположение и функциональность делают объект потенциально выгодным для бизнеса.

Цена: 429.915,00 EUR

О компании

MIRAG CONSULTING D.O.O. — это команда профессионалов с более чем 20-летним опытом. Мы предоставляем полный спектр услуг в области финансового консалтинга, инжиниринга и недвижимости в Словении. Наша команда из более чем 10 экспертов имеет все лицензии и сертификации.
Главные ценности: эффективность, прозрачность, индивидуальный подход.

Mirag Consulting

Контакты

Slovenia, Ljubljana, Likozarjeva ulica 3