Mirag Logo MIRAG CONSULTING D.O.O.

Офисы на продажу в Любляне

Строим ваше будущее в центре Европы

← Назад к каталогу

Коммерческое помещение Вич

  • Город: Любляна
  • Район: Любляна Вич
  • Площадь дома: 247 м2
  • Комнат: 3
  • Год постройки: 1988
  • Этаж: 1
  • Стоимость: € 499 000

Инфраструктура: ресторан

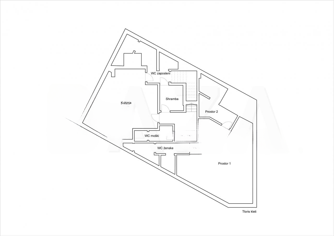
Коммерческое помещение площадью 246,7 м², предназначенное для ресторанного бизнеса, находится в районе Любляна Вич. Объект был построен в 1988 году и полностью обновлён в 2022 году, что подтверждает его современное состояние. Он расположен на первых этажах здания и включает в себя подвал, где находятся кухня, технические помещения, санузлы, кладовая и дополнительная обеденная зона, и три обеденных зала с баром на первом этаже.

Архитектурно объект представляет собой самостоятельное строение, идеально приспособленное для ведения ресторанного бизнеса. Инфраструктура района включает в себя как коммерческие, так и жилые здания, что обеспечивает приток клиентов.

Техническая оснащенность объекта соответствует современным стандартам. Помещение подключено к городским коммуникациям, включая газ для отопления и горячего водоснабжения. Интернет предоставляется через оптоволоконное подключение.

С юридической точки зрения объект готов к продаже. На текущий момент ресторан сдан в аренду надежному арендатору, что делает его инвестиционно привлекательным: помещение обеспечивает стабильный доход от арендной платы.

Расположено в развитом районе Любляна Вич, близость к необходимым объектам городской инфраструктуры делает это предложение особенно привлекательным.

  • Площадь: 246,7 м²
  • Этажность: 1 этаж и подвал
  • Свободная планировка для обеденных залов
  • Подходит для инвалидов ♿
  • Оборудовано полным комплектом ресторанного оборудования
  • Отопление: городской газ
  • Наличие кладовой

Инвестиционная привлекательность: 8 из 10. Объект изначально приспособлен для ведения успешного ресторанного бизнеса и обеспечивает постоянный доход от сдачи в аренду.

Цена: 499.000 EUR

О компании

MIRAG CONSULTING D.O.O. — это команда профессионалов с более чем 20-летним опытом. Мы предоставляем полный спектр услуг в области финансового консалтинга, инжиниринга и недвижимости в Словении. Наша команда из более чем 10 экспертов имеет все лицензии и сертификации.
Главные ценности: эффективность, прозрачность, индивидуальный подход.

Mirag Consulting

Контакты

Slovenia, Ljubljana, Likozarjeva ulica 3