Mirag Logo MIRAG CONSULTING D.O.O.

Офисы на продажу в Любляне

Строим ваше будущее в центре Европы

← Назад к каталогу

Коммерческое помещение в центре

  • Город: Любляна
  • Район: Центр
  • Площадь дома: 406 м2
  • Комнат: 2
  • Год постройки: 1963
  • Этаж: 1
  • Стоимость: € 650 000

Инфраструктура: фитнес-центр

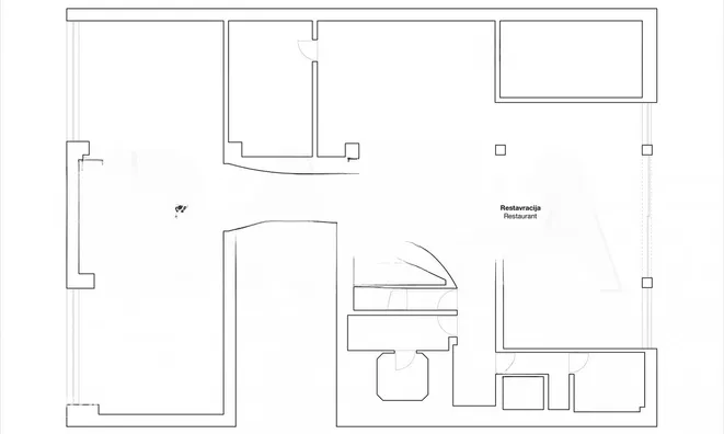
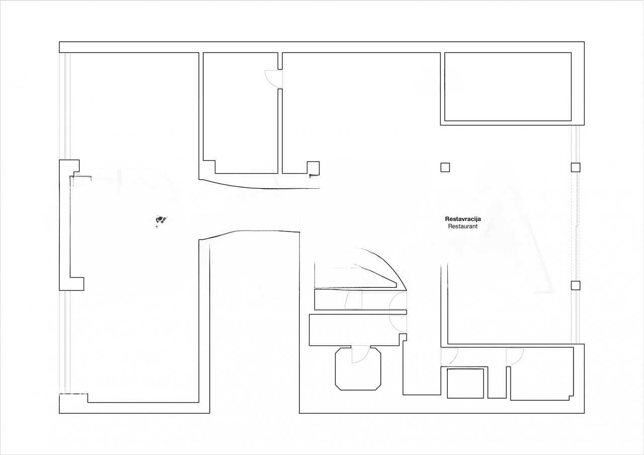
Предлагается к продаже коммерческое помещение — гостинский локаль площадью 405,5 м², расположенный в центре Любляны. Объект был построен в 1963 году и имеет два уровня: подвал и первый этаж. Это делает его идеальным для использования в качестве кафе, клуба, офиса или фитнес-центра.

Здание расположено в стратегически важном районе Любляны, в непосредственной близости от центральной инфраструктуры и Баварского двора, с легким доступом к городскому транспорту, что обеспечивает высокий поток потенциальных клиентов.

Помещение включает в себя кухню и склад в первом этаже, а также барную стойку, зал, комнату, двойные санузлы и небольшую кинозал в подвале. Недвижимость была обновлена: инженерные коммуникации модернизированы в 2009 году, а кухня, напольные покрытия и оборудование — два года назад. Обеспечена система вентиляции, а отопление подключено к городскому теплоснабжению. Оборудование полностью функционально, расходы зависят от фактического потребления.

Объект готов к эксплуатации и может быть использован сразу после приобретения.

  • Площадь: 405,5 м²
  • Уровни: Подвал + Первый этаж (K+P)
  • Отопление: Городской теплоснабжения
  • Вентиляционная система присутствует
  • Преимущества: Вблизи автобусной остановки, центра города и ресторанов

Инвестиционная привлекательность данного объекта оценивается на уровне 8 из 10 благодаря его отличному расположению и технической готовности для различных видов коммерческой деятельности.

Цена: 650.000 EUR

О компании

MIRAG CONSULTING D.O.O. — это команда профессионалов с более чем 20-летним опытом. Мы предоставляем полный спектр услуг в области финансового консалтинга, инжиниринга и недвижимости в Словении. Наша команда из более чем 10 экспертов имеет все лицензии и сертификации.
Главные ценности: эффективность, прозрачность, индивидуальный подход.

Mirag Consulting

Контакты

Slovenia, Ljubljana, Likozarjeva ulica 3