Mirag Logo MIRAG CONSULTING D.O.O.

Дома у моря доступные для покупки в Словении

Строим ваше будущее в центре Европы

← Назад к каталогу

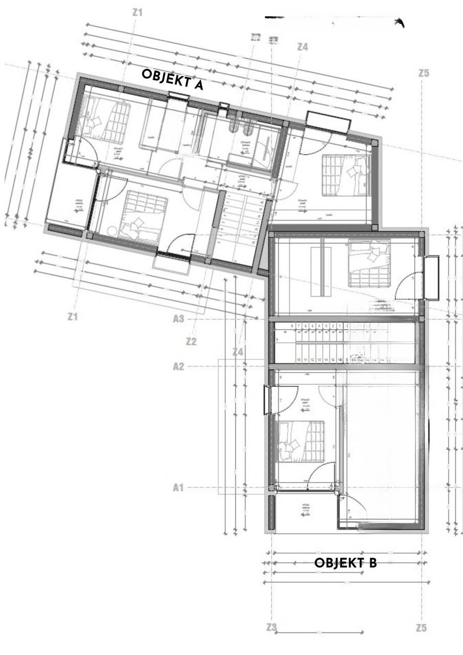
Дом на две семьи Бошамарин

  • Город: Копер
  • Район: Южная Приморская
  • Площадь дома: 187 м2
  • Площадь участка: 351 м2
  • Комнат: 5
  • Спален: 3
  • Ванных: 2
  • Год постройки: 2026
  • Этаж: 2
  • Стоимость: € 720 000

Дополнительные свойства: Бассейн
Инфраструктура: бассейн

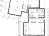
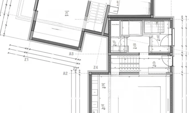
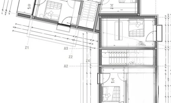
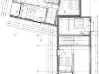
Предлагается на продажу элитная дуплексная новостройка в районе Бошамарин, город Копер. Строительство будет завершено в 2026 году. Дом расположен на участке площадью 351 м², его площадь составляет 187 м².

Особенности дома включают современный автоматизированный бассейн с системой контроля pH и хлора, солнечную электростанцию, а также благоустроенный участок с системой полива, зелёные газоны и бетонные дорожки с дренажом. Дом оборудован видеонаблюдением и сигнализацией.

  • Первый этаж:
  • Большая гостиная с обеденной зоной и кухней, выход на террасу с летней кухней
  • Кабинет
  • Ванная комната
  • Постирочная
  • Котельная
  • Лестница на второй этаж
  • Второй этаж:
  • Две спальни с выходом на общую террасу
  • Ванная комната
  • Главная спальня с гардеробной и выходом на балкон

Технические достоинства включают окна с тройной стеклопакетом и электрическими жалюзи, вентилируемые помещения с системой Blauberg, напольное отопление и насос Daikin с возможностью охлаждения и двумя кондиционерами Daikin. Современные материалы, такие как термокирпич и графитовый пенополистирол, обеспечат высокий уровень изоляции. Для интерьера предусмотрены варианты покрытия из керамики или паркета по индивидуальному выбору.

  • Площадь дома: 187 м²
  • Площадь участка: 351 м²
  • Этажность: первый этаж + второй этаж
  • Спальни: 3
  • Ванные комнаты: 2
  • Терраса и балкон
  • Автоматизированный бассейн
  • Три парковочных места
  • Солнечная электростанция
  • Система контроля климата
  • Подходит для семей и пожилых людей

Цена: 720 000 € ‍♂️

О компании

MIRAG CONSULTING D.O.O. — это команда профессионалов с более чем 20-летним опытом. Мы предоставляем полный спектр услуг в области финансового консалтинга, инжиниринга и недвижимости в Словении. Наша команда из более чем 10 экспертов имеет все лицензии и сертификации.
Главные ценности: эффективность, прозрачность, индивидуальный подход.

Mirag Consulting

Контакты

Slovenia, Ljubljana, Likozarjeva ulica 3