Mirag Logo MIRAG CONSULTING D.O.O.

Специальные предложения подобраные для Вас в Словении

Строим ваше будущее в центре Европы

← Назад к каталогу

Земельный участок под застройку в Рогашка-Слатина

  • Город: Рогашка-Слатина
  • Район: Савинска
  • Площадь участка: 792 м2
  • Стоимость: € 95 100

В Рогашка Слатина предлагается к продаже участок площадью 792,17 м², предназначенный для застройки. Участок имеет актуальное разрешение на строительство, уплачены коммунальные взносы, оформлены все необходимые сервитуты. Он расположен на живописном участке земли в северной части от центра города Рогашка Слатина.

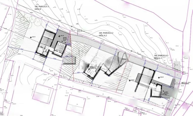
Территория окружена зелеными насаждениями с одной стороны и примыкает к границе жилого района с плотной застройкой с другой, что обеспечивает прекрасные виды на окрестные виноградные холмы. На склоне планируется строительство трех домов с видом на Рогашка Слатина, проект которых учитывает особенности рельефа, предоставляя каждой постройке уникальный вид из жилых помещений.

Строительство предусматривает два типа домов — тип A и B, адаптированных под особенности местности. Все жилые помещения располагаются на двух этажах, рядом с домом предусмотрена гаражная постройка.

  • Тип А1: Строительный участок 1: 792,17 м², брутто площадь дома 255,87 м² + гараж 41,01 м², нетто площадь: 193,60 м².
  • Тип А2: Строительный участок 2: 843,31 м², брутто площадь дома 259,87 м² + гараж 45,11 м², нетто площадь: 194,86 м².
  • Тип B: Строительный участок 3: 1.135,65 м², брутто площадь дома 266,51 м² + гараж 49,67 м², нетто площадь: 201,91 м².

Все необходимые коммуникации предусмотрены: вода, электричество и канализация. Юридически участок готов к застройке — документы оформлены, разрешения действительны. Район характеризуется развитой инфраструктурой, легким доступом к общественным и коммерческим службам, а также хорошей транспортной доступностью.

Инвестиционная привлекательность объекта оценивается на 8 из 10 благодаря удобному расположению, наличию всех разрешений и красивым видам. Общая стоимость составляет 95 100 € за участок площадью 792,17 м².

О компании

MIRAG CONSULTING D.O.O. — это команда профессионалов с более чем 20-летним опытом. Мы предоставляем полный спектр услуг в области финансового консалтинга, инжиниринга и недвижимости в Словении. Наша команда из более чем 10 экспертов имеет все лицензии и сертификации.
Главные ценности: эффективность, прозрачность, индивидуальный подход.

Mirag Consulting

Контакты

Slovenia, Ljubljana, Likozarjeva ulica 3