Mirag Logo MIRAG CONSULTING D.O.O.

Квартиры доступные для покупки на Мальте

Строим ваше будущее в центре Европы

← Назад к каталогу

Sannat Gozo Retreat

  • Город: Gozo - Sannat
  • Район: Gozo
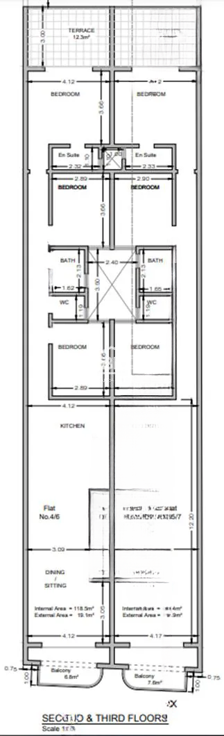
  • Площадь дома: 139 м2
  • Спален: 3
  • Ванных: 2
  • Стоимость: € 212 000

Инфраструктура: лифт

Bedrooms: 3, Bathrooms: 2, Inside Area: 119 sqm, Outside Area: 20 sqm

  • ✓ Доступно с: сейчас
  • ✓ Тип: Apartment
  • ✓ Задний двор: да
  • ✓ Зона для барбекю: да
  • ✓ Кухня / Гостиная / Столовая: да
  • ✓ Лифт: да

Новое предложение на рынке — это квартира на втором этаже, расположенная в престижном районе Sannat, на тихой улице рядом с удобствами. Планировка включает в себя открытую кухню, гостиную с обеденной зоной и выходом на передний балкон, три большие двухместные спальни, одна из которых с собственной ванной, главную ванную комнату и просторную террасу сзади, подходящую для развлечений.

Квартира предлагается в состоянии shell, с готовыми общими частями, включая лифт. Гарaж opционально доступен за дополнительную плату.

О компании

MIRAG CONSULTING D.O.O. — это команда профессионалов с более чем 20-летним опытом. Мы предоставляем полный спектр услуг в области финансового консалтинга, инжиниринга и недвижимости в Словении. Наша команда из более чем 10 экспертов имеет все лицензии и сертификации.
Главные ценности: эффективность, прозрачность, индивидуальный подход.

Mirag Consulting

Контакты

Slovenia, Ljubljana, Likozarjeva ulica 3