Mirag Logo MIRAG CONSULTING D.O.O.

Квартиры доступные для покупки на Мальте

Строим ваше будущее в центре Европы

← Назад к каталогу

Sannat Retreat Apartment

  • Город: Gozo - Sannat
  • Район: Gozo
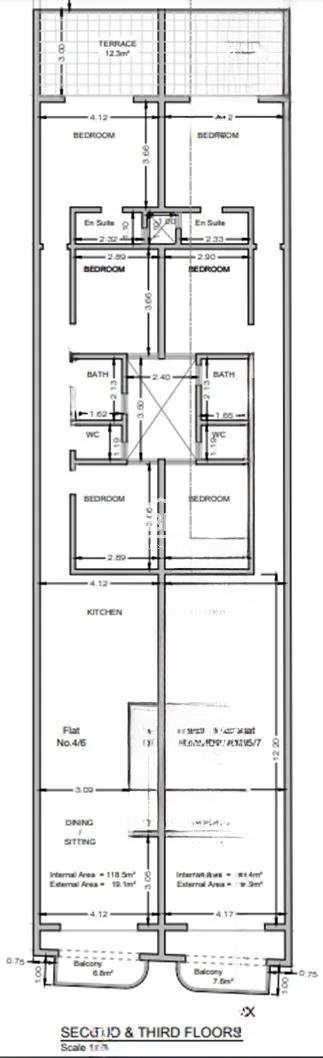
  • Площадь дома: 139 м2
  • Спален: 3
  • Ванных: 2
  • Стоимость: € 212 000

Инфраструктура: лифт

Bedrooms: 3, Bathrooms: 2, Inside Area: 119 sqm, Outside Area: 20 sqm

  • ✓ Доступно: сейчас
  • ✓ Тип: Apartment

На рынке появилась новая квартира на втором этаже в престижном районе Sannat, расположенная на тихой улице вблизи всех необходимых удобств. Планировка включает открытую кухню, гостиную и столовую, ведущие на передний балкон, три большие двухместные спальни, одна из которых с собственной ванной комнатой, основную ванную комнату и просторную заднюю террасу, подходящую для отдыха.

Эта квартира предлагается в состоянии shell, с готовыми общими частями, включая лифт. Возможна аренда дополнительных гаражей за дополнительную плату.

О компании

MIRAG CONSULTING D.O.O. — это команда профессионалов с более чем 20-летним опытом. Мы предоставляем полный спектр услуг в области финансового консалтинга, инжиниринга и недвижимости в Словении. Наша команда из более чем 10 экспертов имеет все лицензии и сертификации.
Главные ценности: эффективность, прозрачность, индивидуальный подход.

Mirag Consulting

Контакты

Slovenia, Ljubljana, Likozarjeva ulica 3