Mirag Logo MIRAG CONSULTING D.O.O.

Квартиры доступные для покупки на Мальте

Строим ваше будущее в центре Европы

← Назад к каталогу

Maltese Haven: Sannat Suites

  • Город: Gozo - Sannat
  • Район: Gozo
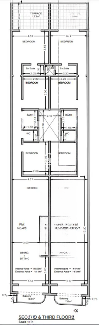
  • Площадь дома: 139 м2
  • Спален: 3
  • Ванных: 2
  • Стоимость: € 233 000

Инфраструктура: лифт

Bedrooms: 3, Bathrooms: 2, Inside Area: 119 sqm, Outside Area: 20 sqm

  • ✓ Доступно сейчас
  • ✓ Тип: Apartment
  • ✓ Задний двор: Да
  • ✓ Зона для барбекю: Да
  • ✓ Кухня / Гостиная / Столовая: Да
  • ✓ Лифт: Да

На рынке появилось новое предложение: квартира на третьем этаже, расположенная в престижной зоне Саннат, на тихой улице недалеко от всех удобств.

Планировка включает открытую кухню, гостиную и столовую с выходом на передний балкон, три большие двухместные спальни, одна из которых с собственной ванной, главную ванную комнату и просторную заднюю террасу, идеально подходящую для развлечений.

Квартира предлагается в состоянии shell, с готовыми общими частями, включая лифт.

О компании

MIRAG CONSULTING D.O.O. — это команда профессионалов с более чем 20-летним опытом. Мы предоставляем полный спектр услуг в области финансового консалтинга, инжиниринга и недвижимости в Словении. Наша команда из более чем 10 экспертов имеет все лицензии и сертификации.
Главные ценности: эффективность, прозрачность, индивидуальный подход.

Mirag Consulting

Контакты

Slovenia, Ljubljana, Likozarjeva ulica 3