Mirag Logo MIRAG CONSULTING D.O.O.

Квартиры доступные для покупки на Мальте

Строим ваше будущее в центре Европы

← Назад к каталогу

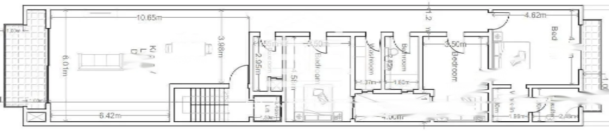
Nadur Gozo Retreat

  • Город: Gozo - Nadur
  • Район: Gozo
  • Площадь дома: 186 м2
  • Спален: 3
  • Ванных: 3
  • Стоимость: € 245 000

Инфраструктура: лифт

Bedrooms: 3, Bathrooms: 3, Inside Area: 176 sqm, Outside Area: 10 sqm

  • ✓ Доступно сейчас
  • ✓ Тип: Apartment

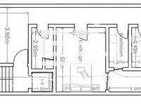
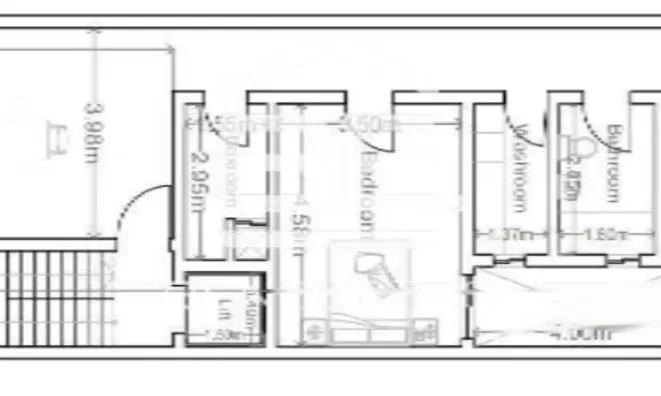
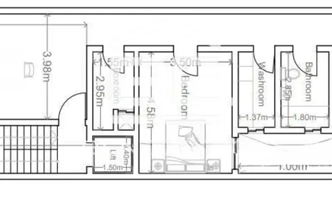
Эти апартаменты на третьем этаже с лифтом в небольшом здании на четыре квартиры расположены в тихом районе Надура, Гозо. Планировка включает в себя открытую зону с кухней, гостиной и столовой, ведущую на переднюю террасу, три двойные спальни, главная из которых имеет собственную ванную и гардеробную, прачечную, кладовую, основную ванную комнату и задний балкон.

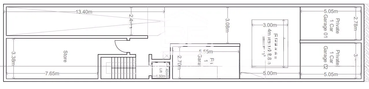
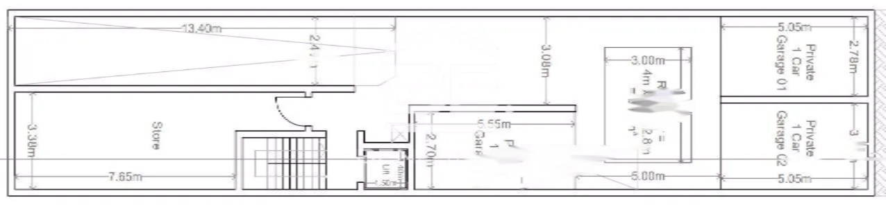
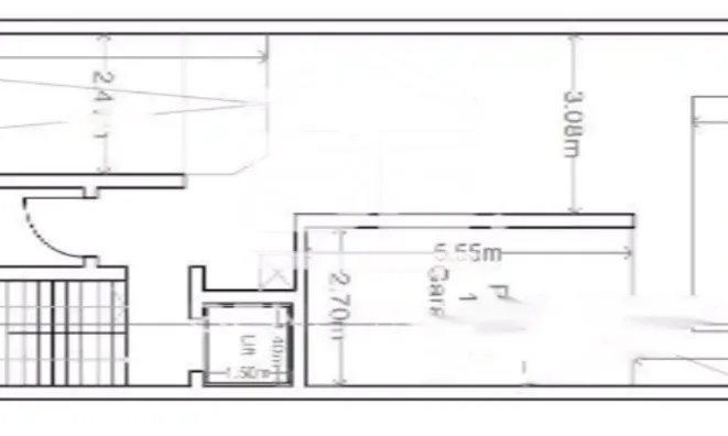
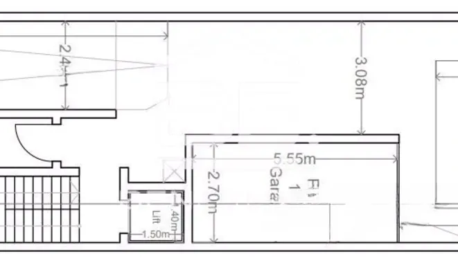
Квартира будет продана по плану в необработанном виде, с отделкой общих частей, с правом свободного владения. Доступны опциональные гаражи в подвале.

О компании

MIRAG CONSULTING D.O.O. — это команда профессионалов с более чем 20-летним опытом. Мы предоставляем полный спектр услуг в области финансового консалтинга, инжиниринга и недвижимости в Словении. Наша команда из более чем 10 экспертов имеет все лицензии и сертификации.
Главные ценности: эффективность, прозрачность, индивидуальный подход.

Mirag Consulting

Контакты

Slovenia, Ljubljana, Likozarjeva ulica 3