Mirag Logo MIRAG CONSULTING D.O.O.

Квартиры доступные для покупки на Мальте

Строим ваше будущее в центре Европы

← Назад к каталогу

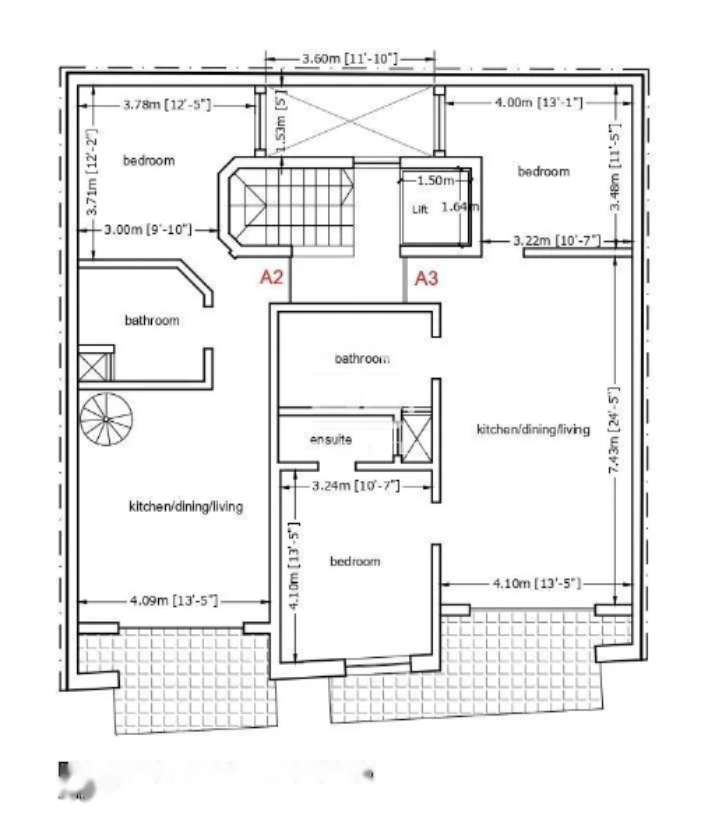
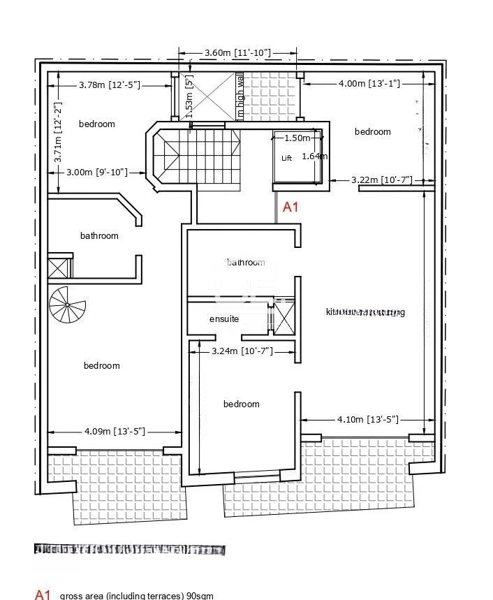
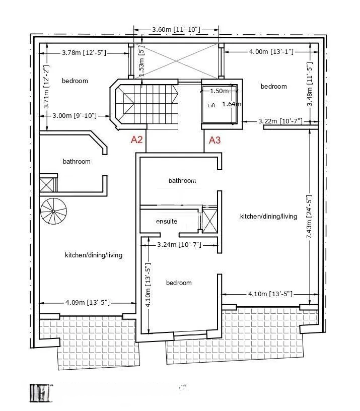
Mosta Central Apartments

  • Город: Mosta
  • Район: Central
  • Площадь дома: 90 м2
  • Спален: 2
  • Ванных: 2
  • Стоимость: € 390 000

Инфраструктура: лифт

Bedrooms: 2, Bathrooms: 2, Inside Area: 82 sqm, Outside Area: 8 sqm

  • ✓ Доступно сейчас
  • ✓ Тип: квартира
  • ✓ Балкон: есть
  • ✓ Столовая: есть
  • ✓ Полностью отделано
  • ✓ Кухня: есть
  • ✓ Кухня/столовая: есть
  • ✓ Кухня/гостиная/столовая: есть
  • ✓ Лифт: есть
  • ✓ Гостиная: есть
  • ✓ Открытая территория: есть
  • ✓ Разрешены домашние животные
  • ✓ Зал: есть
  • ✓ Компактная планировка
  • ✓ Терраса: есть
  • ✓ Вид на город: есть

️ Этот дуплекс находится в пешей доступности от купола в Мосте и предлагается к продаже по плану. Апартамент включает кухню/гостиную/столовую с открытой планировкой и балконом, выходящим на частный сад, две спальни и две ванные комнаты.

В цену включены все отделочные работы за исключением внутренних дверей и ванных комнат. Опционально можно приобрести гараж на уровне улицы.

О компании

MIRAG CONSULTING D.O.O. — это команда профессионалов с более чем 20-летним опытом. Мы предоставляем полный спектр услуг в области финансового консалтинга, инжиниринга и недвижимости в Словении. Наша команда из более чем 10 экспертов имеет все лицензии и сертификации.
Главные ценности: эффективность, прозрачность, индивидуальный подход.

Mirag Consulting

Контакты

Slovenia, Ljubljana, Likozarjeva ulica 3