Mirag Logo MIRAG CONSULTING D.O.O.

Квартиры доступные для покупки на Мальте

Строим ваше будущее в центре Европы

← Назад к каталогу

Marsalforn Sea View Retreat

  • Город: Gozo - Marsalforn
  • Район: Gozo
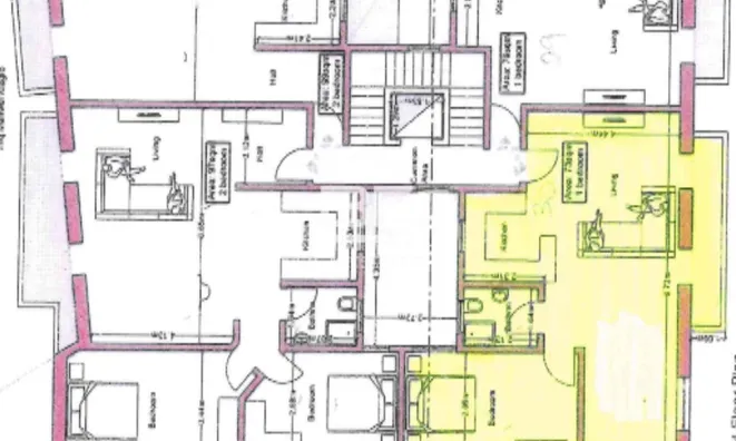
  • Площадь дома: 73 м2
  • Спален: 1
  • Ванных: 1
  • Стоимость: € 190 000

Инфраструктура: лифт

Bedrooms: 1, Bathrooms: 1, Inside Area: 68 sqm, Outside Area: 5 sqm, Total Area: 73 sqm;

  • ✓ Доступно сейчас
  • ✓ Тип: Квартира

Всего в нескольких шагах от прекрасной бухты Марсалфорн расположена эта недавно построенная квартира в черновой отделке на четвертом этаже, доступная как по лестнице, так и на лифте.

Недвижимость включает в себя кухню, гостиную и столовую открытой планировки с балконом, основную ванную комнату, просторную спальню с двуспальной кроватью, а также дополнительное помещение, которое можно использовать в качестве второй спальни. Комнаты хорошо освещены естественным светом.

Все удобства, такие как рестораны, бары, супермаркеты, аптеки и общественный транспорт, находятся в пешей доступности. ‍♂️

О компании

MIRAG CONSULTING D.O.O. — это команда профессионалов с более чем 20-летним опытом. Мы предоставляем полный спектр услуг в области финансового консалтинга, инжиниринга и недвижимости в Словении. Наша команда из более чем 10 экспертов имеет все лицензии и сертификации.
Главные ценности: эффективность, прозрачность, индивидуальный подход.

Mirag Consulting

Контакты

Slovenia, Ljubljana, Likozarjeva ulica 3