Mirag Logo MIRAG CONSULTING D.O.O.

Квартиры доступные для покупки на Мальте

Строим ваше будущее в центре Европы

← Назад к каталогу

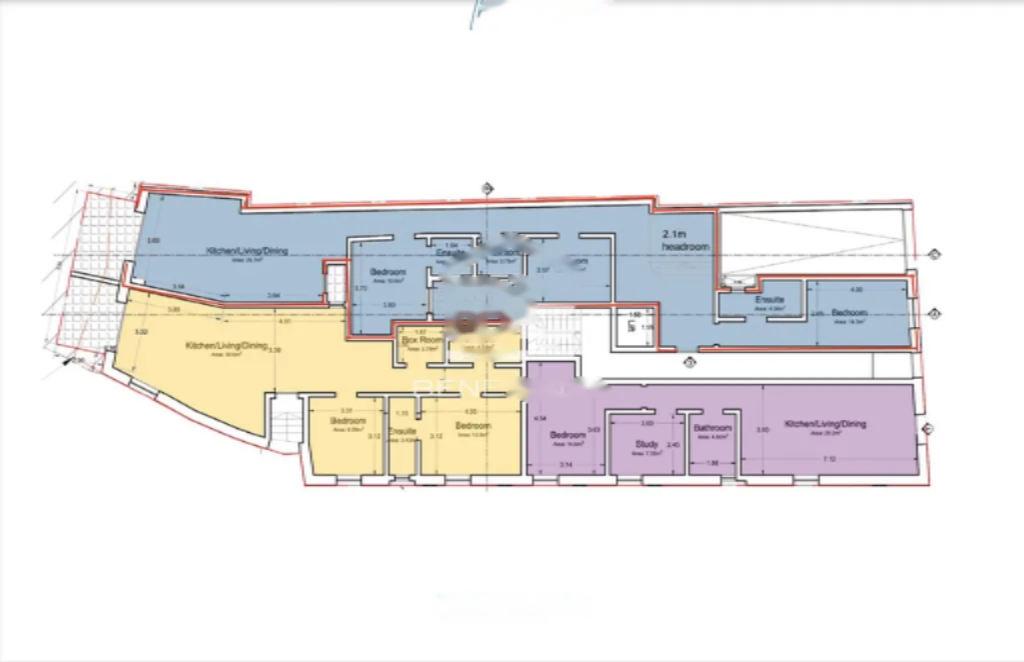
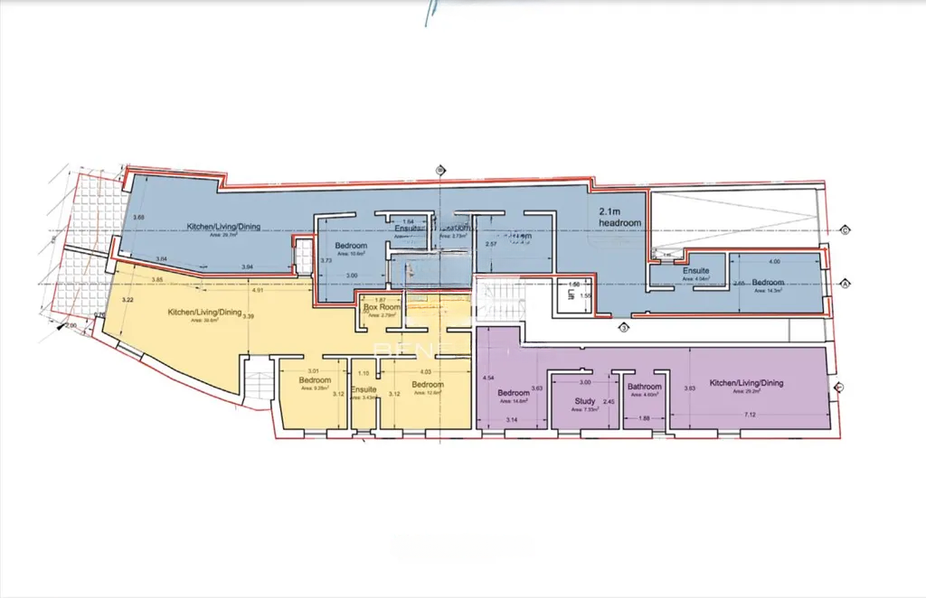
Gozo View Apartment

  • Город: Gozo - Nadur
  • Район: Gozo
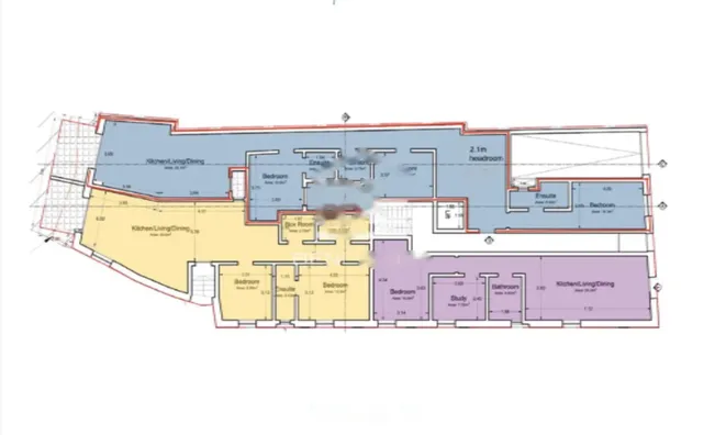
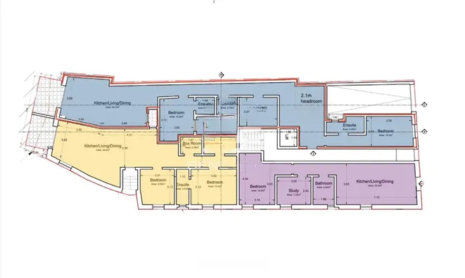
  • Площадь дома: 139 м2
  • Спален: 3
  • Ванных: 3
  • Стоимость: € 295 000

Инфраструктура: лифт

Bedrooms: 3, Bathrooms: 3, Inside Area: 126 sqm, Outside Area: 13 sqm, Total Area: 139 sqm

  • ✓ Доступно: Доступно сейчас
  • ✓ Тип: Apartment

Расположенная в востребованной деревне Надур, всего в нескольких минутах от прекрасного залива Сан Блас и в легкой доступности от всех удобств, эта квартира является частью недавно построенного комплекса на краю утёса, спроектированного для совмещения комфорта и современного образа жизни.

Недвижимость имеет продуманную планировку, включающую просторную кухню, зал и обеденную зону, три спальни (две из которых с отдельными ванными комнатами) и основную ванную комнату. Такой дизайн делает её отличным выбором как для постоянного проживания, так и для отдыха или аренды.

Комплекс оснащен пассажирским лифтом с уровня гаража, имеет высококачественную отделку общих зон и оштукатуренные фасады как с передней, так и с задней стороны, что свидетельствует о внимании к деталям и удобству. Все квартиры предлагаются в состоянии shell, что даёт покупателям возможность завершить оформление в соответствии с их собственным стилем и предпочтениями. ✨

О компании

MIRAG CONSULTING D.O.O. — это команда профессионалов с более чем 20-летним опытом. Мы предоставляем полный спектр услуг в области финансового консалтинга, инжиниринга и недвижимости в Словении. Наша команда из более чем 10 экспертов имеет все лицензии и сертификации.
Главные ценности: эффективность, прозрачность, индивидуальный подход.

Mirag Consulting

Контакты

Slovenia, Ljubljana, Likozarjeva ulica 3