Mirag Logo MIRAG CONSULTING D.O.O.

Квартиры доступные для покупки на Мальте

Строим ваше будущее в центре Европы

← Назад к каталогу

Sliema Serenity Apartment

  • Город: Msida
  • Район: Sliema Area
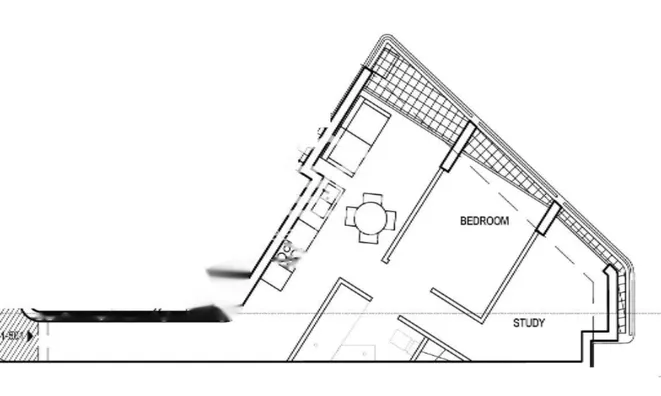
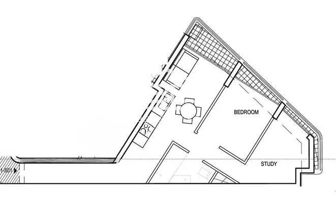
  • Площадь дома: 57 м2
  • Спален: 2
  • Ванных: 1
  • Стоимость: € 307 000

Инфраструктура: лифт

Bedrooms: 2, Bathrooms: 1, Inside Area: 50 sqm, Outside Area: 6 sqm, Total Area: 57 sqm;

  • ✓ Доступна сейчас
  • ✓ Тип: Apartment

Эта квартира на пятом этаже находится в современном здании в районе Msida и обслуживается лифтом. Просторная планировка включает в себя открытую зону, ведущую на передний балкон, основную спальню, кабинет, который можно преобразовать в спальню, и главную ванную комнату.

Доступны дополнительные места для автомобилей за отдельную плату.

О компании

MIRAG CONSULTING D.O.O. — это команда профессионалов с более чем 20-летним опытом. Мы предоставляем полный спектр услуг в области финансового консалтинга, инжиниринга и недвижимости в Словении. Наша команда из более чем 10 экспертов имеет все лицензии и сертификации.
Главные ценности: эффективность, прозрачность, индивидуальный подход.

Mirag Consulting

Контакты

Slovenia, Ljubljana, Likozarjeva ulica 3