Mirag Logo MIRAG CONSULTING D.O.O.

Квартиры доступные для покупки на Мальте

Строим ваше будущее в центре Европы

← Назад к каталогу

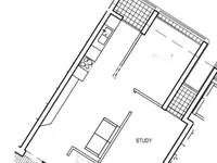
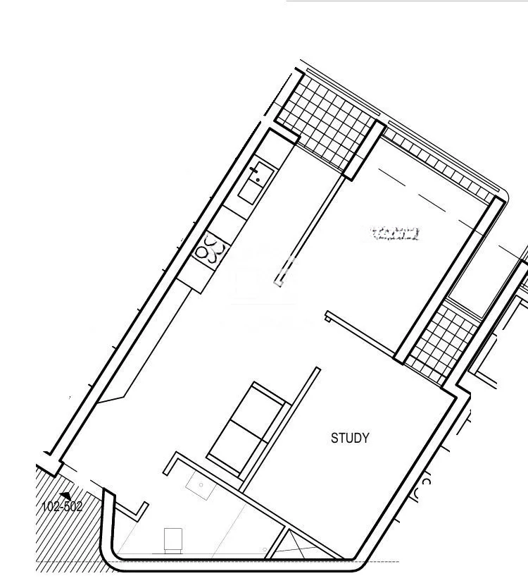
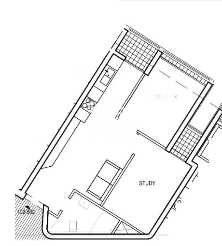
Sliema Haven Apartment

  • Город: Msida
  • Район: Sliema Area
  • Площадь дома: 55 м2
  • Спален: 2
  • Ванных: 1
  • Стоимость: € 307 000

Инфраструктура: лифт

Bedrooms: 2, Bathrooms: 1, Inside Area: 49 sqm, Outside Area: 5 sqm, Total Area: 55 sqm

  • ✓ Доступно сейчас
  • ✓ Тип: Apartment

Квартира на пятом этаже в современном доме с лифтом, расположенном в Мсидa. Планировка включает открытую гостиную, переходящую в просторный балкон, главную спальню, кабинет, который можно преобразовать в спальню, и основную ванную комнату. По желанию можно арендовать парковочные места за дополнительную плату.

О компании

MIRAG CONSULTING D.O.O. — это команда профессионалов с более чем 20-летним опытом. Мы предоставляем полный спектр услуг в области финансового консалтинга, инжиниринга и недвижимости в Словении. Наша команда из более чем 10 экспертов имеет все лицензии и сертификации.
Главные ценности: эффективность, прозрачность, индивидуальный подход.

Mirag Consulting

Контакты

Slovenia, Ljubljana, Likozarjeva ulica 3