Mirag Logo MIRAG CONSULTING D.O.O.

Квартиры доступные для покупки на Мальте

Строим ваше будущее в центре Европы

← Назад к каталогу

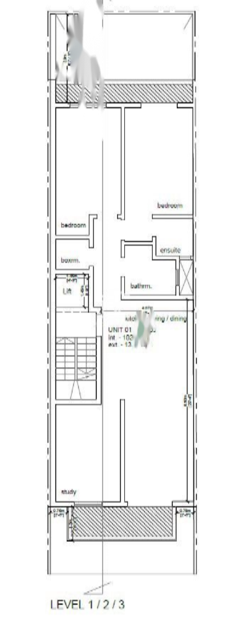
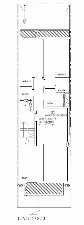
Mosta Central Apartment

  • Город: Mosta
  • Район: Central
  • Площадь дома: 116 м2
  • Спален: 2
  • Ванных: 2
  • Стоимость: € 424 000

Bedrooms: 2, Bathrooms: 2, Inside Area: 102 sqm, Outside Area: 13 sqm, Total Area: 116 sqm;

  • ✓ Доступно с: сейчас
  • ✓ Тип: Apartment

Апартаменты на третьем этаже, продаются по плану. Состоят из двух спален, рабочего кабинета, бойлерной, двух ванных комнат, кухни/гостиной/столовой открытой планировки, балконов спереди и сзади. Будут проданы с высококачественной отделкой, включая кондиционеры, ванные комнаты, двери и подвесной потолок.

Завершение строительства планируется на декабрь 2026 года.

О компании

MIRAG CONSULTING D.O.O. — это команда профессионалов с более чем 20-летним опытом. Мы предоставляем полный спектр услуг в области финансового консалтинга, инжиниринга и недвижимости в Словении. Наша команда из более чем 10 экспертов имеет все лицензии и сертификации.
Главные ценности: эффективность, прозрачность, индивидуальный подход.

Mirag Consulting

Контакты

Slovenia, Ljubljana, Likozarjeva ulica 3