Mirag Logo MIRAG CONSULTING D.O.O.

Квартиры доступные для покупки на Мальте

Строим ваше будущее в центре Европы

← Назад к каталогу

St. Paul's Bay Retreat

  • Город: St. Pauls Bay
  • Район: North
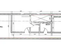
  • Площадь дома: 178 м2
  • Спален: 4
  • Ванных: 3
  • Стоимость: € 480 000

Инфраструктура: лифт

Bedrooms: 4, Bathrooms: 3, Inside Area: 162 sqm, Outside Area: 15 sqm, Total Area: 178 sqm

  • ✓ Доступно сейчас
  • ✓ Тип: Duplex Apartment
  • ✓ Балкон: Да
  • ✓ Лифт: Да
  • ✓ Открытая планировка (Кухня/Гостиная/Столовая): Да
  • ✓ Подсобное помещение: Да

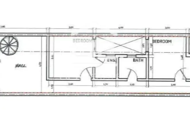
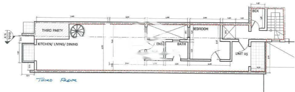
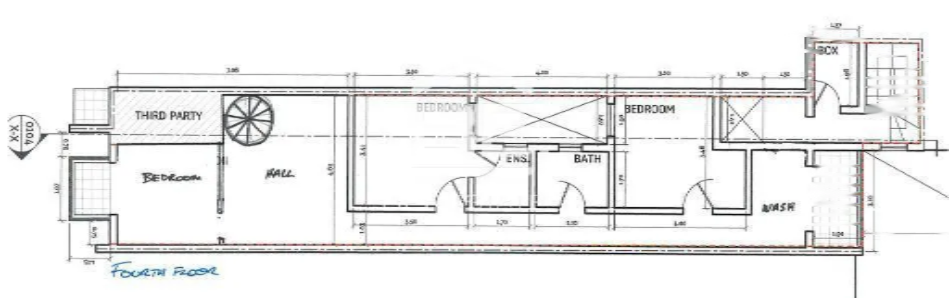
Двухуровневая квартира расположена на границе St Paul's Bay и Bugibba. Включает открытую планировку кухни, столовой и гостиной, а также кладовку, ванную комнату и спальню. На верхнем этаже расположены три дополнительные спальни, в том числе главная спальня с отдельной ванной комнатой, общая ванная и прачечная. ️ Эта квартира находится в процессе строительства и может быть разделена на две отдельные квартиры, по одной на каждом этаже. Стоимость включает все отделочные работы, за исключением ванных комнат и внутренних дверей.

О компании

MIRAG CONSULTING D.O.O. — это команда профессионалов с более чем 20-летним опытом. Мы предоставляем полный спектр услуг в области финансового консалтинга, инжиниринга и недвижимости в Словении. Наша команда из более чем 10 экспертов имеет все лицензии и сертификации.
Главные ценности: эффективность, прозрачность, индивидуальный подход.

Mirag Consulting

Контакты

Slovenia, Ljubljana, Likozarjeva ulica 3