Mirag Logo MIRAG CONSULTING D.O.O.

Квартиры доступные для покупки на Мальте

Строим ваше будущее в центре Европы

← Назад к каталогу

Qormi Central Apartments

  • Город: Qormi
  • Район: Central
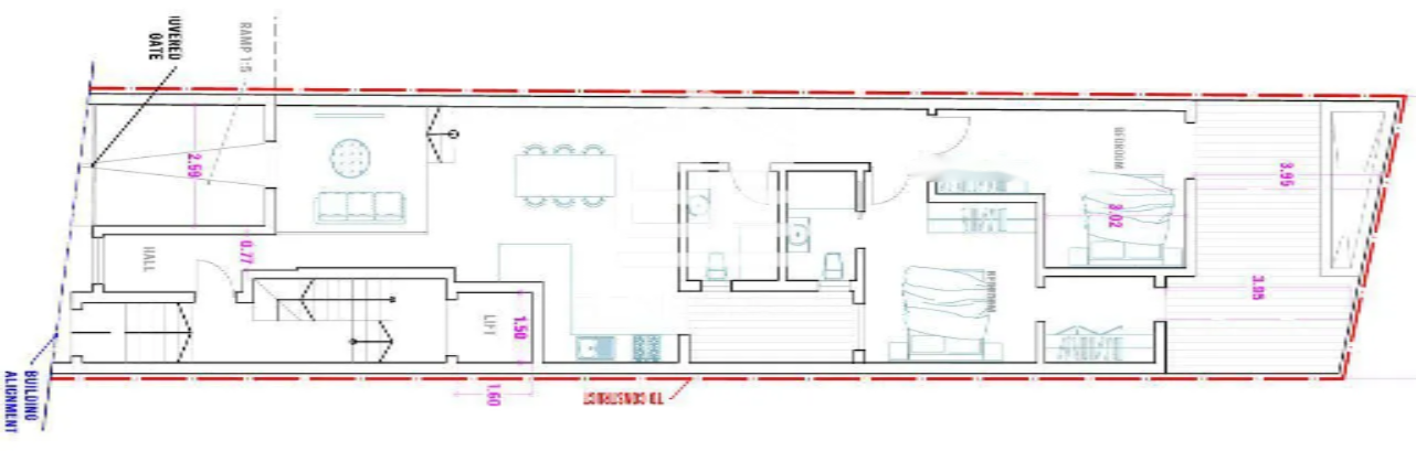
  • Площадь дома: 120 м2
  • Спален: 2
  • Ванных: 2
  • Стоимость: € 340 000

Bedrooms: 2, Bathrooms: 2, Inside Area: 95 sqm, Outside Area: 25 sqm, Total Area: 120 sqm;

  • ✓ Доступно сейчас
  • ✓ Тип: приподнятая квартира на цокольном этаже

Эта квартира на приподнятом цокольном этаже находится в спокойном районе города Qormi. Планировка объекта включает открытую кухню, гостиную и столовую зону, две двухместные спальни, основную ванную комнату и просторный задний двор.

Квартира будет продана на условиях полной собственности, без отделки ванных комнат и внутренних дверей. Разрешения на строительство уже получены. Начало строительства запланировано на конец 2025 года. ️

О компании

MIRAG CONSULTING D.O.O. — это команда профессионалов с более чем 20-летним опытом. Мы предоставляем полный спектр услуг в области финансового консалтинга, инжиниринга и недвижимости в Словении. Наша команда из более чем 10 экспертов имеет все лицензии и сертификации.
Главные ценности: эффективность, прозрачность, индивидуальный подход.

Mirag Consulting

Контакты

Slovenia, Ljubljana, Likozarjeva ulica 3