Mirag Logo MIRAG CONSULTING D.O.O.
RU | EN

Квартиры в Горици Италия на продажу

Строим ваше будущее в центре Европы

← Назад к каталогу

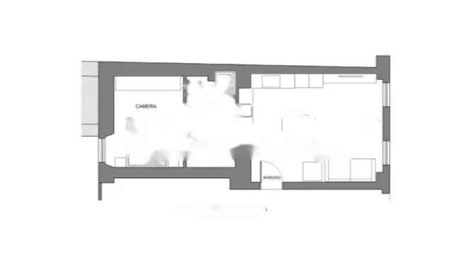
Двухкомнатная квартира в центре

  • Город: Гориция
  • Район: Центро
  • Площадь дома: 61 m2
  • Комнат: 2
  • Этаж: 1
  • Стоимость: € 125 000

Дополнительные свойства: Вид на море, Гольф, Альпы, Виноградница

Представляем вашему вниманию уникальные квартиры в историческом здании XVIII века, полностью отреставрированном и соответствующем современным требованиям. Расположенные в Горице, в самом центре города, всего в двух шагах от Муниципалитета и театра Верди, эти жилые помещения предлагают отличный баланс между современностью и сохранением исторического наследия. ✨

Квартиры предназначены для тех, кто ценит комфорт и экономичность: площадь предложения составляет 61 м², имеются автономные системы отопления и кондиционирования с возможностью регулировки температуры. Объект не оснащён балконом или террасой, однако предлагает все условия для создания уютного домашнего интерьера.

В жилом комплексе продаются 7 новых квартир с первым вводом в эксплуатацию, соответствующих классу энергопотребления A1/A2. На первом этаже располагаются две квартиры площадью 60 и 70 м² без архитектурных препятствий, что делает их идеальными для одиноких людей, молодых пар или как инвестиционная возможность.

Расположение в самом центре города предлагает отличную инфраструктуру и доступ к культурным достопримечательностям, делая это жильё привлекательным для проживания и вложений. Все квартиры полностью готовы к индивидуальному ремонту и оснащены для установки климатического инвертора, что обеспечивает низкие эксплуатационные расходы.

Проект реставрации курировал архитектор Лука Замунер, известный своими работами по консервативной реставрации в Венеции, успешно сочетая древнюю архитектуру с современными технологиями. Каждая квартира доступна для покупки отдельно, обеспечивая разнообразие выбора для будущих владельцев.

О компании

MIRAG CONSULTING D.O.O. — это команда профессионалов с более чем 20-летним опытом. Мы предоставляем полный спектр услуг в области финансового консалтинга, инжиниринга и недвижимости в Словении. Наша команда из более чем 10 экспертов имеет все лицензии и сертификации.
Главные ценности: эффективность, прозрачность, индивидуальный подход.

Mirag Consulting

Контакты

Slovenia, Ljubljana, Likozarjeva ulica 3