Mirag Logo MIRAG CONSULTING D.O.O.

Дома и квартиры доступные для покупки в Каннах Франция

Строим ваше будущее в центре Европы

← Назад к каталогу

Villa Cannes République

  • Город: Cannes
  • Район: République (06400)
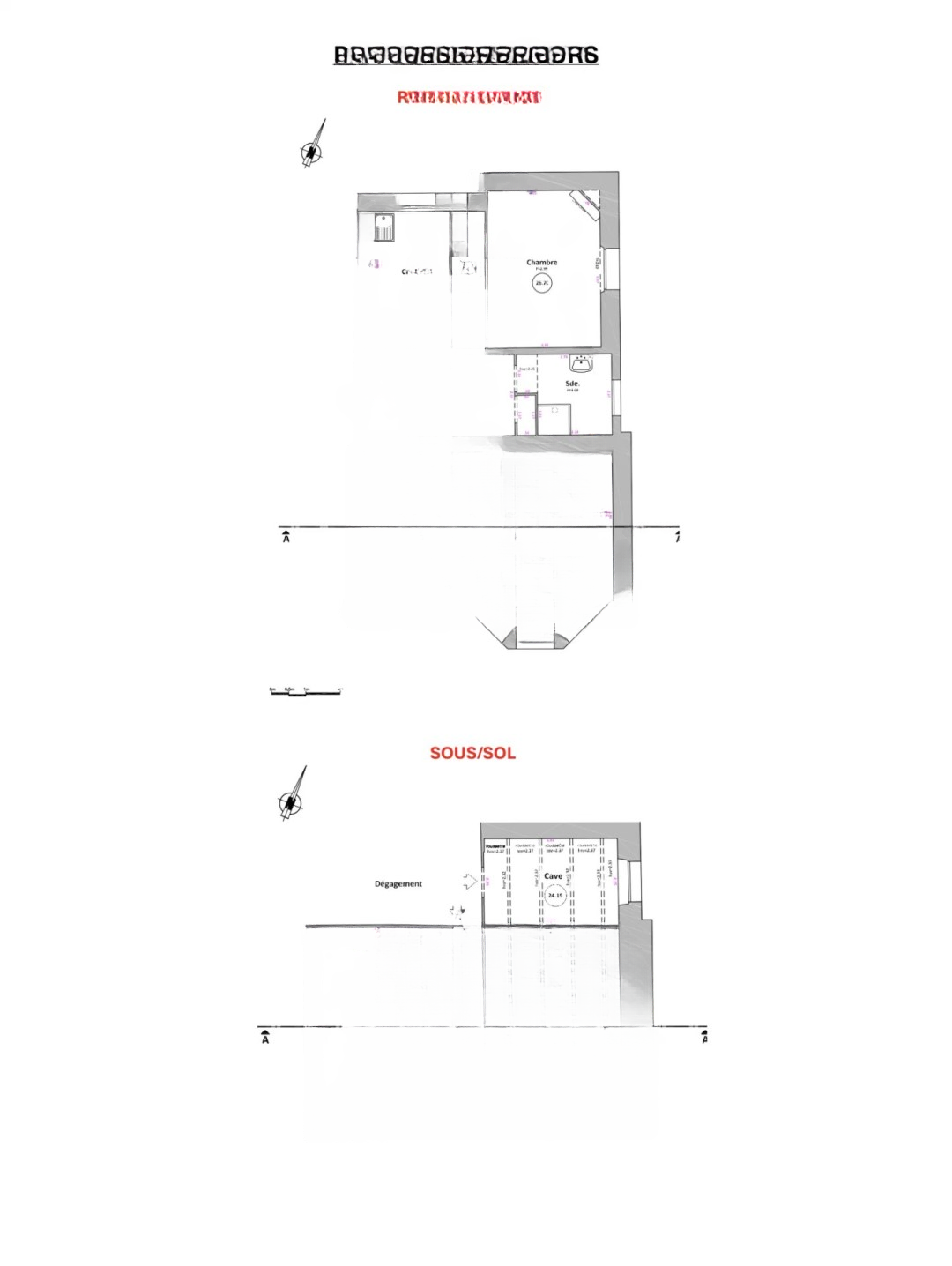
  • Площадь дома: 150 м2
  • Комнат: 5
  • Спален: 4
  • Год постройки: 1930
  • Стоимость: € 749 000

Facing south, Building of 4 floors, Quiet, Renovations needed, Built in 1930, 5 rooms, Living room 26.2 sq. m., 1 toilet, 1 shower room, Entrance, Unfurnished, 1 bathroom, 4 bedrooms, Central gas radiator heating.

  • ✓ Прекрасный вид
  • ✓ Тихое расположение

Диагностика энергетической эффективности (DPE): E; Индекс выбросов парниковых газов (GES): E

В самом сердце Канн находится уникальное жилье: редкий садовый уровень площадью 151 м² на двух уровнях, расположенный в элегантном старинном особняке. Он сочетает в себе очарование старинной архитектуры с комфортом большого семейного пространства. Каменные камины тех времен, высокие потолки и просторные комнаты подчеркивают его уникальный характер.

Главное преимущество — собственный сад площадью 91 м², истинное укромное место на свежем воздухе, что крайне необычно для центра города.

Квартира организована вокруг гостеприимного входа, который открывается в двойную гостиную, залитую светом, и отдельную кухню. Просторная и удобная главная спальня имеет собственную ванную комнату. Три дополнительные спальни, душевая комната и отдельный туалет гармонично дополняют общий антураж.

В нескольких минутах ходьбы от вокзала, улицы d'Antibes и набережной Croisette, это жилье на садовом уровне предлагает редкое качество жизни, идеально подходящее для основной резиденции или ценного инвестиционного проекта для сдачи в аренду. ️

О компании

MIRAG CONSULTING D.O.O. — это команда профессионалов с более чем 20-летним опытом. Мы предоставляем полный спектр услуг в области финансового консалтинга, инжиниринга и недвижимости в Словении. Наша команда из более чем 10 экспертов имеет все лицензии и сертификации.
Главные ценности: эффективность, прозрачность, индивидуальный подход.

Mirag Consulting

Контакты

Slovenia, Ljubljana, Likozarjeva ulica 3