Mirag Logo MIRAG CONSULTING D.O.O.
RU | EN

Квартиры в Любляне на продажу

Строим ваше будущее в центре Европы

← Назад к каталогу

Квартира 4-комн. Любляна, Шишка

  • Город: Любляна
  • Район: Шишка
  • Площадь дома: 223 m2
  • Комнат: 4
  • Спален: 3
  • Ванных: 3
  • Год постройки: 2023
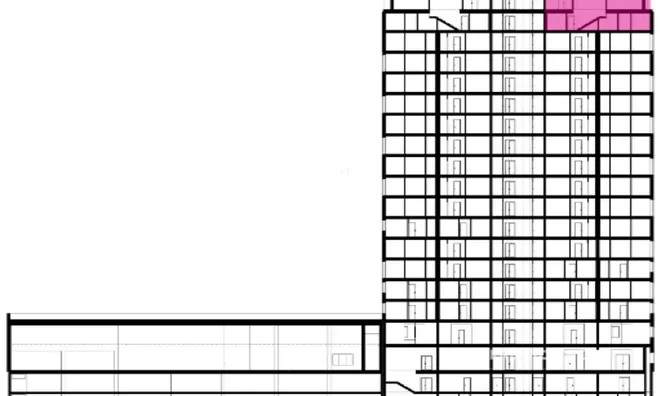
  • Этаж: 16
  • Стоимость: € 2 126 000

Дополнительные свойства: Вид на море
Инфраструктура: лифт, детские площадки

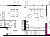
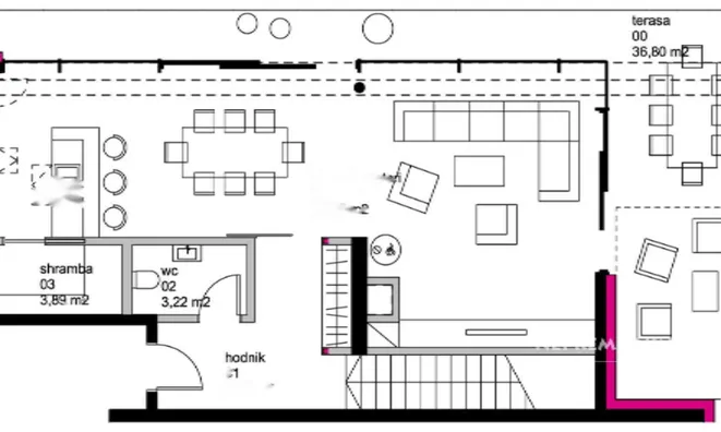
Представляем вашему вниманию эксклюзивный пентхаус в Центре Bellevue, расположенный недалеко от центра Любляны и парка Тиволи. Эта новостройка 2023 года предлагает уникальное сочетание городской жизни и близости к природе с восхитительными видами на Триглав, Камниско-Савиньские Альпы, Караванке и гору Шмарна.

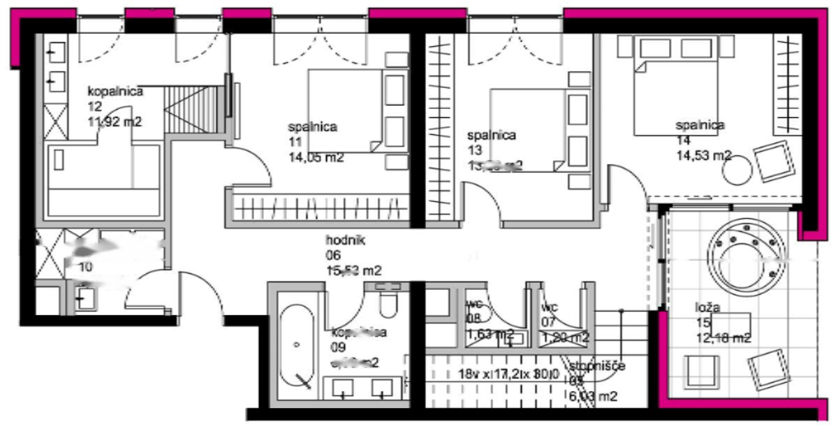
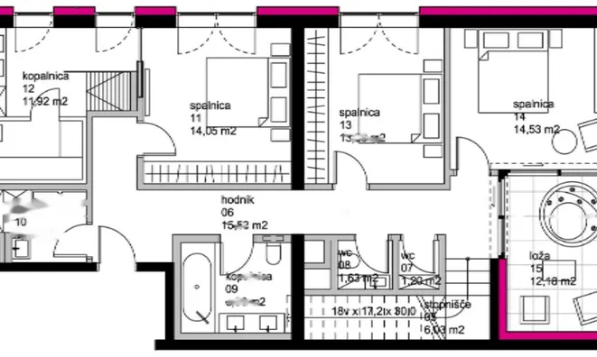
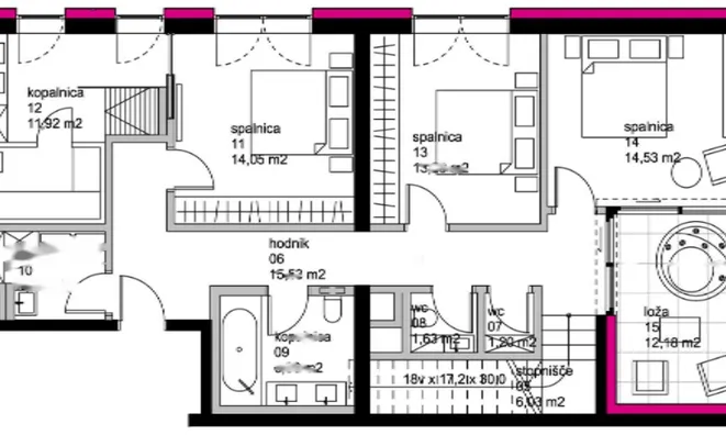
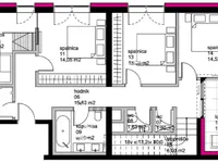
Дуплекс пентхаус занимает 15-й и 16-й этажи восточной башни и сочетает в себе комфорт, простор и панорамные виды. На 15-м этаже расположены:

  • главная спальня с собственной ванной, туалетом и сауной;
  • две детские комнаты и дополнительная ванная комната с туалетом;
  • гардеробная, подсобное помещение и кладовая.

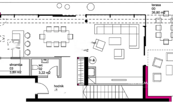
16-й этаж выступает центром общественной жизни:

  • роскошное жилое пространство с потолками высотой более 3 метров;
  • стеклянные стены, придающие ощущение простора и элегантности;
  • возможность установки камина для зимнего уюта;
  • просторная терраса с подключениями под установку джакузи.

Пентхаус включает 161,43 м² полезной площади, 49,03 м² террасы и 12,70 м² кладовой в подвале. В стоимость входят три парковочных места в гараже и четыре места для велосипедов.

Вся инфраструктура в пешей доступности: детский сад, школы, рекреационные зоны, природа, автобусные остановки, центр города и рестораны. На первом этаже для всех жильцов доступна детская площадка. Домашние животные разрешены.

  • Общая площадь: 223,16 м²
  • Этаж: 16/16
  • Количество спален: 3
  • Количество ванных: 3
  • Отдельный туалет
  • Балкон
  • Лоджия на 15-м этаже
  • Система отопления: радиаторы и теплый пол, центральное отопление
  • Противовзломные двери и домофон
  • Класс энергоэффективности: А2 (10-15 кВт·ч/м² в год)
  • Возможность установки зарядной станции

Цена: 2 126 000,00 €

О компании

MIRAG CONSULTING D.O.O. — это команда профессионалов с более чем 20-летним опытом. Мы предоставляем полный спектр услуг в области финансового консалтинга, инжиниринга и недвижимости в Словении. Наша команда из более чем 10 экспертов имеет все лицензии и сертификации.
Главные ценности: эффективность, прозрачность, индивидуальный подход.

Mirag Consulting

Контакты

Slovenia, Ljubljana, Likozarjeva ulica 3