Mirag Logo MIRAG CONSULTING D.O.O.
RU | EN

Квартиры в Любляне на продажу

Строим ваше будущее в центре Европы

← Назад к каталогу

Квартира, 5 комнат Подутика

  • Город: Любляна
  • Район: Подутика
  • Площадь дома: 164 m2
  • Площадь участка: 100 m2
  • Комнат: 6
  • Спален: 4
  • Ванных: 2
  • Год постройки: 1972
  • Этаж: 1
  • Стоимость: € 820 000

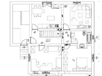
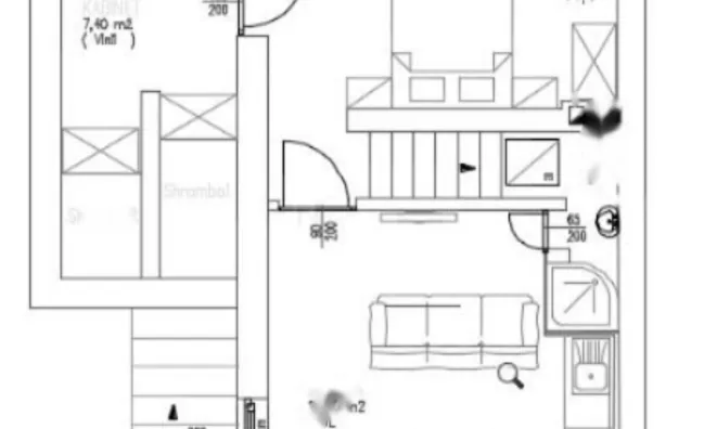
Предлагается к продаже светлый и просторный дуплекс, удачно расположенный в тихом районе Подутика, рядом с лесом и одновременно близко к центру Любляны . Общая площадь составляет 164 м², которые разделены на два независимых жилых помещения с общим атриумом площадью 100 м².

Первое жилье — трехкомнатная квартира площадью 100 м², расположенная на высоком первом этаже, с выходом в атриум. Состоит из просторной гостиной с кухней, двух больших спален, ванной комнаты и коридора. Второе — полуподвальное двухкомнатное с кабинетом общей площадью 46 м², включающее гостиную с кухней, спальню, кабинет и ванную комнату. Квартиры соединены внутренней лестницей.

Объект завершает полную реновацию с использованием высококачественных материалов и оснащен современными системами отопления на биомассе и тепловым насосом для подогрева воды. Разработана энергоэффективность класса D. Также предусмотрены радиаторы и теплый пол, установлены противовзломные двери и оптоволоконный интернет.

Идеальное расположение предлагает проживание в старой части Подутика, что обеспечивает уникальную атмосферу и близость к природным достопримечательностям и городской инфраструктуре.

  • Общая площадь: 164 м²
  • Этаж: Высокий первый/двухэтажное здание
  • Количество спален: 4
  • Количество ванных комнат: 2
  • Площадь участка: 100 м²
  • Особенности: Атриум, парковочное место
  • Отопление: Радиаторы, теплый пол, тепловой насос
  • Энергоэффективность: Класс D (60 - 105 кВт⋅ч/м²⋅год)

Цена: 820 000 €

О компании

MIRAG CONSULTING D.O.O. — это команда профессионалов с более чем 20-летним опытом. Мы предоставляем полный спектр услуг в области финансового консалтинга, инжиниринга и недвижимости в Словении. Наша команда из более чем 10 экспертов имеет все лицензии и сертификации.
Главные ценности: эффективность, прозрачность, индивидуальный подход.

Mirag Consulting

Контакты

Slovenia, Ljubljana, Likozarjeva ulica 3