Mirag Logo MIRAG CONSULTING D.O.O.
RU | EN

Квартиры в Любляне на продажу

Строим ваше будущее в центре Европы

← Назад к каталогу

Квартира 3-комн. Рожна Долина

  • Город: Любляна
  • Район: Рожна долина
  • Площадь дома: 141 m2
  • Комнат: 3
  • Спален: 2
  • Ванных: 2
  • Год постройки: 2024
  • Этаж: 1
  • Стоимость: € 1 053 000

Инфраструктура: лифт

Предлагается к продаже новая трехкомнатная квартира в престижном районе Рожна Долина. Это жилье, находящееся в доме с новейшими строительными решениями, порадует своих владельцев совершенным комфортом и высоким уровнем технологий. Отличное расположение — рядом с парком Тиволи и центром города — делает эту квартиру идеальной для тех, кто ценит близость к основным городским достопримечательностям и зеленым зонам отдыха.

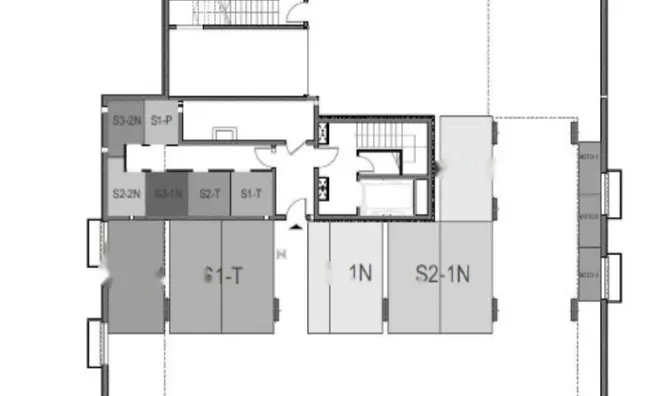
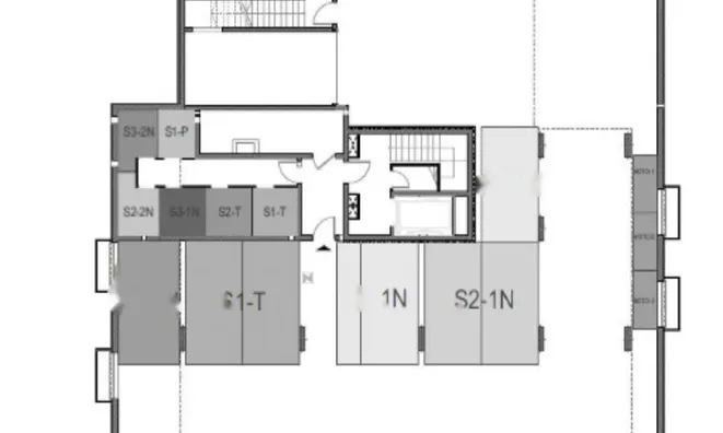
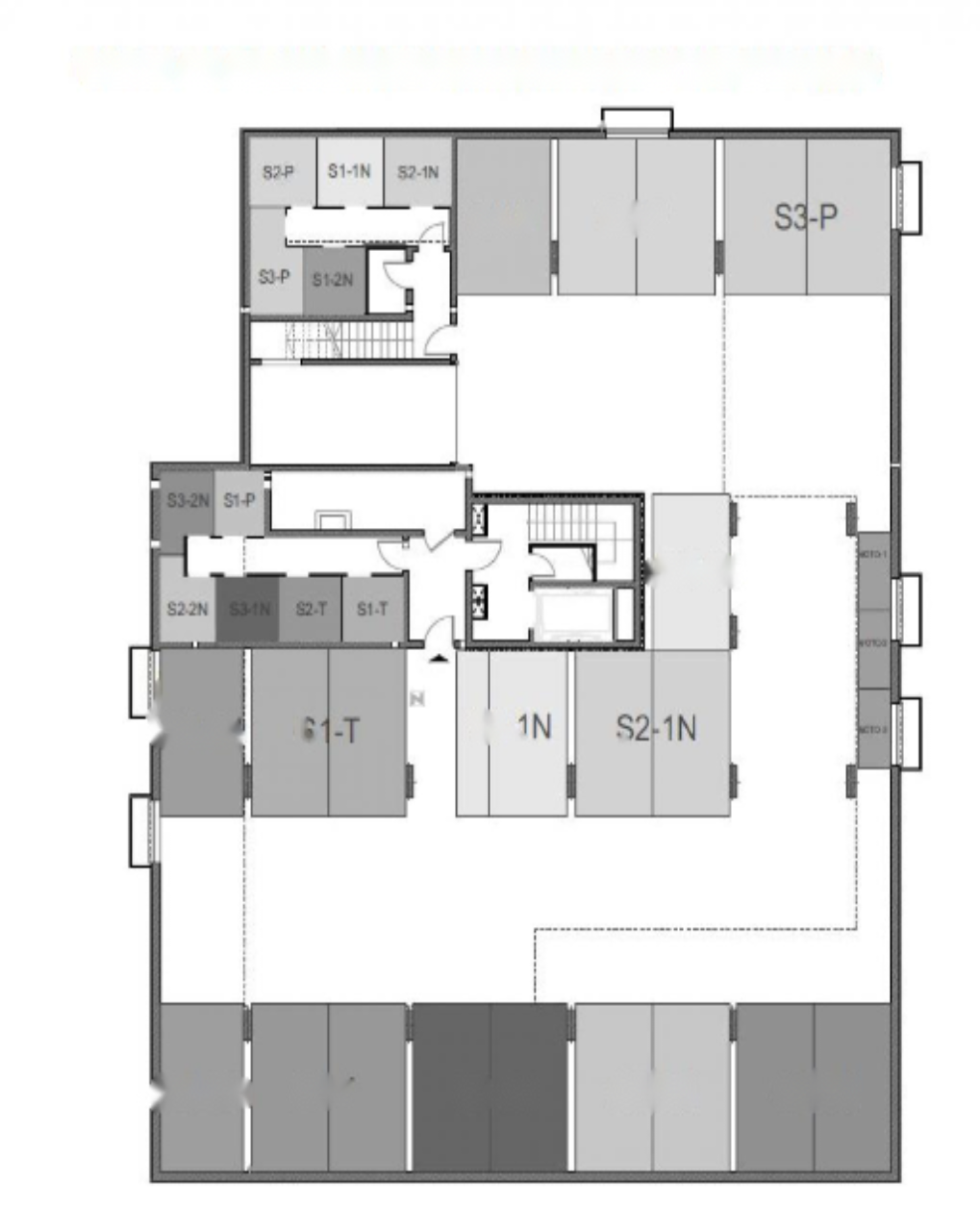
Квартира площадью 140,97 м² (общая) и 112,7 м² (чистая) находится на первом этаже пятиэтажного дома, находящегося на стадии строительства. В доме предусмотрен лифт. Здесь всего 10 эксклюзивных квартир, и половина из них уже нашла своих владельцев.

Техническое оснащение этого жилого проекта отвечает всем современным стандартам. В квартире установлено напольное и настенное отопление, а также стропное и настенное охлаждение, что обеспечивает идеальную температуру в любое время года. Особой гордостью является система "умный дом" Gira с возможностью удаленного управления. Система вентиляции с возвратом тепла обеспечивает комфортный микроклимат. Панорамные алюминиевые окна с тройным остеклением дарят тишину и максимальное количество света, а также снабжены электрическими жалюзи для управления светом. ✨

Квартира включает в себя две спальни и две ванных комнаты, имеет просторную террасу для отдыха и наслаждения свежим воздухом. В доме предусмотрены паркинги с возможностью установки зарядной станции для электромобилей, а также охрана периметра, обеспечивающая безопасность жильцов.

Отделка выполнена на высочайшем уровне: полы из массивного дуба уложены в рисунок "елочка", а ванная комната оснащена дизайнерской мебелью. Для комфортного парковки предусмотрены раздельные просторные места с высокими потолками в гараже, что позволяет парковать даже крупногабаритные автомобили с багажниками на крыше.

Окружающая территория оформлена ухоженной зеленью, создающей атмосферу уюта и уединения. Энергетически эффективное здание позволяет сэкономить на отоплении и охлаждении, сохраняя комфорт на высшем уровне и гарантируя высокую инвестиционную привлекательность в будущем.

  • Общая площадь: 140,97 м²
  • Этаж: 1/5
  • Лифт: есть
  • Спальни: 2
  • Ванные комнаты: 2
  • Терраса: да
  • Напольное отопление: да
  • Тепловой насос: да
  • Кондиционер: да
  • Класс энергоэффективности: A2 (10-15 kWh/m²)
  • Системы отопления и охлаждения: встроенные

Цена: 1 053 000 EUR

О компании

MIRAG CONSULTING D.O.O. — это команда профессионалов с более чем 20-летним опытом. Мы предоставляем полный спектр услуг в области финансового консалтинга, инжиниринга и недвижимости в Словении. Наша команда из более чем 10 экспертов имеет все лицензии и сертификации.
Главные ценности: эффективность, прозрачность, индивидуальный подход.

Mirag Consulting

Контакты

Slovenia, Ljubljana, Likozarjeva ulica 3