Mirag Logo MIRAG CONSULTING D.O.O.
RU | EN

Квартиры в Любляне на продажу

Строим ваше будущее в центре Европы

← Назад к каталогу

Квартира 3-комнатная Бизовик

  • Город: Любляна
  • Район: Бизовик
  • Площадь дома: 192 m2
  • Комнат: 3
  • Спален: 2
  • Ванных: 1
  • Год постройки: 2027
  • Этаж: 1
  • Стоимость: € 479 000

Инфраструктура: охраняемая территория

Представляем вашему вниманию современное трёхкомнатное жильё в спокойном и зелёном районе Бизовик, всего в 5 километрах от центра Любляны, в проекте «Виз-а-Вис». Уникальная возможность погрузиться в гармоничное сочетание городской жизни и природы.

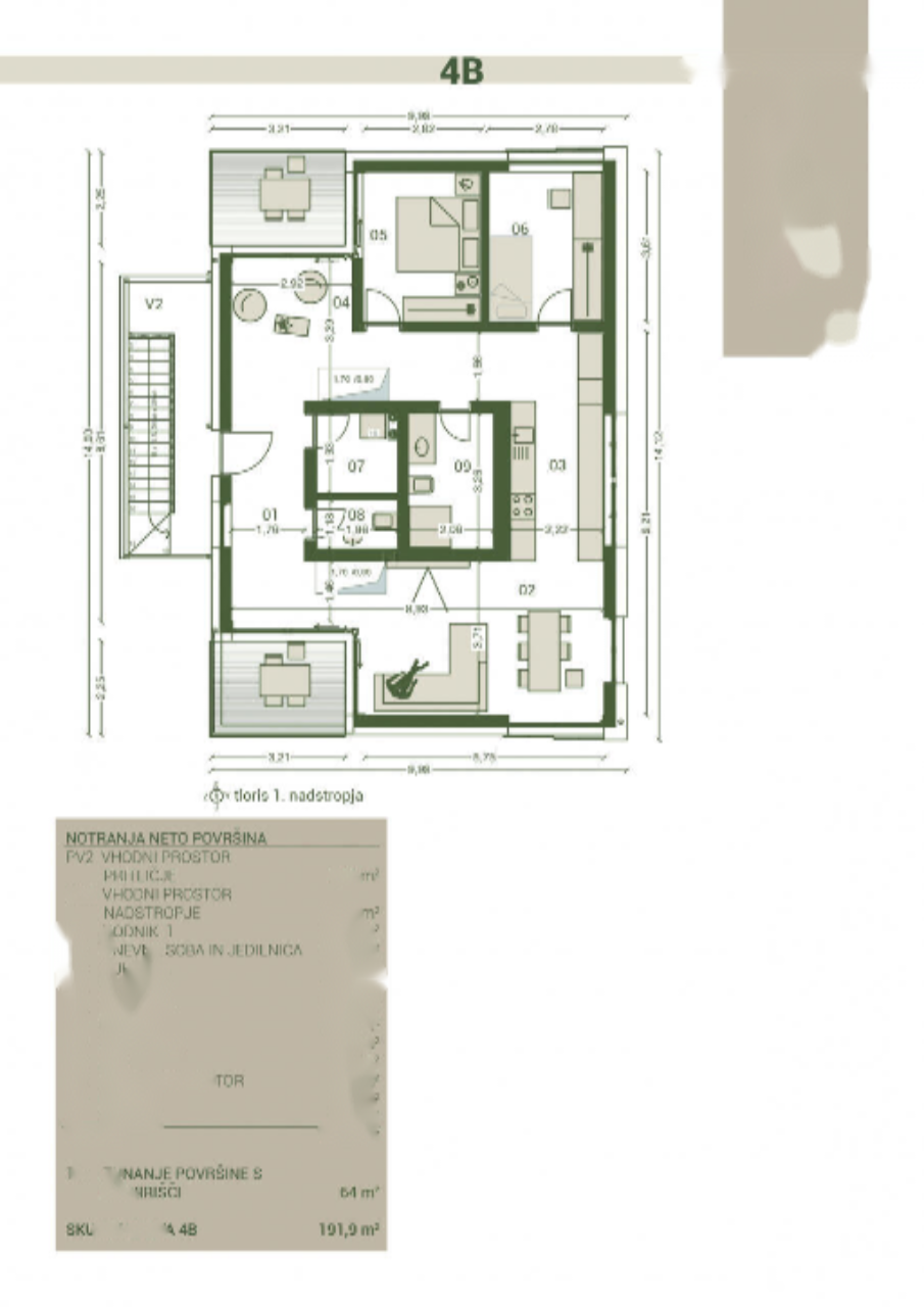
Комплекс «Виз-а-Вис» состоит из пяти двоквартирных домов и предлагает жильё с продуманной планировкой, которое обеспечивает комфорт и функциональность. Общая площадь квартиры составляет 191,9 м², из которых 127,9 м² занимают жилые помещения, а 64 м² — это внешние площади и два собственных парковочных места.

В квартире находятся две спальни, одна ванная комната, просторная гостиная с кухонной зоной и две террасы (по 7,22 м²), идеально подходящие для отдыха на свежем воздухе. Предусмотрено напольное отопление, а также установлены система кондиционирования и тепловой насос. Возможность установки и выбора межкомнатных дверей и напольного покрытия остаётся на усмотрение владельца.

Проект уже начал строиться, и передача жилья будет завершена в течение 24 месяцев. В проекте предлагается возможность переоборудования мансарды и увеличения жилой площади по желанию, что предоставляет дополнительную гибкость и комфорт.

  • Площадь квартиры: 191,9 м²
  • Этаж: 1 из 1
  • Количество спален: 2
  • Ванная комната: 1
  • Две террасы: по 7,22 м²
  • Парковочные места: 2 собственных
  • Отопление: напольное отопление, отопление на газе
  • Дополнительные удобства: кондиционер, тепловой насос
  • Близость к объектам инфраструктуры: детский сад, школа, общественный транспорт, зоны отдыха

Цена квартиры составляет 479 000,00 EUR.️

О компании

MIRAG CONSULTING D.O.O. — это команда профессионалов с более чем 20-летним опытом. Мы предоставляем полный спектр услуг в области финансового консалтинга, инжиниринга и недвижимости в Словении. Наша команда из более чем 10 экспертов имеет все лицензии и сертификации.
Главные ценности: эффективность, прозрачность, индивидуальный подход.

Mirag Consulting

Контакты

Slovenia, Ljubljana, Likozarjeva ulica 3