Mirag Logo MIRAG CONSULTING D.O.O.
RU | EN

Квартиры в Любляне на продажу

Строим ваше будущее в центре Европы

← Назад к каталогу

Квартира 4-комн. Бизовик новостройка

  • Город: Любляна
  • Район: Бизовик
  • Площадь дома: 139 m2
  • Площадь участка: 237 m2
  • Комнат: 4
  • Спален: 3
  • Ванных: 1
  • Год постройки: 2027
  • Этаж: 1
  • Стоимость: € 541 000

Инфраструктура: охраняемая территория

Современный жилой комплекс «Виз-а-Вис» в спокойном и зелёном районе Бисовик предлагает уникальную возможность приобрести стильное и комфортное жильё. Новый проект сочетает в себе современную архитектуру, качественное строительство и тщательно продуманные планировки, обеспечивающие высокий уровень комфорта и функциональности.

Комплекс состоит из десяти жилых единиц, каждая из которых предназначена для семейной жизни и для тех, кто ищет оазис спокойствия в безопасной и благоприятной среде, недалеко от центра города. Расположение идеально подходит для семей, которые ценят пространство, свет и контакт с природой.

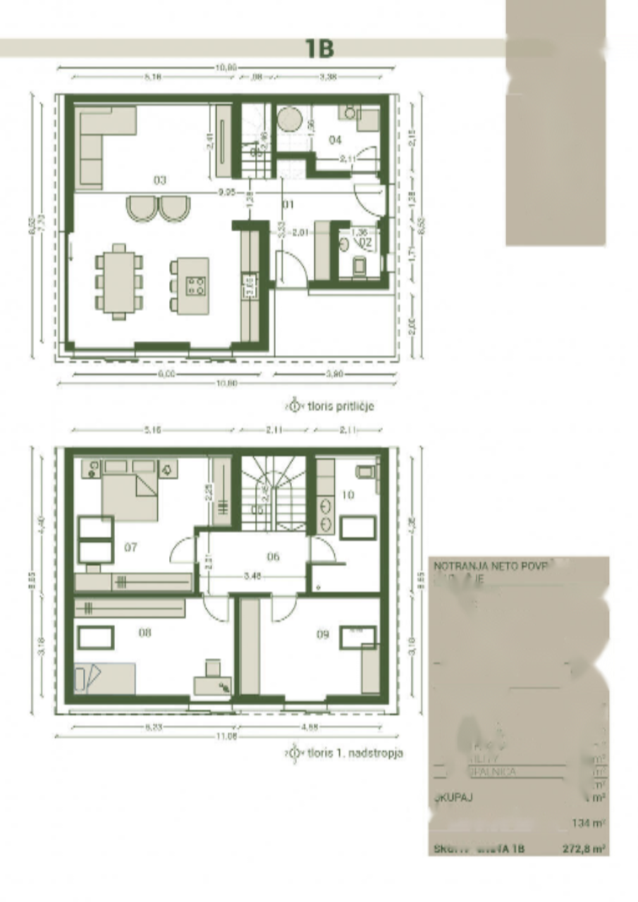
Двухуровневая квартира площадью 138,8 м² включает в себя три спальни, одну ванную комнату и просторный гостиный зал. Жилая площадь дополнена большим частным атриумом площадью 134 м² и двумя парковочными местами. Оснащение включает тёплый пол и отопление с использованием теплового насоса и газа.

«Виз-а-Вис» расположен всего в 5 км от центра Любляны. Отличное транспортное сообщение с близостью к детским садам, школам, рекреационным зонам, а также остановкам общественного транспорта и выездам на автомагистрали.

  • Общая площадь: 272,8 м² (включая жилую зону и атриум)
  • Жилая площадь: 138,8 м²
  • Атриум с парковкой: 134 м²
  • Этажи: первый этаж + другой этаж
  • Количество комнат: 4 (3 спальни, гостиная)
  • Тип отопления: Тёплый пол, тепловой насос, газ
  • Парковочные места: 2

Стоимость: 541 000,00 EUR

О компании

MIRAG CONSULTING D.O.O. — это команда профессионалов с более чем 20-летним опытом. Мы предоставляем полный спектр услуг в области финансового консалтинга, инжиниринга и недвижимости в Словении. Наша команда из более чем 10 экспертов имеет все лицензии и сертификации.
Главные ценности: эффективность, прозрачность, индивидуальный подход.

Mirag Consulting

Контакты

Slovenia, Ljubljana, Likozarjeva ulica 3