Mirag Logo MIRAG CONSULTING D.O.O.
RU | EN

Квартиры в Любляне на продажу

Строим ваше будущее в центре Европы

← Назад к каталогу

Квартира в центре Любляны

  • Город: Любляна
  • Район: Центр
  • Площадь дома: 132 m2
  • Комнат: 5
  • Спален: 3
  • Ванных: 2
  • Год постройки: 1700
  • Этаж: 1
  • Стоимость: € 619 000

Инфраструктура: ресторан

В сердце Любляны предлагается к продаже уникальная пятикомнатная квартира в старинном доме, построенном в 1700 году и полностью реконструированном в 2003 году. Расположенная на первом этаже трехквартирного дома, эта недвижимость отличается спокойствием и окружена зеленью. Она всего в нескольких минутах ходьбы от замка, а также предоставляет быстрый доступ до исторического центра и ключевых инфраструктурных объектов города.

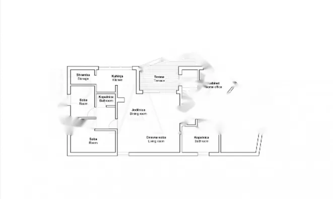
Просторная квартира площадью 132 м² занимает весь верхний этаж, с окнами, ориентированными на все стороны света, и великолепным видом на Любляну. Функциональная планировка включает лестницу с прихожей, кабинет, главную спальню с ванной комнатой и ванной, две детские комнаты с собственной ванной, кухню с кладовой, открытую гостиную с камином и балконом, ориентированным на запад. Над гостиной расположены балконные галереи, используемые как игровая и потолочная кладовая. В квартире также есть подсобное помещение на первом этаже и кладовая в подвале.

Полная реконструкция была проведена с 1992 по 2003 годы, а в 2016 году была обновлена ванная комната. Вся квартира оборудована теплым полом, работающим на газе и дровах, а также системой кондиционирования воздуха. Отопление и горячее водоснабжение осуществляются с помощью собственной газовой печи. Для жителей данного района доступна парковка перед домом, с возможностью въезда по разрешению.

В непосредственной близости находятся детский сад, школа, зоны отдыха, автобусная остановка и выезд на автомагистраль. Местонахождение также позволяет быстро добраться до центра города и многочисленных ресторанов. Это жилье идеально подходит для семей, пар и пожилых людей. Домашние животные могут быть заселены.

  • Площадь жилья: 132 м²
  • Балкон: 13,20 м²
  • Подвал: 15,20 м²
  • Квартир в доме: 3
  • Этажность: 1/1
  • Спальни: 3
  • Ванные комнаты: 2
  • Отопление: газ, дрова
  • Парковка: да
  • Кондиционер: да

Цена: 619,000 EUR

О компании

MIRAG CONSULTING D.O.O. — это команда профессионалов с более чем 20-летним опытом. Мы предоставляем полный спектр услуг в области финансового консалтинга, инжиниринга и недвижимости в Словении. Наша команда из более чем 10 экспертов имеет все лицензии и сертификации.
Главные ценности: эффективность, прозрачность, индивидуальный подход.

Mirag Consulting

Контакты

Slovenia, Ljubljana, Likozarjeva ulica 3