Mirag Logo MIRAG CONSULTING D.O.O.
RU | EN

Квартиры в Любляне на продажу

Строим ваше будущее в центре Европы

← Назад к каталогу

Квартира 2,5 комнаты, Тобор

  • Город: Любляна
  • Район: Табор
  • Площадь дома: 189 m2
  • Комнат: 2
  • Спален: 2
  • Ванных: 1
  • Год постройки: 1907
  • Этаж: 3
  • Стоимость: € 485 000

Инфраструктура: ресторан

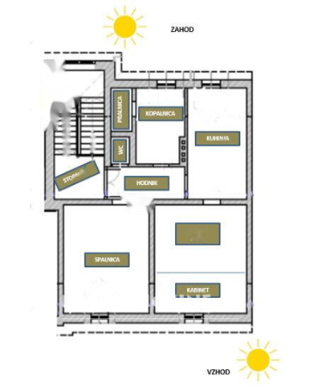
Предлагается просторный пентхаус площадью 188,9 м², идеально подходящий для комфортной жизни в центре Любляны, в районе Спортивного парка Табор. Расположенное на верхнем 3-м этаже, это жилище выдаётся высокими потолками и тихим местоположением, создавая уникальное ощущение уюта и исключительности.

Мансардная часть квартиры включает 2,5 комнаты общей площадью 95 м², плюс чердачное пространство площадью 75 м², которое обеспечит будущим владельцам широкий спектр использования: создание галереи, пентхауса или дополнительных жилых помещений. Из окон открывается живописный вид на Люблянский замок.

В квартире выполнен качественный ремонт 2019 года. Ванная комната оснащена тёплым полом и современным душем. Также имеется отдельный туалетный и подсобный помещения. Помещение отапливается от городского теплоснабжения дополнительно к радиаторному и воздушному кондиционированию, что позволяет использовать систему как для обогрева, так и для охлаждения. ❄️

Особенности: собственный коридор и последний пролёт лестницы оформлены в качестве долевой собственности. К квартире прилагаются два подвальных помещения размером 20 м² и предоставляется возможность покупки гаража в общем дворе.

Идеальное расположение в центре города открывает шаговую доступность к детскому саду, школе, остановкам общественного транспорта, ресторанам и зонам отдыха. Преимущество малошумной и зеленой окрестности делает этот пентхаус особенно привлекательным для жизни.

  • Площадь: 188,9 м²
  • Этаж: 3/3
  • Комнат: 2 спальни, гостиная
  • Ванная комната: 1 плюс отдельный туалет
  • Энергетический класс: D (60 - 105 кВтч/м²а)
  • Полная или частичная меблировка
  • Отопление: радиаторами, тёплыми полами и климат-системой
  • Коммуникации: домофон
  • Документальное оформление: нотариально заверенный договор

Цена: 485 000 EUR

О компании

MIRAG CONSULTING D.O.O. — это команда профессионалов с более чем 20-летним опытом. Мы предоставляем полный спектр услуг в области финансового консалтинга, инжиниринга и недвижимости в Словении. Наша команда из более чем 10 экспертов имеет все лицензии и сертификации.
Главные ценности: эффективность, прозрачность, индивидуальный подход.

Mirag Consulting

Контакты

Slovenia, Ljubljana, Likozarjeva ulica 3