Mirag Logo MIRAG CONSULTING D.O.O.
RU | EN

Квартиры у моря доступные для покупки в Словении

Строим ваше будущее в центре Европы

← Назад к каталогу

Квартира у Порторожского пляжа

  • Город: Порторож
  • Район: Южная Приморская
  • Площадь дома: 137 m2
  • Комнат: 3
  • Спален: 2
  • Ванных: 2
  • Год постройки: 2027
  • Этаж: 2
  • Стоимость: € 1 781 298

Дополнительные свойства: Вид на море
Инфраструктура: лифт

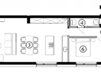
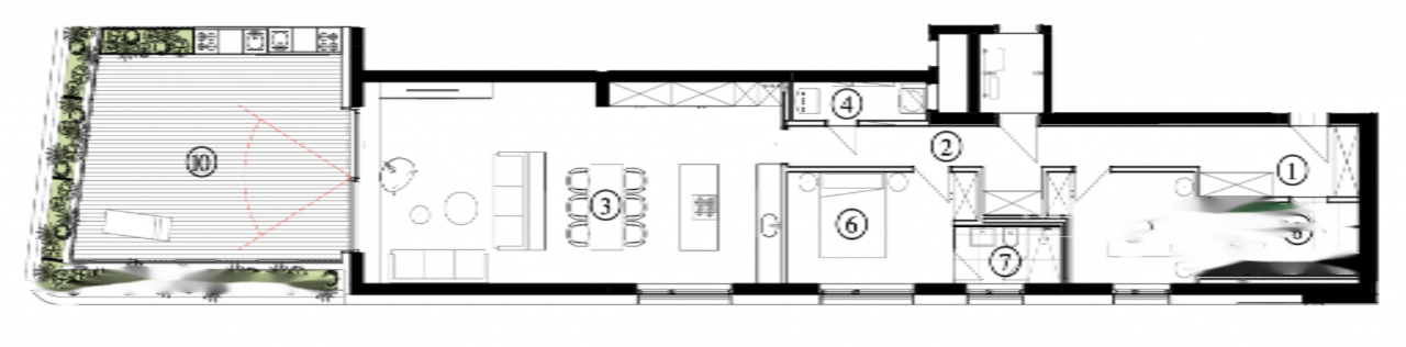
Предлагаем вашему вниманию трехкомнатный апартамент в престижном проекте Virginia Residence, расположенном на первой линии знаменитого пляжа в Портороже. С верховными видами на море и прямым доступом к приморской инфраструктуре, этот объект предлагает уникальное сочетание люкса и комфорта.

Апартамент площадью 136,8 м² расположен на втором этаже четырехэтажного здания и оснащен двумя спальнями, каждой из которых предусмотрена собственная ванная комната, что обеспечивает высокий уровень приватности. Благоустроенная терраса размером 33,1 м² позволяет наслаждаться великолепными видами и располагает подготовками для установки наружной кухни и джакузи. В апартаменте предусмотрены современные системы отопления и кондиционирования воздуха, а также напольное отопление, что создаёт комфортные условия проживания в любое время года.

Virginia Residence представляет собой эксклюзивный проект в Портороже с всего семью апартаментами. Объект построен с использованием высококачественных материалов, таких как деревянно-алюминиевые окна с тройным остеклением и большие раздвижные стеклянные панели. Архитектура комплекса гармонично сливается с природным рельефом, что обеспечивает максимальную естественную освещенность и панорамные виды. Каждое жилое пространство продумано до мелочей для достижения исключительного уровня функциональности и уединения.

Основные преимущества:

  • Люкс-объект с уникальным расположением на берегу моря.
  • Современные террасы с высоким уровнем естественного освещения.
  • Энергоэффективные решения: теплоизоляция фасада, контроль микрохлимата и низкие эксплуатационные расходы.
  • Предусмотрены местные зеленые насаждения и затеняющий тент на террасе.

Стоимость апартамента составляет 1.781.298,00 евро.

О компании

MIRAG CONSULTING D.O.O. — это команда профессионалов с более чем 20-летним опытом. Мы предоставляем полный спектр услуг в области финансового консалтинга, инжиниринга и недвижимости в Словении. Наша команда из более чем 10 экспертов имеет все лицензии и сертификации.
Главные ценности: эффективность, прозрачность, индивидуальный подход.

Mirag Consulting

Контакты

Slovenia, Ljubljana, Likozarjeva ulica 3