Mirag Logo MIRAG CONSULTING D.O.O.

Дома и квартиры доступные для покупки в Андорре

Строим ваше будущее в центре Европы

← Назад к каталогу

Townhouse for sale in Sispony with 4 bedrooms

  • Город: Andorra
  • Район: Sispony
  • Площадь дома: 390 м2
  • Спален: 4
  • Ванных: 3
  • Стоимость: € 1 950 000

390 m 2, 4 Habitacions, 3 Banys, No Inclòs

Откройте для себя впечатляющий дом в Ла Массана на участке 400 м², который сочетает в себе современный дизайн, комфорт и стиль дзен. Общая площадь дома составляет 390 м², распределённых на три этажа, что обеспечивает просторные и качественно отделанные помещения, идеальные для тех, кто ценит качество жизни и уединение.

На верхнем этаже площадью 133 м² находится большая гостиная с центральным камином и двойной высотой потолков. Кухня большого размера с индустриальным стилем имеет прямой выход на южную террасу с садом, что отлично подходит для спокойных и приятных моментов.

На уровне ниже, через сад и вход с улицы, площадью 133 м², расположен главный спальня с гардеробной, приватной ванной комнатой и джакузи для расслабления. Здесь также имеется частная парковка на два автомобиля, а также место для котла и водяного резервуара.

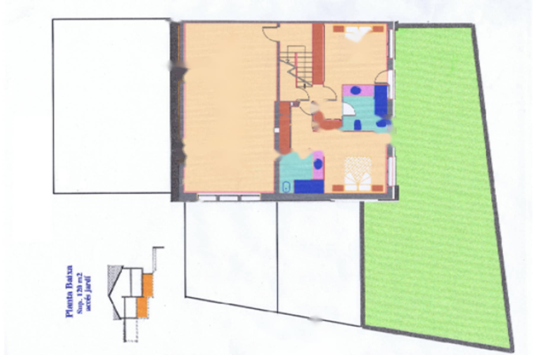
На нижнем этаже, площадью 124 м², расположены две спальни с выходом в сад, две полные ванные комнаты и просторная многофункциональная комната с большими окнами, выходящими на боковой сад. Эта комната отлично подходит для занятий спортом, учебы или встреч.

Сады площадью 252 м², окружающие дом, построены в японском стиле дзен, известном как Каре Сандуй, создавая атмосферу покоя и гармонии. Эти сады делят пространство с двумя общественными террасами на южной стороне, что позволяет насладиться солнцем и природой. ☀️

Дом был отремонтирован и включает в себя теплоизоляцию с использованием ламинатов Tecnol и закрытий Placo, а также деревянные полы, придающие уют, хотя в некоторых зонах требуется обновление. Система отопления сочетает радиаторы и полы с подогревом в коридоре и главной спальне, обеспечивая комфортное и эффективное распределение тепла.

Этот дом сочетает в себе современность и спокойствие в завидной природной обстановке Ла Массаны, делая его идеальным выбором для семей, ищущих качество жизни в уютной и эксклюзивной атмосфере.

О компании

MIRAG CONSULTING D.O.O. — это команда профессионалов с более чем 20-летним опытом. Мы предоставляем полный спектр услуг в области финансового консалтинга, инжиниринга и недвижимости в Словении. Наша команда из более чем 10 экспертов имеет все лицензии и сертификации.
Главные ценности: эффективность, прозрачность, индивидуальный подход.

Mirag Consulting

Контакты

Slovenia, Ljubljana, Likozarjeva ulica 3