Mirag Logo MIRAG CONSULTING D.O.O.

Дома и квартиры доступные для покупки в Андорре

Строим ваше будущее в центре Европы

← Назад к каталогу

New property ready by 2027 with two bedrooms

  • Город: Andorra
  • Район: Andorra la Vella
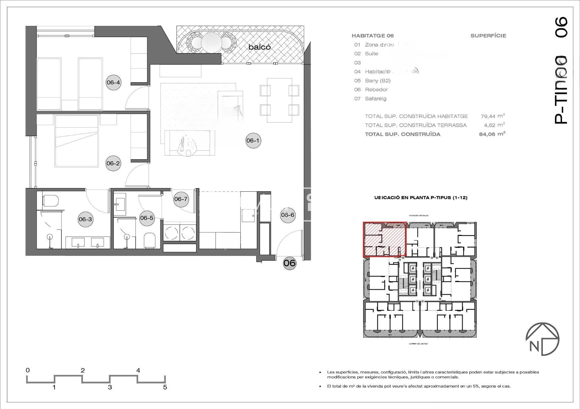
  • Площадь дома: 84 м2
  • Спален: 2
  • Ванных: 2
  • Стоимость: € 598 000

84 m 2, 2 Habitacions, 2 Banys, No Inclòs

Эксклюзивный новый проект строительства расположен всего в 500 метрах от центра Andorra la Vella и его главной торговой улицы. Здание из 14 этажей планируется завершить к декабрю 2027 года. Оно предложит современную, удобную и функциональную среду с зелеными зонами и площадкой для паддла. Квартиры отличаются современным дизайном, энергетической эффективностью класса A и использованием материалов высшего качества. У всех есть внешнее пространство с практичными балконами или террасами, и у них продуманная ориентация, обеспечивающая естественный свет и термический комфорт на протяжении всего года. Основные характеристики включают структуру и фасад из системы предварительно изготовленных бетонных конструкций и вентилируемых фасадов с керамической облицовкой, имитирующей бетон и технологическое дерево, что придает элегантность и долговечность. Внешняя столярня выполнена из алюминия или ПВХ с терморазрывом и тройным стеклом, что гарантирует лучшее тепло- и звукоизоляцию. Климатизация осуществляется с помощью системы напольного отопления-охлаждения с производством ГВС через сеть FEDA Ecoterm, максимальная эффективность и комфорт. Имеется предварительная установка умного дома и моторизованные непрозрачные шторы в гостиной. Светодиодное освещение в кухнях, ванных комнатах и общих зонах. Также предусмотрена предварительная установка для электромобилей на парковочных местах. Внутренние отделочные работы включают SPC ламинат и противоскользящий керамогранит на балконах и террасах. Кухни полностью оборудованы мебелью MOBALPA или подобной, столешницей CERATOP или аналогичной и бытовой техникой SIEMENS или эквивалентной. Ванные комнаты оснащены подвесной мебелью, термостатическими смесителями и душевым поддоном из смолы с перегородкой. Входная дверь бронированная, а внутренние двери лакированы. Благодаря конструктивному проекту, продвинутой изоляции и энергосистемам последнего поколения, проект получает наивысшую энергетическую оценку A, снижая потребление и воздействие на окружающую среду. Эта недвижимость площадью 84 м2 располагается на втором этаже с балконом 4,62 м2 и обращена на север. Включает: - Прихожую с шкафом. - Просторную гостиную-столовую, оборудованную кухню. - Функциональную прачечную и полную ванную комнату в одном помещении. - Просторную спальню с встроенными шкафами. - Главную спальню с встроенными шкафами и полной ванной комнатой. - Выход на балкон из гостиной, обеспечивающий приватность. Возможна покупка парковочного места и кладовой.

О компании

MIRAG CONSULTING D.O.O. — это команда профессионалов с более чем 20-летним опытом. Мы предоставляем полный спектр услуг в области финансового консалтинга, инжиниринга и недвижимости в Словении. Наша команда из более чем 10 экспертов имеет все лицензии и сертификации.
Главные ценности: эффективность, прозрачность, индивидуальный подход.

Mirag Consulting

Контакты

Slovenia, Ljubljana, Likozarjeva ulica 3