Mirag Logo MIRAG CONSULTING D.O.O.

Дома и квартиры доступные для покупки в Андорре

Строим ваше будущее в центре Европы

← Назад к каталогу

New property ready in 2027 with two bedrooms

  • Город: Andorra
  • Район: Andorra la Vella
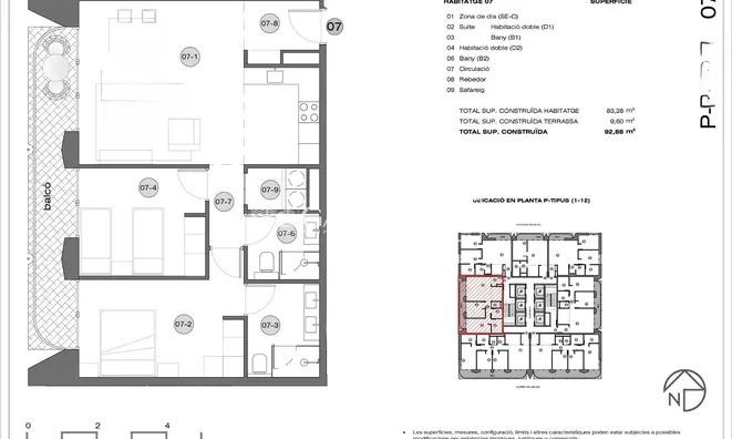
  • Площадь дома: 92 м2
  • Спален: 2
  • Ванных: 2
  • Стоимость: € 567 000

92 m 2, 2 Habitacions, 2 Banys, No Inclòs

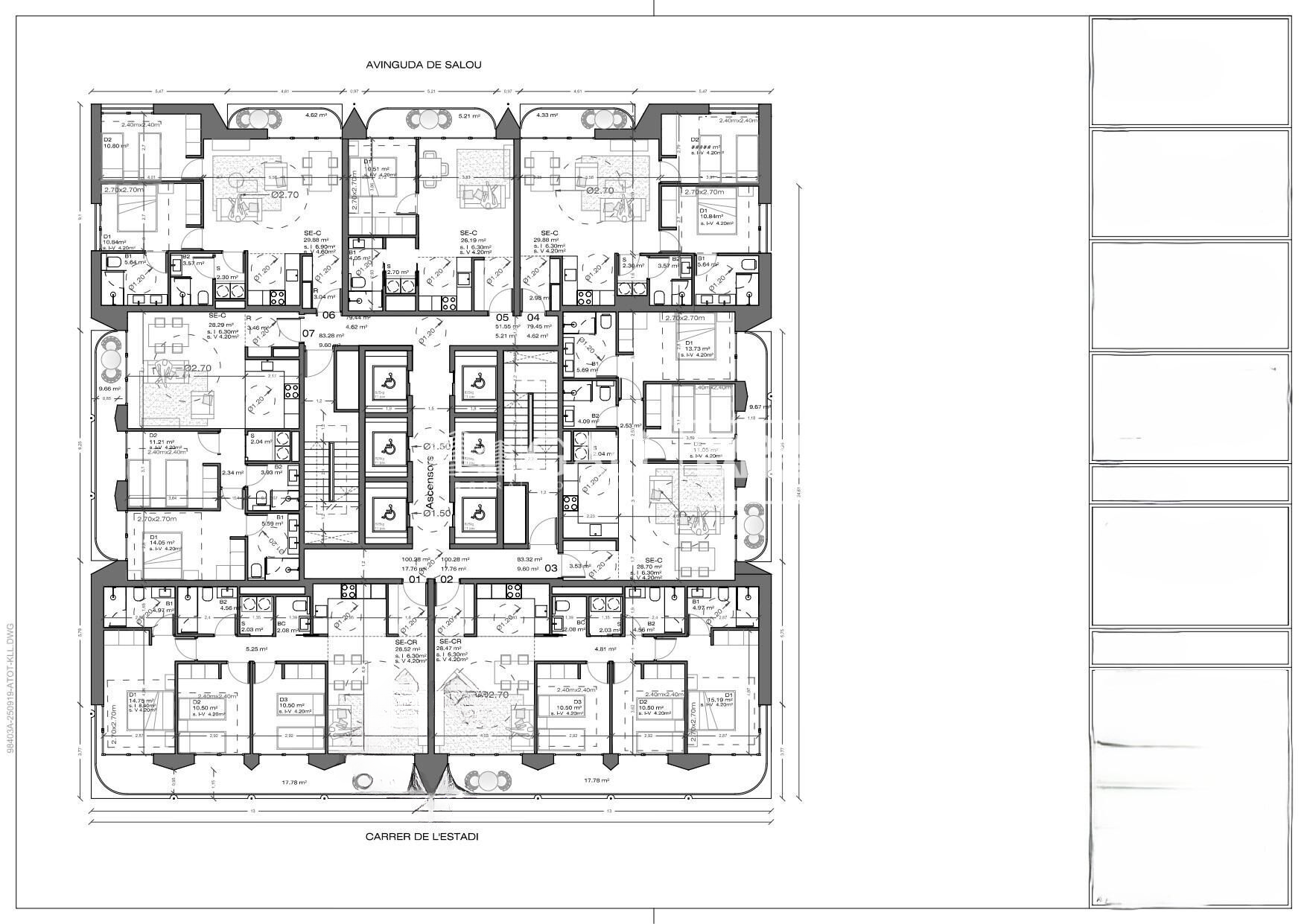
Эксклюзивный проект новостройки расположен всего в 500 метрах от центра Андорра-ла-Велья и её главной торговой зоны. Здание из 14 этажей планируется завершить к декабрю 2027 года. Оно предложит современную, удобную и функциональную среду с зелёными зонами и паддл-кортом.

Квартиры отличаются современным дизайном, энергоэффективностью класса A и использованием материалов высокого качества. У каждой квартиры есть внешний простор с удобными балконами или террасами, а продуманная ориентация обеспечивает естественное освещение и термический комфорт круглый год.

Основные характеристики включают в себя: систему из сборного бетона и вентилируемый фасад с покрытием из керамики под бетон и технологическую древесину, которые придают элегантность и долговечность. Наружные окна из алюминия или ПВХ с терморазрывом и тройным стеклом обеспечивают наилучшую термо- и звукоизоляцию. Система климат-контроля с подогреваемыми и охлаждаемыми полами и производством горячей воды через сеть FEDA Ecoterm обеспечивает максимальную эффективность и комфорт. Предусмотрена масштабируемая система умного дома и моторизованные непрозрачные шторы в гостиной. В кухнях, ванных комнатах и общих зонах установлено LED-освещение. Предусмотрена возможность установки зарядки для электромобилей на паркинге.

Внутри квартиры отделка выполнена из слоистого SPC покрытия Grät и нескользящего керамогранита на балконах и террасах. Кухни полностью оборудованы мебелью MOBALPA или аналогичной, с рабочими поверхностями CERATOP или аналогичными, а также техникой SIEMENS или аналогичной. Ванных комнатах — подвесные мебельные изделия, термостатические смесители и душевые поддоны из смолы с перегородками. Входная дверь бронированная, внутренние двери окрашенные.

Благодаря конструктивному дизайну, передовой изоляции и современным энергетическим системам, проект достигает максимальной энергетической квалификации класса A, снижая потребление и воздействие на окружающую среду.

Эта недвижимость площадью 92 м2 находится на первом этаже, с балконом площадью 9,6 м2 и западной ориентацией, что обеспечивает вечернее солнце. Включает: вход с гардеробом, просторную гостиную, оборудованную кухню, функциональную кладовую, полную ванную комнату, одну просторную спальню с встроенными шкафами, основную спальню с гардеробом и полную ванную комнату, выход на балкон из любого помещения. Возможность приобретения парковочного места и кладовки.

О компании

MIRAG CONSULTING D.O.O. — это команда профессионалов с более чем 20-летним опытом. Мы предоставляем полный спектр услуг в области финансового консалтинга, инжиниринга и недвижимости в Словении. Наша команда из более чем 10 экспертов имеет все лицензии и сертификации.
Главные ценности: эффективность, прозрачность, индивидуальный подход.

Mirag Consulting

Контакты

Slovenia, Ljubljana, Likozarjeva ulica 3