Mirag Logo MIRAG CONSULTING D.O.O.

Дома и квартиры доступные для покупки в Андорре

Строим ваше будущее в центре Европы

← Назад к каталогу

New property available in 2027 with two bedrooms

  • Город: Andorra
  • Район: Andorra la Vella
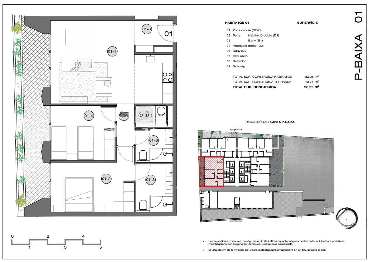
  • Площадь дома: 96 м2
  • Спален: 2
  • Ванных: 2
  • Стоимость: € 536 000

96 m 2; 2 Habitacions; 2 Banys; No Inclòs;

Эксклюзивный жилой комплекс нового строительства расположен всего в 500 метрах от центра Андорра-ла-Велья и его главной торговой зоны. Здание будет иметь 14 этажей, а завершение строительства планируется в декабре 2027 года. Резиденция включает в себя озелененные зоны и падел-корт, предоставляя современную, комфортную и функциональную среду.

Все квартиры будут иметь внешнее пространство с удобными балконами. Внешняя отделка включает термический разрыв и тройное остекление, обеспечивая отличную термо- и звукоизоляцию.

Интерьеры квартир будут оформлены с использованием высококачественных материалов: LED освещение в кухнях и ванных комнатах; виниловый паркет и нескользящая керамическая плитка; полностью оборудованные кухни с мебелью бренда LEICHT или аналогичной, столешницы NEOLITH или аналогичные, с установленной техникой (духовка, плита и вытяжка).

Комплекс получит энергический класс A благодаря отличной изоляции и конструкциям. Помимо этого, будут предусмотрены: предустановка системы умного дома, шторы с моторизованным управлением в гостиной, производство горячей воды с использованием FEDA Ecoterm, климат-контроль через теплый пол.

Пример типового жилья: квартира с 3 спальными комнатами, 2 полноценными ванными, прачечной, отдельным туалетом и просторной гостиной с открытой кухней и выходом на балкон площадью 17,76 м². Основная спальня - с собственной ванной, и все комнаты, а также прихожая, оборудованы встроенными шкафами. Предусмотрена возможность приобретения гаража и кладовой (не включены в стоимость). Цена за квартиры с 3 спальнями варьируется от 612.000€ до 800.000€.

О компании

MIRAG CONSULTING D.O.O. — это команда профессионалов с более чем 20-летним опытом. Мы предоставляем полный спектр услуг в области финансового консалтинга, инжиниринга и недвижимости в Словении. Наша команда из более чем 10 экспертов имеет все лицензии и сертификации.
Главные ценности: эффективность, прозрачность, индивидуальный подход.

Mirag Consulting

Контакты

Slovenia, Ljubljana, Likozarjeva ulica 3