Mirag Logo MIRAG CONSULTING D.O.O.

Дома и квартиры доступные для покупки в Андорре

Строим ваше будущее в центре Европы

← Назад к каталогу

New property available in 2027 with three bedrooms

  • Город: Andorra
  • Район: Andorra la Vella
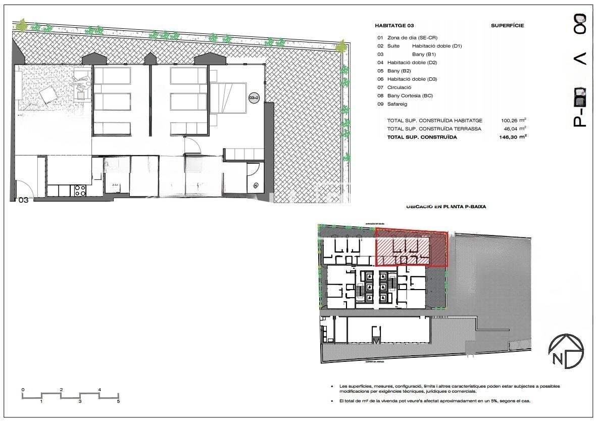
  • Площадь дома: 146 м2
  • Спален: 3
  • Ванных: 2
  • Стоимость: € 706 000

146 m 2; 3 Habitacions; 2 Banys; No Inclòs;

Эксклюзивный проект нового строительства расположен всего в 500 метрах от центра Андорры-ла-Велья и главного торгового района. Здание будет иметь 14 этажей, и завершение планируется в декабре 2027 года. Комплекс будет включать зеленые зоны и площадку для падела, предлагая современную, удобную и функциональную среду.

Все квартиры будут иметь внешнее пространство с практичными балконами. Наружные конструкции будут оснащены терморазрывами и тройным остеклением, обеспечивая отличный термо- и звукоизоляционный комфорт. Внутренняя отделка выполнена из материалов высокого качества:

LED-освещение на кухнях и в ванных комнатах.
Виниловый паркет и противоскользящий керамогранит.
Полностью оборудованные кухни с мебелью марки LEICHT или аналогичной, столешницы NEOLITH или аналогичные, и включенная бытовая техника (духовка, варочная панель, вытяжка).

Проект получит энергетическую классификацию типа A благодаря превосходной изоляции и ограждениям. Дополнительно будут доступны:

Предустановка системы "умный дом".
Моторизованные плотные шторы в гостиной.
Подготовка горячей воды с помощью FEDA Ecoterm.
Обогрев полов для максимального комфорта.

Пример типовой квартиры: квартира с 3 спальнями, 2 ванными комнатами, прачечной, гостевым туалетом и просторной гостиной-столовой с открытой кухней и выходом на балкон площадью 17,76 м2. Главная спальня — люкс, а в спальнях и прихожей имеются встроенные шкафы. В доме предусмотрена возможность приобретения парковочного места и кладовой (не включено в стоимость). Стоимость квартир с 3 спальнями варьируется от 612 000€ до 800 000€.

О компании

MIRAG CONSULTING D.O.O. — это команда профессионалов с более чем 20-летним опытом. Мы предоставляем полный спектр услуг в области финансового консалтинга, инжиниринга и недвижимости в Словении. Наша команда из более чем 10 экспертов имеет все лицензии и сертификации.
Главные ценности: эффективность, прозрачность, индивидуальный подход.

Mirag Consulting

Контакты

Slovenia, Ljubljana, Likozarjeva ulica 3