Mirag Logo MIRAG CONSULTING D.O.O.

Дома и квартиры доступные для покупки в Андорре

Строим ваше будущее в центре Европы

← Назад к каталогу

New 3-bedroom ground floor apartment ready in 2027

  • Город: Andorra
  • Район: Andorra la Vella
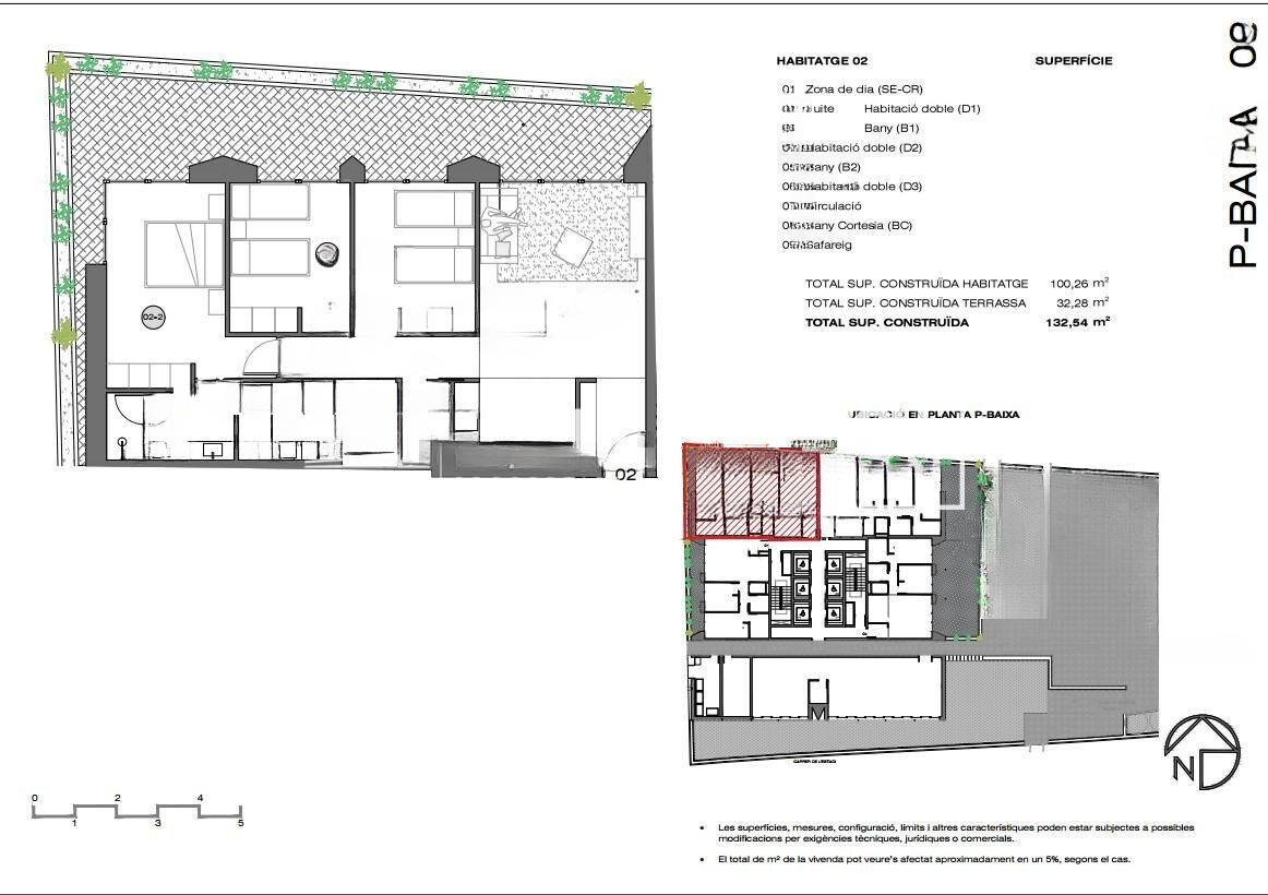
  • Площадь дома: 132 м2
  • Спален: 3
  • Ванных: 2
  • Стоимость: € 666 000

132 m 2, 3 Habitacions, 2 Banys, No Inclòs

Эксклюзивная новостройка расположена всего в 500 метрах от центра Андорры-ла-Велья и её главной торговой магистрали. Здание, состоящее из 14 этажей, планируется завершить к декабрю 2027 года и оно предложит современную, уютную и функциональную среду с зелёными зонами и площадкой для падел-тенниса.

Квартиры характеризуются современным дизайном, энергоэффективностью класса A и использованием высококачественных материалов. Все они имеют выход на практичные балконы или террасы, а тщательная ориентация зданий обеспечивает естественное освещение и тепловой комфорт в течение всего года.

Основные характеристики: структура и фасад выполнены из сборного бетона, вентилируемый фасад с керамическим облицовочным покрытием под бетон и технологическое дерево, что придаёт элегантность и долговечность. Внешняя столярка: алюминий или ПВХ с термическим мостом и тройным стеклом, гарантируя лучшее тепло- и звукоизоляцию.

Климатизация: система тёплого и прохладного пола с производством ГВС через сеть FEDA Ecoterm, максимальная эффективность и комфорт. Умный дом: масштабируемая предварительная установка системы автоматизации и моторизованные непрозрачные шторы в гостиной. Светодиодное освещение в кухнях, ванных комнатах и общих зонах. Предустановка для электромобилей на парковочных местах.

Внутренние отделки: ламинированный пол SPC Grat и нескользящая керамогранитная плитка на балконах и террасах. Полностью оборудованные кухни с мебелью MOBALPA или аналогичной, столешница CERATOP или аналогичная, и бытовая техника SIEMENS или эквивалент. Ванные комнаты с подвесной мебелью, термостатическими смесителями и душевыми поддонами из смолы с перегородкой. Входная бронированная дверь и лакированные межкомнатные двери.

Благодаря конструктивному дизайну, продвинутой изоляции и новейшим энергетическим системам, этот объект получил самую высокую энергоэффективность класса A, снижая потребление и воздействие на окружающую среду.

Этот объект площадью 100 м² является первым этажом с террасой площадью 32 м² с ориентацией на северо-восток. Включает в себя: вход с шкафом, просторную гостиную, оборудованную кухню, гостевой санузел, функциональную прачечную, полную ванную комнату, 2 просторные спальни с встроенными шкафами, основную спальню с гардеробной и полной ванной комнатой, выход на террасу из любого помещения. Возможность покупки двух парковочных мест и кладовой.

О компании

MIRAG CONSULTING D.O.O. — это команда профессионалов с более чем 20-летним опытом. Мы предоставляем полный спектр услуг в области финансового консалтинга, инжиниринга и недвижимости в Словении. Наша команда из более чем 10 экспертов имеет все лицензии и сертификации.
Главные ценности: эффективность, прозрачность, индивидуальный подход.

Mirag Consulting

Контакты

Slovenia, Ljubljana, Likozarjeva ulica 3