Mirag Logo MIRAG CONSULTING D.O.O.

Дома и квартиры доступные для покупки в Андорре

Строим ваше будущее в центре Европы

← Назад к каталогу

Anyòs Heights Residencial

  • Город: Andorra
  • Район: Anyos
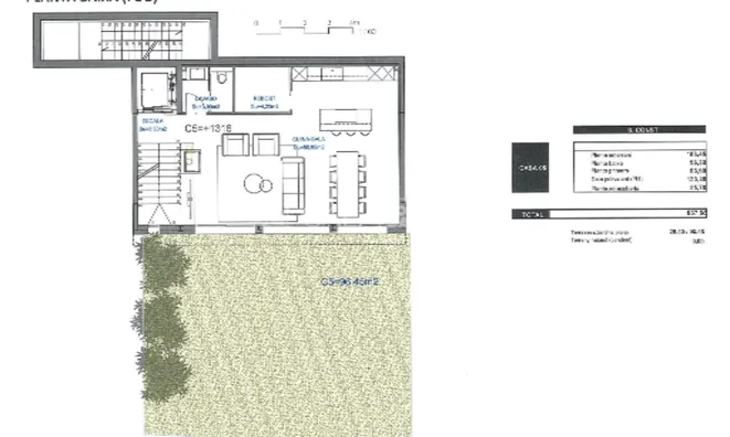
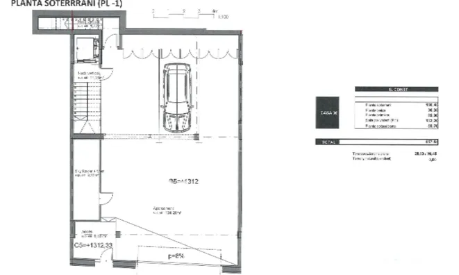
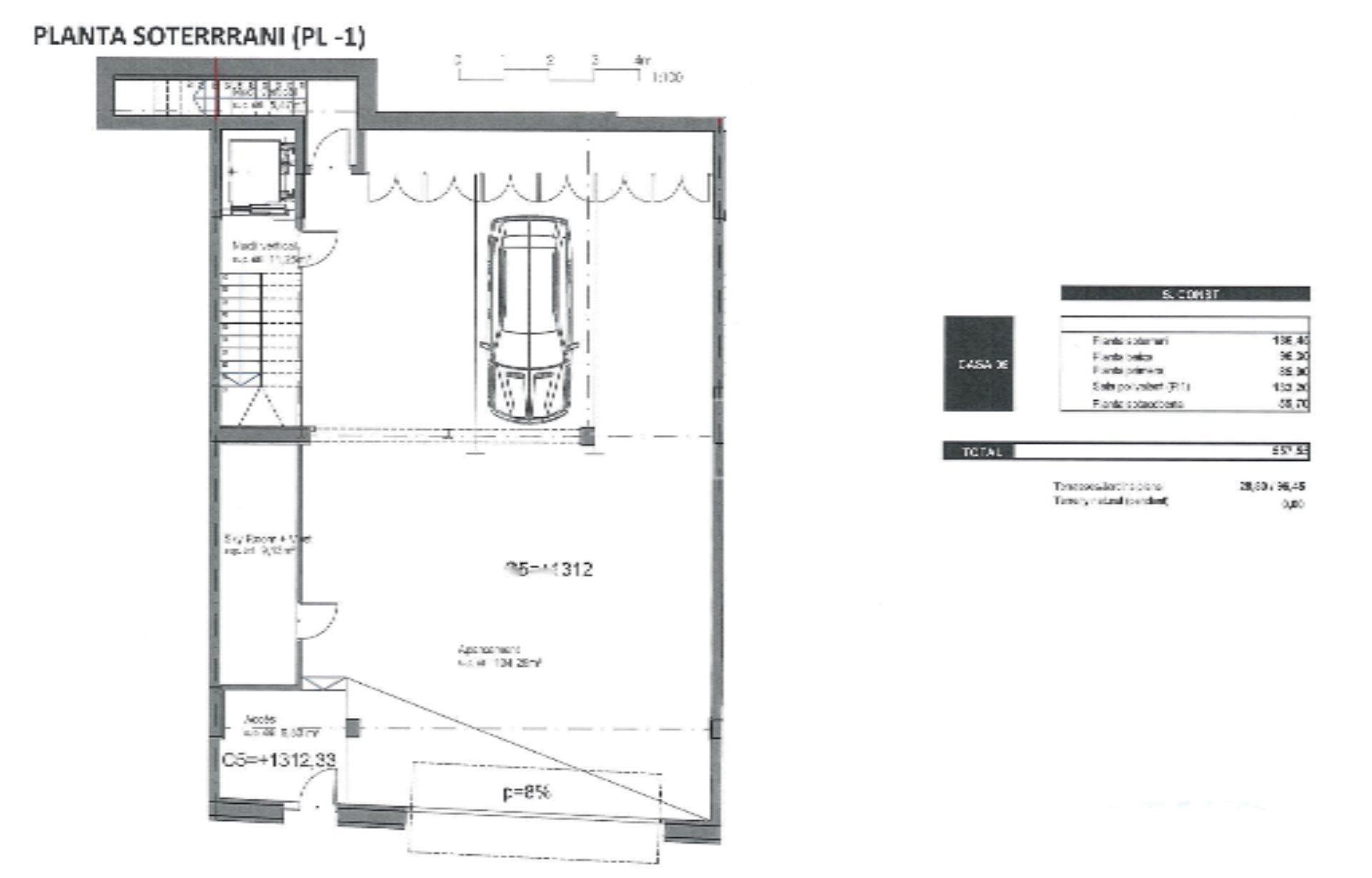
  • Площадь дома: 682 м2
  • Спален: 4
  • Ванных: 4
  • Стоимость: € 2 490 000

Инфраструктура: фитнес-центр

682 m 2, 4 Habitacions, 4 Banys, Inclòs

Immobiliària GALÍ с гордостью представляет Anyòs Heights Residencial — комплекс из 10 роскошных экологичных домов с современным дизайном, полностью ориентированный на обеспечение благополучия и высокого уровня комфорта для своих пользователей. Здоровая среда, контакт с природой, натуральные материалы, приватность и устойчивость — именно такие особенности делают дома настоящими жилищами, где основная цель — жить.

Здания возведены по стандартам Passivhaus. Благодаря различным проектным стратегиям достигнуты здоровые пространства с высокими стандартами комфорта и очень низким энергопотреблением. Высокие потолки, просторные зоны и обширные стеклянные фасады обеспечивают максимальный уровень естественного света.

Дома M-2 имеют прямоугольную форму, фасады выходят на великолепные виды, которые предлагает это место. Все дома оборудованы просторной частной парковкой, многофункциональным открытым залом, большим садом, жилой зоной и впечатляющей террасой на верхнем этаже. Конструкция очень гибка в отношении функциональной программы, и пустые пространства можно обустраивать в зависимости от нужд конечного пользователя, будь то тренажерный зал, спа или офис. Количество комнат и конфигурация кухонь могут изменяться в зависимости от стиля жизни жителей.

Недалеко от Спортивного центра Anyós Park — в 1 минуте езды, Международной школы Agora — в 2 минутах, в 5 минутах от Андорры-ла-Вельи и в 20 минутах от лыжных курортов GRANDVALIRA и VALLNORD. Завершение строительства ожидается через год-полтора, максимум через два года в зависимости от каждого дома.

О компании

MIRAG CONSULTING D.O.O. — это команда профессионалов с более чем 20-летним опытом. Мы предоставляем полный спектр услуг в области финансового консалтинга, инжиниринга и недвижимости в Словении. Наша команда из более чем 10 экспертов имеет все лицензии и сертификации.
Главные ценности: эффективность, прозрачность, индивидуальный подход.

Mirag Consulting

Контакты

Slovenia, Ljubljana, Likozarjeva ulica 3